Как правильно вязать арматуру на ленточный фундамент. Стандарт — не правило
- Как правильно вязать арматуру на ленточный фундамент. Стандарт — не правило
- Как работает арматура в ленточном фундаменте. Армирование ленточного фундамента - основные принципы
- Как правильно армировать ленточный фундамент. Как делать вязку арматуры под ленточный фундамент
- Шаг вязки арматуры для монолитной плиты. Плитный фундамент: особенности вязки арматуры
- Как правильно вязать арматуру в углах ленточного фундамента. Армирование углов и мест примыкания ленточного фундамента
- Арматурный каркас для ленточного фундамента расчет.
- Армирование фундамента чертеж. Зоны продавливания
- Шаг вязки арматуры для ленточного фундамента. Металлическая арматура.
Как правильно вязать арматуру на ленточный фундамент. Стандарт — не правило
При обустройстве ленты фундамента, из арматуры вяжут пространственный каркас. Под закладку основания для небольшого одноэтажного дома (сечение небольшого основания 600×400 мм) подходят стандартные параметры:
- Арматура 12-14 мм применяется на горизонтальные несущие направляющие;
- Тонкие прутья диаметром 8-12 мм вяжутся перпендикулярными поперечинами, так как на них нет большой весовой нагрузки;
- Шаг и расстояние между поперечинами должны соответствовать нагрузкам, но не менее 200×200 мм и не более 500×500 мм. Обычно это расстояние выдерживают со значением 300x400x400 мм между осями, где 300 – показатель длины.
Вязка углов – довольно важный момент (а точнее — узел). Кроме пространственного каркаса можно проложить несколько тяг так, чтобы они образовали на стыке треугольник правильной формы. Концы делают не короче 150 мм, сгибают и вяжут проволокой в двух местах параллельно продольным прутьям. Закладывают их по углам фундамента, на верхний и нижний ярус каркаса.

Приемы вязки проволокой.
В некоторых случаях по периметру всего основания пускают дополнительные стержни диаметром 14-16 мм. Это делают только тогда, когда предполагаются чуть большие нагрузки по площади всего каркаса. Правильная вязка арматуры для ленточного фундамента предполагает укладку металла по центру каркаса. Если основание состоит из четырёх лежащих горизонтально прутьев, то их устанавливают поперек, на нижний ярус самого каркаса. Армирование нужно связать в одно целое с основным каркасом, доходя при этом до самых углов.
Выпуски за границы конструкции – отдельная тема. При изготовлении каркаса надо помнить, что длина коротких краев поперечных арматур должна соответствовать простой формуле: диаметр, умноженный на 3. Например, для прута 10 мм выпуски делают на 25-30 мм от наружного края. При ячейке 40×40 см их нарезают с плюсовым допуском в 5,5-6 см.

Фото пространственного каркаса.
Как работает арматура в ленточном фундаменте. Армирование ленточного фундамента - основные принципы
Вариантов армирования ленточного фундамента много, и начинающему разбираться в этом вопросе легко запутаться в этом разнообразии. В этой статье мы разберем принципы армирования ленточных фундаментов при различных условиях – от простого к сложному.
1) Самый простой и, можно сказать, идеальный случай – это заглубленный на глубину промерзания грунта, незначительно и равномерно нагруженный ленточный фундамент (чаще всего, один этаж) и хорошие грунтовые условия (грунты со значительной несущей способностью и без неблагоприятных факторов вроде склонности к пучению, просадочности, наличия карстов, присутствие сейсмики и т.п.). В таких случаях по результатам расчета получается фундамент с неширокой подошвой, а часто и ширины стены фундамента достаточно.

Армирование такого фундамента конструктивно. Оно выполняет страховочную функцию – если в ходе эксплуатации дома возникнут непредвиденные негативные факторы (подтопление при прорыве водопровода с замачиванием части грунта под домом и т.п.), то армированный фундамент легче выдержит деформации грунта и вероятно предотвратит возникновение трещин в доме. Такое армирование представляет собой сетку в самой нижней зоне фундамента. Рабочей арматурой в этой сетке служат продольные (длинные) стержни, обычно это диаметр от 8 до 12 мм, арматура может быть и периодического профиля (А-III, А400С), и гладкая (A-I, А240С). Поперечные коротыши служат для связи рабочей арматуры в единую сетку, в основном используют либо арматуру того же диаметра, что и рабочая, либо гладкую шестерку-восьмерку с шагом 300-400 мм. Взаимное положение арматуры в данном случае не существенно. Защитный слой бетона до поверхности нижней арматуры фундамента – 35 мм (при наличии подготовки из тощего бетона толщиной 100 мм) или 70 мм (без подготовки) – для любых фундаментов.
Как правильно армировать ленточный фундамент. Как делать вязку арматуры под ленточный фундамент
Фундамент – это основа всего строения, гарант его долговечности и прочности. Армирование ленточного фундамента, чертежи и схемы должны быть подготовлены и рассчитаны заблаговременно.
Необходимость армирования
Фундамент представляет собой монолитную железобетонную конструкцию. Сам бетон – материал, который выдерживает значительные нагрузки только на сжатие. Чтобы увеличить прочность фундамента на растяжение и изгиб, необходимо изготовить металлический каркас. Причем показатели прочности увеличиваются только за счет обустройства рабочих продольных прутьев. Поэтому в качестве их используют толстые профилированные прутки диаметром 10÷14 мм. Поперечные элементы предназначены для создания пространственной геометрии фундамента, они не позволяют продольным пруткам смещаться при заливке бетонного раствора, и удерживают их в нужном месте. Для этих целей можно использовать гладкие или профилированные прутки диаметром 6÷9 мм.

Требования нормативных документов к материалам для армирования
Как правильно армировать ленточный фундамент, можно узнать, ознакомившись с нормативными документами. Требования, которые необходимо соблюдать при армировании монолитного ленточного железобетонного фундамента, изложены в СНиП 52-01-2003 .
Разновидности стальных прутьев, рекомендованных для армирования:
- горячекатаные гладкие или профилированные (Ø=3÷80 мм);
- термомеханически упрочненные профилированные (Ø=6÷40 мм);
- холоднокатаные профилированные или гладкие (Ø=3÷12 мм).

Важно! По сравнению с гладкими, профилированные прутья имеют лучшее сцепление с бетоном: это позволяет значительно увеличить надежность конструкции.
Требования к расположению прутьев в армокаркасе для ленточного фундамента:
- расстояние между продольными стержнями должно быть не более 0,4 м;
- шаг поперечных фиксирующих элементов должен составлять не более 0,5 м.
Минимальное относительное содержание рабочих продольных прутьев в железобетонном элементе должно составлять не менее 0,1 %.
Для вязки элементов железобетонной конструкции должна применяться только специальная стальная обожженная проволока (Ø=0,8÷1,2 мм).
Пример расчета армирования фундамента
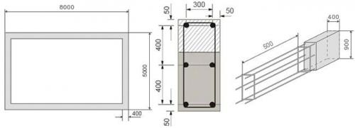
Попробуем рассчитать, сколько потребуется материалов для обустройства армирования конкретного ленточного фундамента с чертежами. Допустим, мы строим из строительных блоков (шириной 0,4 м) небольшой загородный дом с габаритными (внешними) размерами 5×8 м. Характер почвы на нашем участке позволяет сделать высоту полосы 0,9 м, ее ширину 0,4 м, что соответствует ширине строительного материала стен. В арматурном каркасе для ленточного фундамента будем использовать продольные рабочие прутья диаметром 12 мм и □-образные поперечные хомуты, изготовленные из прутков диаметром 8 мм.
Армирование мелкозаглубленного ленточного фундамента:

На фото видно, что расстояние между рабочими продольными прутьями (0,4 м) и шаг □-образных поперечных хомутов (0,5 м) выбраны в соответствии с требованиями нормативных документов.
Проверяем относительное содержание продольных рабочих прутков в нашей железобетонной конструкции. Для этого воспользуемся следующими терминами и обозначениями:
- h – высота фундамента (900 мм);
- w – ширина фундамента (400 мм);
- Sₒ – площадь поперечного сечения фундамента;
- Sₐ – суммарная площадь поперечных сечений продольных прутьев (6 штук);
- r – радиус продольного прутка (6 мм), который равен d/2, где d – диаметр прутка (в нашем случае d=12 мм);
- D – относительное содержание рабочих прутков в «теле» фундамента.
Sₒ = h∙w = 900∙400 = 360000 мм²
Sₐ = 6∙π∙r² = 6∙3,14∙6² = 678,24 мм²
D = (Sₐ∙100)/ Sₒ = (678,24∙100)/360000 = 0,1884 ≈ 0,19 % (что в 1,9 раза превышает минимально допустимое значение, то есть схема армирования ленточного фундамента выбрана нами правильно).
Расчет количества продольных прутьев
Для того чтобы определить сколько стандартных продольных прутьев (6 м) нам необходимо, воспользуемся следующими величинами:
- L – длина фундамента (8000 мм);
- W – ширина фундамента (5000 мм);
- P – периметр;
- N – количество продольных элементов (в нашем случае 6 штук);
- X – общая протяженность продольных прутьев.
P = (L+ W)∙2 = (8000 + 5000)∙2 = 26000 мм = 26 м
X = P∙N = 26∙6 = 156 м
К полученной величине необходимо добавить 20 % (материал для изготовления Г-образных или П-образных элементов для правильного армирования углов и обеспечения достаточного нахлеста при стыковке элементов).
Xдоп = X∙0,2 = 156∙0,2 = 31,2 м
Окончательная общая длина продольного арматурного прутка:
Xок = X + Xдоп = 156 + 31,2 = 187,2 м
Стандартная длина арматурного прутка составляет 6 м. Осталось посчитать, сколько таких прутков необходимо: Xок/6 = 187,2/6 = 31,2 ≈ 32 штуки.
Шаг вязки арматуры для монолитной плиты. Плитный фундамент: особенности вязки арматуры

В числе всех конструктивных элементов, составляющих любое сооружение, фундамент занимает одно из самых важных мест. Среди всех видов фундамента самый простой в монтаже и надежный в использовании — плитный. Главное его отличие от ленточного и столбчатого фундамента — наличие арматуры и большая опорная площадь, что делает возможным равномерное распределение веса строения по поверхности.

Схема плитного фундамента.
По технологии производства плитный фундаментможет быть монолитный или сборный, который, в свою очередь, состоит из блоков или плит.
Сфера использования плитного типа фундамента достаточно широка. Он с успехом применяется на различных грунтах, в местах с высоким уровнем грунтовых вод и глубоким промерзанием. Укладка плит — наилучший вариант в тех случаях, когда фундаменту отводится роль основания пола.

Основная составляющая этого типа фундамента — плита, изготовленная из бетона или железобетона. Ее закладка в грунт может осуществляться на разную глубину. Отличаться плиты могут техническими характеристиками и составами.
Для возведения малоэтажных зданий используется незаглубленный вариант укладки, при котором плиты располагаются в одной плоскости с грунтом. Для заглубленного фундамента котлован может быть подготовлен любой глубины. Подобное основание способно выдерживать вес любых массивных зданий.
Схема армирования монолитной плиты.

Еще при разработке проекта здания должна быть определена маркировка бетона и арматуры для фундамента, рассчитан шаг ее укладки и способ вязки, продумана гидро- и теплоизоляция, проведен расчет необходимого количества материалов.
Для укладки могут быть взяты гладкие плиты или с одной ребристой стороной. Эта сторона обеспечит дополнительную прочность и убережет от горизонтального смещения. Гладкая сторона такой плиты может стать основанием пола.
Под основанием плиты в обязательном порядке должна находиться подушка из гравия и песка.

Она послужит дополнительной гидроизоляцией и обеспечит устойчивость фундаментной плиты. Расчет основания должен быть произведен максимально точно, чтобы обеспечить необходимую прочность всей конструкции. Маркировка бетона должна соответствовать предполагаемой нагрузке, учитывать все конструктивные особенности будущего сооружения и качество грунта.
Вернуться к оглавлению
Плотный бетон, в свою очередь, защищает ее от коррозии и от расплавления, если случится возгорание здания.

Рельефная поверхность арматуры способствует лучшей адгезии.
Для обеспечения надежности всей конструкции необходимо, чтобы каркас кроме продольных осей имел еще и поперечные связи. Укладка и последующая вязка арматурыдолжны проводиться в соответствии с определенными правилами. Все элементы конструкции укладываются внахлест.
Схема опалубки плитного фундамента.

Для того чтобы подобрать необходимый материал, обязательным условием является правильный расчет нагрузки.
По мнению специалистов, сначала нужно определиться с типом фундамента и проанализировать грунт. Второй важный шаг — расчет сечения арматуры. Для плиточного фундамента оптимальным считается диаметр прутьев не менее 10 мм.
Это значение оказывает непосредственное влияние на прочность всей конструкции. Однако, проводя расчет элементов фундамента, не стоит забывать о весе всей конструкции и типе грунта. Чем слабее грунт, тем толще должны быть арматурные прутья.

Правила укладки арматурыпредполагают, что она должна находиться максимально близко к поверхности фундаментной плиты. Расстояние не должно превышать 3-5 см от края. На этот показатель непосредственно влияет плотность бетона, из которого сделана плита.
Вернуться к оглавлению
Необходимое количество арматуры для плитного фундаментаможно рассчитать на примере строительства дома размером 8х8 м из деревянного бруса на устойчивом грунте. Для таких грунтов идеально подходит арматурный прут диаметром 10 мм. Более толстые прутья понадобятся для слабых грунтов.

Арматурная сетка монтируется шагом не более 200 мм.
Зная это значение, легко можно определить необходимое количество арматурных прутьев для укладки: 8 м/0,2 м+1 прут=41 шт. Чтобы получить сетку, прутья укладывают перпендикулярно друг на друга. Следовательно, полученное значение умножается на 2: 41х2=82 прута.
Монтаж плитного фундамента с такими размерами потребует укладки двух поясов армированной сетки — вверху и внизу. Чтобы выяснить общее число необходимого материала, нужно увеличить вдвое полученное значение: 82х2=164 прута. Стандартная длина одного прута арматуры — 6 м, следовательно, для фундамента понадобится 164х6=984 погонных метра.

Схема армопояса.
Оба пояса связываются в точках пересечения.
В данном примере таких мест соединения: 41х41=1681 шт. Арматурная сетка будет уложена на расстоянии 5 см от поверхности фундамента. Стандартная толщина фундаментной плиты 200 мм.

Как правильно вязать арматуру в углах ленточного фундамента. Армирование углов и мест примыкания ленточного фундамента
Как правило, последовательность сборки арматурного каркаса фундамента состоит из последовательной сборки прямых участков и связи их в углах фундамента и в местах примыкания внутренних перегородок. На эти участки стоит обращать особенное внимание, так как основные изгибающие и скалывающие напряжения возникают здесь.
Армирование углов ленточного фундамента и мест примыкания стен проводят при помощи жестких лапок, Г и П-образных хомутов.
При использовании жесткой лапки, напоминающей кочергу, длиной не менее 35d рабочего стержня, гнутая часть арматуры располагается таким образом, чтобы внешние стержни в обоих направлениях были соединены, а внутренние стержни привариваются к внешним прутьям. Этим способом можно избежать распространенной ошибки при армировании– отсутствия связи между внешними и внутренними стержнями. В местах изгиба с внутренней стороны ставится вертикальная арматура.
Принцип установки Г-образного хомута аналогичен, только вместо лапки используют гнутый стержень стороной не менее 50d рабочей арматуры. Здесь также внутренние стержни одного направления соединяются с внешними прутьями другой стороны. Хомуты П-образной формы позволяют соединять параллельные внешние и внутренние стержни в одном направлении соединить к перпендикулярно расположенному внешнему стержню в другом направлении. На углах фундаментов применяют два таких хомута, на местах примыкания стены только один.
Арматурный каркас для ленточного фундамента расчет.
занимает основное место среди всех опорных конструкций для зданий и сооружений.
Он способен эффективно работать на самых сложных грунтах, имеет оптимальный набор эксплуатационных качеств.
Монолитные конструкции ленты не теряют своих рабочих качеств до 150 лет, что превышает срок службы стен дома.
Такие высокие возможности возникли из-за высокой жесткости и прочности ленты, которые обеспечивает совместная работаи металлической арматуры.
Каждый из них выполняет свою функцию, в сумме обеспечивая надежность и высокую несущую способность ленточного основания.
Арматурный каркас необходим для компенсации осевых противонаправленных (растягивающих) нагрузок, возникающих в ленте при появлении деформирующих воздействий — изгибающих или скручивающих усилий .
Особенность бетона состоит в способности принимать гигантские давления без каких-либо последствий.
При этом, он практически беззащитен перед разнонаправленными усилиями, быстро покрывается трещинами и разрушается .
Поэтому для ленты крайне опасны любые усилия, приложенные в одной точке — например, боковые или вертикальные нагрузки пучения. Арматурные стержни предназначены для приема этих усилий на себя.
Существует горизонтальная (рабочая) и вертикальная арматура . Основные нагрузки принимают горизонтальные стержни.
Они имеют больший диаметр и рифленую поверхность, обладающую хорошим сцеплением с бетоном.
Вертикальные стержни выполняют две функции :
- Фиксация рабочей арматуры в необходимом положении до момента заливки бетоном.
- Частичная компенсация скручивающих усилий.
Первая задача основная, а вторая — дополнительная, поскольку наличие таких специфических нагрузок наблюдается довольно редко .
В большинстве случаев вертикальная (гладкая) арматура служит лишь опорной конструкцией, удерживающей рабочие стержни в необходимом положении до момента заливки.
Они довольно толстые, так как — процесс с достаточно интенсивными воздействиями на каркас, сосредоточенными в одной точке (место падения тяжелого материала в опалубку), а также распределенными по всей длине (штыкование, обработка виброплитой) .

Онлайн калькулятор
Как рассчитать ленточный фундамент дома? В этой вам может специально разработанный сервис —ленточного фундамента.

Инструкция по работе с калькулятором
В сети интернет имеется немало онлайн-калькуляторов, помогающих рассчитать параметры ленточных фундаментов по всем важным позициям . Расчет арматуры с их помощью занимает буквально пару минут.
Например, нанеобходимо лишь внести собственные данные в соответствующие окошечки программы и нажать кнопку «рассчитать».
Дается схема армирования, в которой надо указать основные параметры — количество рабочих стержней в одном ряду, общее число рядов, расстояние между вертикальными прутками и т.п. В отдельном окне указывается стоимость арматуры за единицу.
В результате программа выдает количество арматуры и общую цену. Расчет производится просто и быстро, кроме арматуры ресурс выдает параметры всех элементов ленты — , количества бетона и т.д.
Недостатком данного калькулятора можно считать необходимость заранее знать схему армирования, диаметр стержней и рыночную стоимость материала.
Если требуется определить количество и сечение стержней, ресурс бесполезен. Он дает только количественную информацию, не касаясь качественных моментов, что иногда не совсем то,что нужно .
ВАЖНО!
Не все онлайн-калькуляторы работают по такому алгоритму. Имеются и другие, определяющие именно размеры и общие параметры арматурного каркаса, которые станут полезными для получения первичной информации . Стоимость материала следует узнавать непосредственно у продавцов, поскольку в этом вопросе имеется масса специфических факторов.
Порядок расчета
Рассмотрим, как рассчитать арматурный каркас ленты самостоятельно .
Прежде всего, необходимо определить количество рабочих стержней в одном ряду. Для этого понадобится использовать требование СП 52-101-2003, ограничивающее максимальное расстояние между соседними прутками в 40 см.
Учитывая, что погружения рабочей арматуры не должна превышать 2-5 см, получаем :
- Для лент толщиной менее 50 см — 2 рабочих стержня.
- Для лент шире 50 см — 3 стержня.
В случаях, когда можно использовать и 2, и 3 стержня в одном ряду, обычно стараются подстраховаться и принять большее значение, так как фундамент — ответственный и важный участок постройки.
Вторым этапом является определение диаметра рабочих стержней. Для этого понадобится рассчитать площадь сечения рабочей части ленты, умножив ширину на высоту.
Армирование фундамента чертеж. Зоны продавливания
В местах, где об фундамент будут опираться несущие вертикальные конструкции, раскладку следует производить, уменьшив шаги армирования. В случае, когда по основной ширине плиты арматура укладывается через 20 см, значит, под перегородками следует перейти на расстояние в 10 см. Такой метод позволяет предупредить возникновение продавливания и образования трещин.
Если зона сопряжения совпадает с монолитной стеной подвала, глубина закладки будет производиться в соответствии с высотой планируемого помещения. В таком варианте работы ведутся с привязкой основания к стенам.
При армировании фундаментов, рекомендуется производить совместную обвязку каркасов монолитных стен и плиты. Во время заливки фундаментного основания нужно оставить части вертикальных стержней, которые послужат связующими звеньями. Эти концы запускают в основу, производят загиб края, примерно на две части высоты плиты, после осуществляют привязку к основной части каркаса.
Чтобы произвести грамотный расчет стройматериалов и армирование плитного фундамента понадобится схема и чертеж. Должны быть внесены данные о шагах между рядами арматуры и ее диаметр.
Какую арматуру лучше выбрать
Стальная арматура изготавливается соответственно ГОСТу 5781-82, с различными типами профиля. Для железобетонных монолитных плит перекрытия используют стержень класса А400. Пруты имеют визуальные отличительные особенности, а именно:
- А 240 – изделие с гладкой поверхностью;
- А 300 – имеет на поверхности периодический профиль с кольцевым узором;
- А 400 – имеется серповидный узор на профиле в форме «елочки».
Важно! Использовать арматуру низких категорий не допустимо.
Методика изготовления армирующей сетки и каркаса
Существует два варианта соединения прутков между собой - связывание и сварка. При методике связывания применяют проволоку с диаметром 2-3 мм. Обмотка происходит вручную либо при помощи специального оборудования, которое помогает сделать обмотку вокруг стержней. Этот вариант трудоемкий, но обеспечит надежность соединений.
Готовые сваренные сетки монтировать быстрее и проще, чем при методике связывания. Единственный минус – это трудность, возникающая при подборе необходимого типоразмера.
При применении сварочного аппарата, рекомендуется в важных зонах – угол постройки и прочие участки, где массивные стены будут создавать нагрузку на конструкцию, арматуру следует в обязательном порядке соединять проволокой.
Метод сварки применяется в редких случаях, так как главный недостаток такого варианта – жесткое и неподвижное соединение. Это плохо сказывается на качестве монолитного фундамента. При сваривании металлические элементы расплавляются, после чего снижаются показатели прочности арматурных элементов.
Какой песок нужен для фундамента: выбор по характеристикам и происхождению
Работы по укладке арматуры
При укладке армирующей конструкции в опалубку следует рассчитывать все так, чтобы все стержни после заливки были покрыты защитным бетонным слоем в 2-3 см. Для соблюдения необходимого расстояния используют специальные пластиковые фиксирующие элементы, металлические «лягушки или «стульчики».
В случае, когда длина прута короче, чем вся ширина фундамента, делают нахлест не меньше 40 диаметров рабочих стержней. Например, для прута 1,2 см, рекомендованный нахлест 48 см.
Армирование монолитного фундамента в предварительно подготовленном приямке сократит продолжительность работ и поможет без сложностей произвести укладку непосредственно на месте.
Минусом такого монтажа является риски повреждения уложенной уплотненной подушки и гидроизоляционного материала. Укладку каркаса лучше проводить в таком порядке:
- Собранный нижний пояс укладывают на подпорки.
- Устанавливают поперечные прутки.
- Собирают верхнюю часть конструкции, методом связывания проволокой соединяют стойки и верхний пояс.
Как рассчитать диаметр арматуры
При армировании плитного фундамента, даже по схемам можно сделать примерные расчеты материала. Общую площадь сечения арматуры для монолитного основания в одном направлении берут не меньше 0.3 % от общих показателей сечения фундамента. Если длина стороны плиты меньше 3 м, подойдет диаметр стержня 1 см, при большей длине – 1,2 см. Вертикальные прутки должны быть не менее 6 см. Максимальные размеры изделий 4 см, в практическом применении используют 1.2, 1.4, 1.6 см.
Шаг вязки арматуры для ленточного фундамента. Металлическая арматура.
Стальная арматура, применяемая для создания каркасов для заливки фундаментов, должна соответствовать требованиям действующих ГОСТ. В жилом строительстве чаще всего применяется материал, выпущенный в соответствии с ГОСТ-5781-82. Этот стандарт регламентирует параметры горячекатаной арматуры, предназначенной для применения в обычных и предварительно напрягаемых строительных конструкциях.
В соответствии с положениями ГОСТ, эта арматура подразделяется на шесть классов. Если для первого класса используется обычная низкоуглеродистая сталь, то по мере повышения класса возрастает содержание специальных и даже легирующих добавок, резко повышающих механическую прочность материала.
Арматурные пруты I класса имеют гладкую внешнюю поверхность. Всем остальным (за редким исключением) придается рифлёная форма, так называемый периодический профиль кольцевого, серповидного или смешанного типа. Такая рельефная структура поверхности предназначена для максимального контакта армирующих элементов конструкции с набирающим прочность бетоном.
Для основного армирования ленточного фундамента оптимальным выбором, с позиций вполне достаточной степени прочности и приемлемой цены, станет арматура класса А-III, диаметром от 12 до 18 мм, в зависимости от особенностей создаваемой конструкции. Показатели классов от четвертого и выше останутся просто невостребованными, а вот A-II может оказаться и слабоватой.
Стоит обратить внимание и на наличие буквенного индекса.
- Так, литер «С» говорит о том, что эта арматура может соединяться посредством сварки. Со всеми другими типами сварочные работы полностью исключаются – структура стали при высокотемпературном нагреве изменяется, и каркас потеряет необходимую прочность.
- Буквенное обозначение «К» имеют изделия, изготовленные из стали с повышенными антикоррозионными свойствами. Их обычно применяют при возведении объектов, к которым предъявляются особые требования, и для ленточного фундамента под частное строительство приобретение подобной арматуры (а стоит она, безусловно, значительно дороже) не видится необходимостью.
А вот для дополнительных элементов конструкции – перемычек, стоек, хомутов, придающих основному каркасу необходимую объемность, вполне подойдут гладкие арматурные стержни класса A-I диаметром 6 мм (при высоте ленты до 800 мм) или 8 мм (при большей высоте). Они легко изгибаются в необходимую конфигурацию, и их прочностных характеристик для такого применения – вполне достаточно. Можно использовать и рифленые пруты класса A-II, но это уже будет несколько дороже.