Правильная вязка арматуры для ленточного фундамента. Инструменты для вязки
- Правильная вязка арматуры для ленточного фундамента. Инструменты для вязки
- Как правильно вязать арматуру в углах ленточного фундамента. Армирование углов и мест примыкания ленточного фундамента
- Армирование фундамента чертеж. Как делать вязку арматуры под ленточный фундамент
- Как работает арматура в ленточном фундаменте. Как обосновать продольную арматуру ленточного фундамента.
- Как правильно армировать ленточный фундамент. Цены на арматуру
Правильная вязка арматуры для ленточного фундамента. Инструменты для вязки
Буквально лет двадцать назад никто и не помышлял об изобретение инструмента для вязки арматуры.
Во все времена использовался обычный крючок, и замены ему не находилось по той простой причине, что это самое простое приспособление, дешевое, которое можно без проблем сделать своими руками.
С помощью крючка можно было связать большое количество стального материала буквально за пару часов. Главное, что требовалось от производителя работ, иметь навык работы с этим инструментом (опыт) и знать несколько способов вязки.
Но требования, увеличить скорость проведения работ, дало толчок для изобретателей, которые стали предлагать различные конструкции крючков. Это механические инструменты и электрические. К первым относится крючок инерционного действия. Это инструмент с ручкой, внутри которой сделаны прорези по спирали. На самом металлическом крючке сделаны выступы, которые входят в эти прорези.
Получается так, что при натягивании ручки на себя, крючок для вязки начинает выходить из нее, вращаясь относительно своей центральной оси. То есть, получается так, что, вставив крючок в петлю проволоки, и начиная тянуть ручку на себя, инструмент закручивается, тем самым закручивая и проволоку.
Но лучше всех в этом плане себя показал электрический пистолет. В его конструкции имеется катушка с проволокой (она сменная), из которой последняя подается на специальный рабочий орган.
При нажатии кнопки, проволока выходит наружу и сама скручивается под вращательным действием головки инструмента.
Быстрота, высокое качество – вот основные параметры, когда приходится использовать вязальный пистолет для арматуры.
Единственный минус этого инструмента – высокая цена. Поэтому когда ставится задача правильной вязки арматуры для ленточного фундамента своими руками, то от способа с пистолетом придется отказаться. Можно обойтись обычным крючком.
Как правильно вязать арматуру в углах ленточного фундамента. Армирование углов и мест примыкания ленточного фундамента
Как правило, последовательность сборки арматурного каркаса фундамента состоит из последовательной сборки прямых участков и связи их в углах фундамента и в местах примыкания внутренних перегородок. На эти участки стоит обращать особенное внимание, так как основные изгибающие и скалывающие напряжения возникают здесь.
Армирование углов ленточного фундамента и мест примыкания стен проводят при помощи жестких лапок, Г и П-образных хомутов.
При использовании жесткой лапки, напоминающей кочергу, длиной не менее 35d рабочего стержня, гнутая часть арматуры располагается таким образом, чтобы внешние стержни в обоих направлениях были соединены, а внутренние стержни привариваются к внешним прутьям. Этим способом можно избежать распространенной ошибки при армировании– отсутствия связи между внешними и внутренними стержнями. В местах изгиба с внутренней стороны ставится вертикальная арматура.
Принцип установки Г-образного хомута аналогичен, только вместо лапки используют гнутый стержень стороной не менее 50d рабочей арматуры. Здесь также внутренние стержни одного направления соединяются с внешними прутьями другой стороны. Хомуты П-образной формы позволяют соединять параллельные внешние и внутренние стержни в одном направлении соединить к перпендикулярно расположенному внешнему стержню в другом направлении. На углах фундаментов применяют два таких хомута, на местах примыкания стены только один.
Армирование фундамента чертеж. Как делать вязку арматуры под ленточный фундамент
Фундамент – это основа всего строения, гарант его долговечности и прочности. Армирование ленточного фундамента, чертежи и схемы должны быть подготовлены и рассчитаны заблаговременно.
Необходимость армирования
Фундамент представляет собой монолитную железобетонную конструкцию. Сам бетон – материал, который выдерживает значительные нагрузки только на сжатие. Чтобы увеличить прочность фундамента на растяжение и изгиб, необходимо изготовить металлический каркас. Причем показатели прочности увеличиваются только за счет обустройства рабочих продольных прутьев. Поэтому в качестве их используют толстые профилированные прутки диаметром 10÷14 мм. Поперечные элементы предназначены для создания пространственной геометрии фундамента, они не позволяют продольным пруткам смещаться при заливке бетонного раствора, и удерживают их в нужном месте. Для этих целей можно использовать гладкие или профилированные прутки диаметром 6÷9 мм.

Требования нормативных документов к материалам для армирования
Как правильно армировать ленточный фундамент, можно узнать, ознакомившись с нормативными документами. Требования, которые необходимо соблюдать при армировании монолитного ленточного железобетонного фундамента, изложены в СНиП 52-01-2003 .
Разновидности стальных прутьев, рекомендованных для армирования:
- горячекатаные гладкие или профилированные (Ø=3÷80 мм);
- термомеханически упрочненные профилированные (Ø=6÷40 мм);
- холоднокатаные профилированные или гладкие (Ø=3÷12 мм).

Важно! По сравнению с гладкими, профилированные прутья имеют лучшее сцепление с бетоном: это позволяет значительно увеличить надежность конструкции.
Требования к расположению прутьев в армокаркасе для ленточного фундамента:
- расстояние между продольными стержнями должно быть не более 0,4 м;
- шаг поперечных фиксирующих элементов должен составлять не более 0,5 м.
Минимальное относительное содержание рабочих продольных прутьев в железобетонном элементе должно составлять не менее 0,1 %.
Для вязки элементов железобетонной конструкции должна применяться только специальная стальная обожженная проволока (Ø=0,8÷1,2 мм).
Пример расчета армирования фундамента
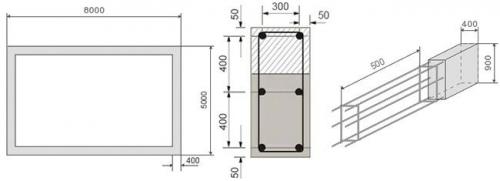
Попробуем рассчитать, сколько потребуется материалов для обустройства армирования конкретного ленточного фундамента с чертежами. Допустим, мы строим из строительных блоков (шириной 0,4 м) небольшой загородный дом с габаритными (внешними) размерами 5×8 м. Характер почвы на нашем участке позволяет сделать высоту полосы 0,9 м, ее ширину 0,4 м, что соответствует ширине строительного материала стен. В арматурном каркасе для ленточного фундамента будем использовать продольные рабочие прутья диаметром 12 мм и □-образные поперечные хомуты, изготовленные из прутков диаметром 8 мм.
Армирование мелкозаглубленного ленточного фундамента:

На фото видно, что расстояние между рабочими продольными прутьями (0,4 м) и шаг □-образных поперечных хомутов (0,5 м) выбраны в соответствии с требованиями нормативных документов.
Проверяем относительное содержание продольных рабочих прутков в нашей железобетонной конструкции. Для этого воспользуемся следующими терминами и обозначениями:
- h – высота фундамента (900 мм);
- w – ширина фундамента (400 мм);
- Sₒ – площадь поперечного сечения фундамента;
- Sₐ – суммарная площадь поперечных сечений продольных прутьев (6 штук);
- r – радиус продольного прутка (6 мм), который равен d/2, где d – диаметр прутка (в нашем случае d=12 мм);
- D – относительное содержание рабочих прутков в «теле» фундамента.
Sₒ = h∙w = 900∙400 = 360000 мм²
Sₐ = 6∙π∙r² = 6∙3,14∙6² = 678,24 мм²
D = (Sₐ∙100)/ Sₒ = (678,24∙100)/360000 = 0,1884 ≈ 0,19 % (что в 1,9 раза превышает минимально допустимое значение, то есть схема армирования ленточного фундамента выбрана нами правильно).
Расчет количества продольных прутьев
Для того чтобы определить сколько стандартных продольных прутьев (6 м) нам необходимо, воспользуемся следующими величинами:
- L – длина фундамента (8000 мм);
- W – ширина фундамента (5000 мм);
- P – периметр;
- N – количество продольных элементов (в нашем случае 6 штук);
- X – общая протяженность продольных прутьев.
P = (L+ W)∙2 = (8000 + 5000)∙2 = 26000 мм = 26 м
X = P∙N = 26∙6 = 156 м
К полученной величине необходимо добавить 20 % (материал для изготовления Г-образных или П-образных элементов для правильного армирования углов и обеспечения достаточного нахлеста при стыковке элементов).
Xдоп = X∙0,2 = 156∙0,2 = 31,2 м
Окончательная общая длина продольного арматурного прутка:
Xок = X + Xдоп = 156 + 31,2 = 187,2 м
Стандартная длина арматурного прутка составляет 6 м. Осталось посчитать, сколько таких прутков необходимо: Xок/6 = 187,2/6 = 31,2 ≈ 32 штуки.
Как работает арматура в ленточном фундаменте. Как обосновать продольную арматуру ленточного фундамента.
В чем заключается вопрос? Кстати, это достаточно актуальная ситуация ввиду того, что грунты под зданием чаще, все же, равномерно расположены по глубине.
Так вот, есть здание (не важно какое 2,3 этажа, 4 и так далее). Под него запроектирован ленточный фундамент. Фундамент монолитный, в нем взята какая-то арматура. И выдан проект. И вдруг заказчик требует обоснования применяемой арматуры. Но если сделать расчет, то выясняется, что грунты равномерные под подошвой и по глубине грунтовой толщи, сильной разницы по нагрузкам от стен нет и, де факто, фундамент нигде не испытывает фактически никаких нагрузок кроме сжимающих. Ни изгиба, ни растяжения нигде нет. Вследствие массивности ленточного фундамента он на сжатие даже без арматуры проходит со свистом многократно перекрывая нагрузку. Как доказать, что арматура нужна и в каком конкретно количестве?
Тут все очень просто. Мы делаем монолитный фундамент. Армирование там необходимо хотя бы для исключения трещин вследствие усадки бетона, температурных воздействий и во время строительства, когда возможно неравномерное нагружение. То есть мы не можем протяженные бетонные конструкции делать без арматуры. Это почти гарантированно приведет к трещинам каждые 6-7 метров. То есть нам арматура нужна в любом случае. И вот тут, так как армированный бетон – это уже железобетонная конструкция у нас вступает в действие требование по минимальному проценту армирования железобетонных конструкций, прописанное в СП63.13330 п.10.3.6.
Берем оттуда процент, требуемый для нашей конструкции и армируем как минимум на это значение. А также учитываем требования пункта 10.3 того же СП по максимальным расстояниям между стержнями арматуры для железобетонных конструкций.
Да, и все эти требования в нормах взяты не от фонаря, а из условий того, что только при выполнении этих требований по расположению арматуры конструкция будет работать эффективно и долговечно.
Как правильно армировать ленточный фундамент. Цены на арматуру
арматура

Базовыми величинами для строительства ленточного фундамента будут являться ширина ленты и глубина её заложения в грунт
Но степени заглубления в грунт ленточные фундаменты можно разделить на две основных категории:
- Малозаглубленный ленточный фундамент подойдет для строительства каркасных сооружений, небольших загородных домов и хозяйственных построек, при условии достаточно стабильного, плотного грунта на участке. Подошва ленты располагается выше границы промерзания грунта, то есть обычно не опускается ниже 500 мм без учета цокольной части.
- Для зданий, возводимых из тяжелых материалов, а также на участках, где состояние грунта не отличается стабильностью, требуется лента глубокого заложения. Ее подошва уже опускается ниже уровня промерзания грунта, как минимум на 300÷400 мм, а при наличии в планах строительства еще и(подвала) – еще ниже.
Понятно, что высота фундаментной ленты в целом, в том числе и глубина ее залегания – отнюдь не произвольные величины, а параметры, которые получаются в результате тщательно проведенных расчетов. При проектировании учитывается целый массив исходных данных: тип грунтов на участке, степень их стабильности как в поверхностных слоях, так и изменение структуры по мере углубления; климатические особенности региона; наличие, расположение и другие особенности грунтовых водоносных горизонтов; сейсмические характеристики местности. Плюс к этому накладывается специфика планируемого к возведению здания – общая нагрузка, как статическая, создаваемая только массой конструкции (естественно, с учетом всех ее составляющих элементов), так и динамическая, вызываемая и эксплуатационными нагрузками, и всевозможными внешними воздействиями, в том числе ветровыми, снеговыми и другими.

Правильный расчет ленточного фундамента – вопрос слишком серьёзный, чтобы, не имея соответствующей подготовки, проводить его самостоятельно
Исходя из вышесказанного уместно будет сделать одно важное замечание. Принципиальная позиция автора этих строк заключается в том, что расчет базовых параметров фундаментной ленты – не терпит дилетантского подхода.
Несмотря на то что в интернете можно отыскать немало онлайн-приложений для проведения подобных расчетов, вопрос проектирования фундамента все же правильнее будет доверить специалистам. При этом нисколько не оспаривается корректность предлагаемых программ расчета – многие из них в полной мере соответствуют действующим СНиП и способны действительно выдать точные результаты. Проблема лежит в несколько иной плоскости.
Суть в том, что любая, даже самая совершенная программа расчета, требует внесения точных исходных данных. А вот в этом вопросе без специальной подготовки обойтись невозможно. Согласитесь, что правильно оценить геологические особенности участка под строительство, учесть все нагрузки, выпадающие на фундаментную ленту, причем – с разложением их по осям, предусмотреть все возможные динамические изменения – непрофессионалу просто не по силам. А ведь каждый исходный параметр имеет значение, и недооценка его вполне может затем «сыграть злую шутку».
Правда, если планируется возведение небольшого дачного домика или же хозяйственной постройки, то приглашение специалиста-проектировщика может показаться избыточной мерой. Что ж, на свой страх и риск хозяин может возвести малозаглубленный ленточный фундамент, воспользовавшись, например, примерными параметрами, которые приведены в таблице ниже. Для легких построек сильно заглубленная лента не требуется (большое заглубление может сыграть даже отрицательную роль, из-за приложения касательных сил при морозном вспучивании грунта). Как правило, в таких случаях ограничиваются максимальной глубиной расположения подошвы в 500 мм.