Строительство ленточного фундамента своими..
- Строительство ленточного фундамента своими..
- Простой фундамент своими руками. Доброго времени суток! Хочу поделиться опытом закладки фундамента, на своем примере.
- Ленточный фундамент чертеж. План ленточного фундамента, чертеж
- Ленточный фундамент плюсы и минусы. Универсальный, надежный, простой в изготовлении: плюсы и минусы ленточного фундамента
- Ленточный фундамент виды. Ленточный фундамент для дома (Фото): виды, расчет и строительство своими руками
- Ленточный фундамент - технология. Устройство и типы
Строительство ленточного фундамента своими..
Требования, предъявляемые к фундаменту, весьма высоки.
Прочность и надежность основания относятся к основным, но не единственным задачам, возлагаемым на опорные конструкции.
Ленточный фундамент способен выполнять свои функции в различных условиях, что подтверждено многовековыми исследованиями.
Высокая популярность ленты обусловлена оптимальным сочетанием несущей способности и экономичности, простоты и долговечности.
Основным достоинством считается возможность самостоятельного возведения.
Ленточный фундамент представляет собой сплошную замкнутую опорную конструкцию, расположенную под всеми внешними и внутренними несущими стенами. Фактически, это — заглубленный цоколь, способный выдерживать нагрузки от веса здания, давление грунта и прочие воздействия.
Существуют следующие разновидности ленточного фундамента :
- Монолитный. Представляет собой цельную отливку из железобетона, имеет максимальную прочность и несущую способность.
- Сборный. Лента строится из отдельных фрагментов или элементов — фундаментных блоков (ФБС), кирпича, природного камня и т.д. Эксплуатационные качества этого типа основания несколько ниже, чем у монолитной ленты.
- Комбинированный. Представляет собой сочетание ленточного основания с другим типом — например, свайно-ленточный. Позволяет получить опорные точки, на которых устанавливается несущий пояс.
Кроме того, существуют разновидности по :
- Незаглубленный. Создается на абсолютно неподвижных грунтах — скалах, прочных устойчивых почвах. Встречается крайне редко.
- Мелкозаглубленный. Используется для строительства на прочных почвах, не подверженных морозному пучению. Глубина заложения меньше уровня зимнего промерзания грунта.
- Заглубленный. Глубина заложения такой ленты несколько ниже уровня промерзания грунта. Используется для самых массивных и тяжелых построек, годится для большинства типов грунта и гидрогеологических условий.
Выбор подходящего типа обусловлен анализом всех условий участка — составом грунта, количеством и свойствами слоев, глубиной залегания почвенных вод и т.д.

Для каких построек он подходит
Ленточные основания являются надежной опорой для зданий из различных материалов:
- Дерево.
- Пено- и газобетон.
- Кирпич.
- Бетонные плиты.
Материал и количество этажей определяют вес здания, от которого зависят расчетные параметры ленты — степень заглубления и толщина. Наряду с особенностями грунта, параметры здания являются основным материалом для выполнения инженерных расчетов при проектировании.

как рассчитать глубину
ленточного фундамента зависит от типа основания. е сли планируется строительство варианта, то необходимо опираться на табличные данные снип, отображающие глубину промерзания грунта в данном регионе.При строительстве мелкозаглубленного типа ленты учитывается состав грунта, наличие и глубина залегания грунтовых вод. К оптимальной глубине принято относить 0,75-1 м, но на устойчивых и сухих грунтах глубину можно немного уменьшить.
ОБРАТИТЕ ВНИМАНИЕ!
Наиболее распространенной глубиной погружения мелкозаглубленной ленты считается 0,7 м.
Как устроен мелкозаглубленный ленточный фундамент
практически полностью повторяет заглубленный вариант, только с меньшим уровнем погружения.Присутствует траншея, в которой создается дренажный слой засыпки и заливается бетонная лента .
Конструкция основания имеет меньшие возможности, чем полноценная лента, но, для относительно небольших малоэтажных построек ее несущей способности вполне хватает.

Пошаговая инструкция по монтажу своими руками
Рассмотрим порядок действий при создании ленточного фундамента :
- Подготовка.
- Разметка участка.
ВАЖНО!
Простой фундамент своими руками. Доброго времени суток! Хочу поделиться опытом закладки фундамента, на своем примере.
Фундамент уже достаточно отстоялся. На тот момент когда проводились земляные работы особо видео съемка не велась, да и не было на это времени. Сейчас стройка возобновилась, в связи с чем решил сделать серию видеороликов (статей) с самого начала строительства, надеюсь кому ни будь будет полезна данная информация.
Это часть №1 из данной серии, и будет она про возведение фундамента.
Перед началом работ, необходимо запастись инвентарем – исходя из опыта советую сразу купить хорошую штыковую лопату
В дальнейшем при ремонте и отделке он вас не раз выручит. В магазине они стоят конечно дороговато, поэтому я заказал с Алиекспресс и не прогадал, качество и точность оказались на высоте. Если кому ни будь понадобится - брал здесь - SPV PROJECT
Перед этим, пробовал копать обычной лопатой и использовать гидроуровень, намучался изрядно и потратил кучу времени…
Взято из свободных источников Яндекс.Картинки для понимания процесса измерения гидроуровнем.
Взято из свободных источников Яндекс.Картинки для понимания процесса измерения гидроуровнем.
Итак начнем.
Первый этап это определение места, размера будущего сооружения, планировки, выбор материала из которого собираетесь строить и соответственно выбор типа фундамента. В моем случае размер составляет 6 на 9 метров со стеной по середине 9 метровой стороны, материал стен керамзитобетон. Изучив множество литературы, было решено возводить мелко заглублённый ленточный фундамент шириной 40 см глубинной 60.
Второй этап это разметка, делать ее лучше с помощью двух веревок, определяющих внутренний и внешний контур фундамента. Так удобнее в дальнейшем будет копать. Как можно точнее выведите диагонали прямоугольников они должны быть равны.
Третий этап это земляные работы, при раскопке старайтесь делать дно по уровню, в этом вам очень поможет лазерный уровень, удаляйте выкопанный грунт сразу за внутренние приделы фундамента, чтобы не делать двойную работу, поверьте проще сразу выкидывать за пределы – как видно на фотографии я знаю о чем говорю=)
Глубину раскопки необходимо определять с учетом 30 сантиметровой песочной подушки.
Четвертый этап. После удаления грунта необходимо сделать песчаную подушку под будущий фундамент. Для этого подойдет крупный песок без содержания глины. Укладываем его на дно ровным слоем, опять же толщину контролируем нивелиром. После этого утрамбовываем и проливаем водой, чтобы он максимально осел.
Пятый этап это армирование. Была выбрана арматура 10 мм. Наварены одинаковые заготовки по три прутка, уложено все в опалубку. Арматуру я не вязал, все было приварено. Также перед самой заливкой были усилены углы отдельными прутками.
Шестой этап это опалубка – сделана она была из разобранных евро поддонов. Внутри степлером до самого дна был прикреплён рубероид. Верхний край опалубки выставляем опять же с помощью нивелира. Советую при сборке опалубки использовать саморезы. В дальнейшем проще будет ее разбирать, и аккуратней все получится. (если использовать новые материалы и не мудрить с поддонами, то конечно сначала сооружается опалубка потом закладывается арматура. В моем случае все наоборот, мне так было удобнее…)
Седьмой этап это заливка бетона. Было решено мешать бетон на месте. Для этого была заказана машина ПГС с содержанием гравия 60-65% . Использовался 400 цемент. Пропорция цемента к ПГС 1 к 6. Количество воды изменялось в зависимости от влажности компонентов. Бетон должен быть достаточно густым, и в свою очередь подвижным. Также при заливке его необходимо обязательно его утрамбовывать, Лучше всего это делать глубинным вибратором. Расчетная марка бетона М250.
После заливки необходимо укрыть бетон пленкой, и по потребности проливать водой.
Восьмой этап финальный, это снятие опалубки. Думаю здесь комментировать нечего… Разбираем и отправляем бывшие поддоны на дрова.
Оринтировочные затраты
В общем при возведении фундамента я затратил средств: Арматура около 10 т.р. Машина ПГС – 9 т.р. , Цемент около 14 т.р Пару рулонов рубероида, саморезы, электроды веревки и прочая мелочь около 4 т.р. , (песок завозился раннее) и конечно же свой труд. Спустя уже где-то 3 года на фундаменте нет никаких изъянов и трещин. Получился прочный и экономичный вариант фундамента.
В этом году нагрузил его керамзитобетонными стенами, методом монолитной заливки со съемной опалубкой. Об этом будут опубликованы следующие части про дальнейшее развитие стройки. Чтобы их не пропустить не забудьте подписаться на канал и Яндекс.Дзен.
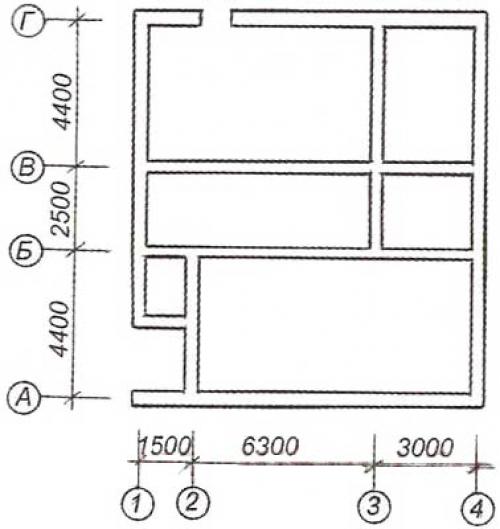
Ленточный фундамент чертеж. План ленточного фундамента, чертеж
В частном и коммерческом домостроении часто используют ленточный фундамент, чертеж которого в упрощенном виде представляет собой вид сверху с указанием линейных размеров. Схема ленточного фундамента.
Особенности ленточного фундамента
Ленточный фундамент относится к классу монолитных основ, но является более экономичным по сравнению с плитным. При сокращении расхода бетона и армирующих конструкций такие опоры остаются высоконадежными для малоэтажного домостроения и используются также при строительстве ограждений, хозяйственных и бытовых построек различного типа.
Виды опор
План фундаментов этого типа может представлять два типа опорных конструкций:
- монолитный , при производстве которого раствор заливают в траншею с отсыпкой,
- сборный с укладкой готовых железобетонных изделий.
Глубина траншеи в обоих случаях больше уровня промерзания грунта, а ширина рассчитывается с учетом нагрузки.
Рис. 2. Простое и понятное схематичное изображение монолитной ленточной опоры с указанием размеров.

Чертеж сборного ленточного фундамента с указанием размеров.

Факторы влияния
При выполнении инженерных вычислений учитывают следующие факторы:
- общий вес конструкции (при строительстве зданий принимают во внимание материалы, из которых будет выполнена постройка, внутренней планировке, числа этажей, количества и размеров оконных и дверных проемов),
- тип грунта, влияющий на степень усадки,
- величину нагрузки в процессе эксплуатации.

Дополнительное изображение для чертежа ленточного фундамента.
Особенности построения плана
План опор ленточного типа создается по определенным правилам.
- Выбирается масштабирование 1:100 или 1:400.
- Перед построением выполняют осевую разметку.
- При наличии колонн, их месторасположение указывается на схеме.
- Общие очертания конструкции наносят линиями 0,5-0,8 мм.
Полный план включает в себя изображения подбетонка и подошвы с указанием мест перепадов глубины, характерных для неровных поверхностей, и отверстий для ввода коммуникаций. Последние могут изображаться двумя способами:
- с полным схематичным изображением и указанием данных по нижней точке,
- осевой точкой выносом основных данных (диаметр, параметры нижней точки) на экспликацию.
Коммуникационные отверстия и уступы изображают затушевыванием или контурно, прерывистыми линиями. При необходимости такие изображения уточняются пояснениями или сносками.

Схема ленточного сборного фундамента с дополнительными вынесенными изображениями.
Изображение сложных участков
Если план изображает сборный или монолитный фундамент сложной конфигурации, нюансы устройства сложно передать на единой полной схеме. В этом случае используют более сложные способы планировки:
- наносят на основной чертеж дополнительные изображения разрезов, обеспечивая их осевое соответствие,
- при необходимости сделать такие разрезы более крупными, их выполняют на отдельных листах-дополнениях с указанием всех необходимых данных (цифровых, пояснений, стрелок. обозначающих тип разреза и пр.).
В соответствии со сложностью сечений выбирают масштабирование 1:20, 1:25 или 1:50.
Ленточный фундамент плюсы и минусы. Универсальный, надежный, простой в изготовлении: плюсы и минусы ленточного фундамента
При выборе варианта основания под строящийся дом или другое сооружение вполне резонно возникает дилемма, какой тип фундамента лучше и почему.
Ниже в статье разберем подробно, чем ленточный вид конструкции фундамента отличается от других способов сооружения опоры для здания, в чем плюсы и минусы такого фундамента во время строительства.
заключаются в следующих его параметрах:
- этот вариант наиболее просто изготавливать;
- при сооружении легких строений, оказывающих незначительную нагрузку на почву, лента является наиболее экономичным способом подготовки основания;
- такой тип конструкции без проблем удается утеплить, изолировать от насыщения влагой;
- эту конструкцию удобно выполнять из железобетонных блоков, максимально сокращая время строительства;
- ленточный фундамент прекрасно выдерживает значительные температурные перепады;
- основание доступно для самостоятельного изготовления, оно не требует привлечения посторонних мастеров;
- при монтаже ленты внутри грунта не требуется сооружать.
Недостатки
Перечислим некоторые минусы , присущие ленточной конструкции:
- Требуется выполнять заранее анализ почвы, чтобы учитывать ее поведение при промерзании зимой.
- Необходимо точно рассчитать глубину заливки, выбрать подходящее для нее место. Если не выполнить требуемые расчеты и замеры, сооружение способно потерять целостность при определенных условиях, что вызовет перекос или просадку здания.
- Не всегда присутствует возможность выполнять работу без привлечения дорогостоящей спецтехники.
При выборе типа основания требуется скрупулезно учитывать все его плюсы и минусы, руководствуясь критерием максимальной надежности будущей конструкции.
Какой тип ленты предпочтительнее использовать?
Основное преимущество именно ленточного основания перед конструкциями из свай, столбов либо монолитной заливки заключается в универсальности использования такого фундамента.
На нем разрешено сооружать не только легкие каркасные дома, но и многоэтажные здания . Такое свойство присуще ленте благодаря нескольким вариантам сооружения этой конструкции. Рассмотрим их подробнее.
Монолитный
Цельнолитое основание — наиболее простой вариант фундамента. Оно является непрерывной лентой, состоящей из бетона с армированным поясом. Монолит заливают внутрь опалубки, сооруженной на месте сооружения здания.
Параметры монолита:
- Фундамент удобен, поскольку не требует углубления в грунт. Учитывая его целостность, он надежен, его заливают на любой, даже нестабильной почве.
- Конструкции присущи определенные недостатки: сооружать ее рекомендовано только в теплый период года, на ленту требуется много арматуры, заливка получается массивной, а значит — дорогой.
- Особенность основания — необходимость полной заливки за краткий период времени, что требует использование спецтехники.
Все самое важное и полезное о монолитном ленточном фундаменте найдете.
Сборный
Ленту собирают, используя готовые железобетонные блоки . Их выкладывают на участке строительства, соединяя цементным раствором.
Такой надежный сборный контур прекрасно подходит при сооружении малоэтажных зданий. Выкладывают изделия на песчаную, предварительно утрамбованную подушку.
Железобетонные блоки промышленность выпускает прямоугольной конфигурации либо трапецеидальной.
Основные характеристики сборного основания следующие:
- несомненное достоинство — готовые блоки всегда можно заказать в специализированных фирмах с доставкой на территории застройки;
- монтаж такого ленточного фундамента позволяет значительно сэкономить силы и время;
- разрешено устанавливать даже поздней осенью либо ранней весной;
- поскольку габариты железобетонных блоков, необходимых для сооружения сборной конструкции, стандартизованы, строительство нестандартного фундамента требует подрезки не только самих изделий, но и их опоры — блок подушки (для этого необходимо наличие особого инструмента, навыки его использования, иначе не получится обойтись без привлечения профессионалов);
- вес блоков значительный, их невозможно устанавливать вручную, поэтому для монтажа придется привлекать спецтехнику;
- хотя стоимость блоков и немаленькая, подсчеты определяют, что смета возведения сборного и монолитного фундамента практически идентична (из-за этого при выборе подходящего варианта необходимо руководствоваться лишь габаритами строения и состоянием почвы).
Ленточный фундамент виды. Ленточный фундамент для дома (Фото): виды, расчет и строительство своими руками
Ленточный фундамент – это одна из наиболее распространенных разновидностей фундаментов, используемых при возведении различных строений. Их долговечность определяется правильным подбором типа фундамента, его технически верным исполнением и, конечно, грамотным расчетом. Именно этому вопросу мы и намерены посвятить нашу сегодняшнюю статью.
Однако подробную информацию о расчетах мы хотим предварить некоторыми общими сведениями, которые позволят вам не совершить ошибку, сделав выбор в пользу фундамента ленточного типа.
Ленточный фундамент и его разновидности
Ленточный фундамент – это лентовидное основание, уложенное под все несущие, а иногда и ненесущие стены дома. Исходя из характера материалов, используемых для их обустройства, фундаменты могут быть:
- бутовыми;
- бутобетонными;
- бетонными;
- железобетонными;
- кирпичными.
В конструктивном отношении, различают ленточные фундаменты сборного типа и монолитные. Сборные фундаменты изготавливаются из отдельных готовых блоков и отличаются большой быстротой возведения, тогда как монолитные должны некоторое время выдерживаться для того, чтобы бетон смог набрать прочность. Важный недостаток сборных конструкций состоит в их меньшей прочности в сравнении с литой бетонной лентой.

Несмотря на быстроту возведения сборных конструкций, монолитные ленточные фундаменты относятся к значительно более распространенным. По материалу изготовления они могут быть бутового состава или, что случается значительно чаще, быть железо- или просто бетонными.
Для каких строений подходят ленточные фундаменты и их достоинства
Если расчет ленточного фундамента выполнен правильно, он может являться надежным основанием для:
- кирпичных и газобетонных домов;
- домов из камня;
- железобетонных строений средней тяжести;
- бревенчатых домов.
Кроме того, данный тип фундамента может успешно использоваться для бань и гаражей, заборов и пристроек и т.д.
К достоинствам ленточных фундаментов следует отнести:
- обеспечение возможности по обустройству подвалов;
- способность выдерживать существенные нагрузки;
- возможность обустройства перекрытий с использованием бетонных плит;
- простота возведения и возможность выполнения работ своими силами.
Недостаток фундамента данного типа состоит в его относительно дороговизне. Однако он с лихвой перекрывается той надежностью, которую в состоянии обеспечить эта конструкция.
Заглубленность фундаментов ленточного типа
По степени заглубленности ленточные конструкции могут быть:
- мелкозаглубленными;
- заглубленными.
Мелкозаглубленный

Как правило, мелкозаглубленные фундаменты укладываются на глубину 60 см и менее. Основанием для их укладки могут быть щебеночные и непучинистые песчаные и каменистые грунты.
Мелкозаглубленные фундаменты подходят там, где зеркало грунтовых вод находится ниже обычной глубины промерзания. Их не рекомендуется использовать на неровных участках, а также для тяжелых каменных строений.
Эти конструкции могут являться прекрасным основанием для легких каркасных построек, деревянных домов и пристроек к ним, гаражей и заборов.
Заглубленный

Заглубленные фундаменты обустраиваются на любых надежных грунтах и закладываются ниже той глубины, на которую промерзает грунт в конкретной местности.
Фундаменты данного типа не рекомендуются в следующих условиях:
- если грунтовые воды проходят очень высоко, что чревато промерзанием и разрушением конструкции;
- при наличии больших перепадов высот;
- в случае заболоченности почвы или сыпучести грунта;
- при очень глубоком промерзании почвы, что делает закладку такого фундамента экономически неприемлемой.
Заглубленные фундаменты ленточного типа являются отличной и надежной основой для любых тяжелых каменных построек.
А теперь мы можем рассказать вам и о том, как производится расчетных ленточных фундаментов. Причем делать это будем на основе личного опыта, полученного в ходе возведения бани.
Порядок расчета ленточного фундамента
Наиболее сложная стадия строительства бани – безусловно, создание нулевого уровня. С одной лишь сметы уходит на его больше 20%, и не меньшая часть времени и сил. С одной стороны, хорошо, если занимаются фундаментом нанятые строители, которых наняли вообще для всех этапов строительства – с другой стороны, наиболее серьёзные проблемы уже спустя 1-2 года начинаются у доверившихся им. Самое безобидное из возможных зол — это когда рабочие заместо бетона заливают неизвестного происхождения смесь либо «забывают» устроить гидроизоляцию.

Поэтому знание, как рассчитывать правильно стройматериалы для ленточного фундамента и как грамотно его строить, крайне полезным окажется для тех, кто делает всё своими руками, и для тех, кто только наблюдает за нанятой бригадой. Разумеется, на 100% точный расчёт выполнить не сумеет даже опытный архитектор либо прораб, однако достоверные примерные данные можно получить. Ведь основное – это верный расчёт ленточного фундамента относительно нагрузки на будущий фундамент, кубатура его, объём, геометрические размеры.
Ленточный фундамент - технология. Устройство и типы
По глубине залегания ленточные фундаменты бывают мелкого и глубокого залегания. Мелкозаглубленные могут применяться на спокойных, непучнистых грунтах с хорошей несущей способностью под постройки небольшой массы — из древесины и возведенные по каркасной технологии.
В этом случае лента должна на 10-15 см уходить в твердый слой, который располагается под плодородным. В то же время по нормативам она не может быть менее 60 см.

Типы ленточных фундаментов по глубине заглубления
Монолитные ленточные фундаменты глубокого заложения делают под тяжелые, массивные дома. В общем случае опускают их на 10-15 см ниже уровня промерзания грунтов для данного региона. При этом подошва должна опираться на слой с хорошей несущей способностью. Если это не так, приходится углубляться ниже. Например, если уровень промерзания грунтов 1,2 м, а плодородный слой заканчивается на отметке 1,4 м, то приходится опускаться ниже 1,4 м.
С опалубкой или без
Вообще, технология возведения монолитного ленточного фундамента предусматривает установку опалубки . Это конструкции из щитов, которая придает форму бетону и не дает ему растекаться. Понятное дело, что опалубка — это дополнительные расходы на материалы, а также дополнительное время на ее сборку и установку.

Опалубка — конструкция из досок или фанеры, которая придает фундаменту форму
Иногда в целях экономии, на хороших грунтах котлован под фундамент роют ровно по разметке — на нужную ширину и глубину. И в эти ямы заливают бетон без опалубки. Такая технология не может гарантировать требуемую степень надежности, результат спрогнозировать невозможно. Дело в том, что для набора нормальной прочности бетону необходимо определенное количество воды. Без опалубки вода хоть и немного, но впитывается в грунт, что может сказаться на качестве самого бетонного камня. В самом худшем случае он может крошится.
Из положения выходят, расстелив в траншее полиэтиленовую пленку. Но по ней потом ходят — армирование делать нужно. И прутья, и сапоги не один раз повреждают пленку. В результате влага все равно уходит.

Фундамент без опалубки — рискованная затея
В некоторых случаях такие фундаменты могут отстоять какое-то количество лет без проблем. Но рано или поздно, появляются трещины или бетон начинает крошиться. Вторая сложность работы с таким фундаментом — его далеко не идеальная геометрия. Для того чтобы снизить теплопотери, фундамент утепляют, причем чаще всего плитами пенопласта или экструдированного пенополистирола. Попробуйте наклеить их на неровную поверхность. Такая же ситуация с пароизоляцией: пленку очень сложно (практически невозможно) приклеить на неровный, пористый бетон с вкраплениями грунта. Оправдан или нет такой подход — решать вам, но рекомендовать такой фундамент можно только под забор или сарай.
