Армирование фундамента своими руками от А до.. Технология армирование ленточного фундамента
- Армирование фундамента своими руками от А до.. Технология армирование ленточного фундамента
- Армирование ленточного фундамента.
- Армирование фундамента чертеж. Пример расчета армирования фундамента
- Армирование фундамента калькулятор. Калькулятор ленточного фундамента
- Армирование фундамента стеклопластиковой арматурой. Сильные и слабые стороны композитной арматуры
- Армирование фундамента в один ряд. Расчет армирования
- Армирование фундамента одноэтажного дома. Как выбрать арматуру для фундамента
Армирование фундамента своими руками от А до.. Технология армирование ленточного фундамента
1. В качестве горизонтальных прутьев арматуры чаще всего используют арматура 10–16 мм класса А-3 имеющая два продольных ребра и поперечные выступы. В некоторых случаях возможна установка дополнительных продольных стержней они устанавливаются между горизонтальными прутьями арматуры в качестве усиления конструкции.

2. Вертикальные прутья они же могут быть поперечными (в случае если используются хомуты), устанавливаются когда фундамент более 15 сантиметров в высоту. Здесь используется гладкие стержни класса А-1 диаметром 6–8 мм. Если фундамент менее 15 сантиметров в высоту (например, плитный фундамент), вертикальные прутья использовать не требуется.
Технология устройства ленточного фундамента + видео урок -строишь дом и не знаешь как возвести фундамент? Читай эту статью, в ней вся информация о строительстве ленточного фундамента от «А» до «Я»!
Диаметр и шаг поперечной арматуры зависит от нагрузок действующих вдоль поперечной оси фундамента. Поперечные стержни служат усилением для продольных и обеспечивают более крепкую конструкцию. Это позволяет исключить возможность появления разного рода трещин в фундаменте.
Расстояние между горизонтальными стержнями арматуры и расстоянием шага между поперечными прутками определяется «СНиП 52–01-2003 Бетонные и железобетонные конструкции».

Соединение арматуры осуществляется с помощью специальной вязальной проволоки и крючка. Также возможно использование специального пистолета для вязки арматуры (в случае если он имеется). Крючок можно сделать самостоятельно из тугой проволоки или арматурного прутка небольшого диаметра. Это элементарная конструкция, которая понятна даже ребёнку.
Также можно прихватить арматуру сваркой, не приваривать, а именно прихватить. Такой метод может быть использован только с арматурой, которая имеет маркировку с латинской буквой C, например, А400С. Я рекомендую пользоваться вязальной проволокой.

Арматура должна быть полностью утоплена в цементном растворе. Для контроля можно использовать специальные фиксаторы. Фиксатор подставка поможет отрегулировать горизонтальный уровень всей конструкции, а фиксатор звездочка не даст прижаться арматуре к опалубке. Расстояние от прутков арматуры до опалубки должно быть 5–8 см. Фиксаторы бывают разных размеров, так что вам не составит проблем приобрести нужную модель (1 шт. стоит около 2 рублей).

Армирование ленточного фундамента начинается с монтажа опалубки. Перед тем как начать вязать каркас требуется внутренние стенки опалубки обложить пергаментом, это в будущем существенно облегчает снятия досок с фундамента. Монтаж должен происходить по ранее составленной схеме во избежание ошибок и недочетов.
Далее, необходимо проложить на дно 2 слоя рулонной гидроизоляции, это защитит металлический каркас от воздействия влаги. Если не знаете как правильно осуществить процесс гидроизоляции, прочтите статью ниже.
Гидроизоляция ленточного фундамента своими руками + видео урок — не допусти катастрофической ошибки при строительстве дома. Гидроизоляция обязательный этап в строительстве дома!
Сначала по периметру выкопанного рва требуется вбить вертикальные штыри арматуры с соблюдением всех условий технологии. Интервал между вертикальными стержнями должен быть 40–60 см.
После на дно выкопанного рва монтируются пластиковые подставки высотой в 10 см, они нужны для того, чтобы горизонтальные стержни арматуры напрямую не соприкасались с грунтом. В случае если вы решили не покупать пластиковые подставки их может заменить любой камень или кусок кирпича.
Сверху на подставки монтируется первый уровень горизонтальной арматуры и усиливается поперечными прутками. Дальше требуется закрепить верхний уровень горизонтальной арматуры, который также нужно усилить с помощью поперечных стержней арматуры.
В итоге должна получиться жесткая и надежная конструкция, которая должна находится строго между внутренними и внешними досками опалубки с отступом 5–8 сантиметров с каждой стороны.
Армирование ленточного фундамента.
представляет собой сплошную бетонную опору, размещенную под всеми несущими стенами дома.
Конструкция подобных оснований достаточно проста.
Степень прочности, устойчивости к возникающим нагрузкам и несущая способность образуют оптимальное сочетание, позволяющее использовать ленточный тип фундамента в большинстве построек.
С некоторыми дополнениями этот вид способен служить на разных видах грунта и в относительно неблагоприятных геологических условиях.
Основным элементом конструкции является арматурный каркас, обеспечивающий прочность ленты и устойчивость к напряжениям.
Бетон является специфическим материалом. Он способен без видимых последствий выдерживать значительное давление, но разнонаправленные, растягивающие нагрузки переносит с большим трудом.
Бетонный блок, являющийся монолитной отливкой без дополнительных усиливающих элементов, способен выдерживать только равномерную сдавливающую нагрузку.
Если усилие будет приложено в центральной части, а края блока окажутся зафиксированы, он переломится при относительно небольшой нагрузке. Использовать его в таком виде в качестве основания для строительного объекта невозможно.
Проблема решается с помощью армирующего каркаса, помещаемого внутрь блока перед отливкой.
Армирование ленточных оснований является необходимым и обязательным условием, предписываемым требованиями СНиП 52-01-2003. Регламентируются все рабочие моменты создания железобетонных конструкций — состав бетона, размеры и материал арматуры, тип конструкции каркаса, способ сборки и прочие вопросы.
Соблюдение норм СНиП обязательно для всех строителей, поскольку только таким образом можно обеспечить надежность постройки и безопасность людей.

Как работает арматура
Арматурные стержни способны переносить растягивающие нагрузки примерно в 10 раз больше, чем бетон. Будучи установленными внутрь отливки, они принимают на себя растягивающие нагрузки, не позволяя появиться трещинам, усиливая и укрепляя бетонную ленту.
Арматурный каркас представляет собой пространственную решетку, состоящую из несущих и вспомогательных стержней. Если сама лента в сечении представляет собой прямоугольник, то каркас в сечении образует подобную фигуру, но несколько уменьшенную.
Если на ленту воздействует изгибающая нагрузка, то начинают работать те стержни, которые расположены со стороны, противоположной точке приложения усилия. Они не позволяют ленте изменить форму, принимая на себя внешние воздействия.
ОБРАТИТЕ ВНИМАНИЕ!
Для особо ответственных конструкций используют напрягаемые стержни, которые перед заливкой бетона натягиваются, а после затвердения массива освобождаются. Такие основания способны работать в сложных условиях, но для частного домостроения не используются.
Основными элементами являются горизонтальные стержни — несущие, или рабочие. Вертикальные элементы служат для поддержки рабочей арматуры и в большинстве нужны лишь до момента заливки. После нее рабочие функции выполняют только угловые элементы, испытывающие дополнительные напряжения и эксплуатационные нагрузки.
Вспомогательная арматура делается из более тонких прутков и нужна для исключения смещения основных элементов при заливке и затвердении.

Как выбрать бетон
Требования СНиП к бетону достаточно жесткие .
Регламентируются все рабочие параметры материала:
- Степень прочности на сжатие и осевое растяжение.
- Морозостойкость.
- Водонепроницаемость.
Для жилых домов малоэтажной кирпичной или подобной застройки оптимальный вариант —М300. При использовании легких ячеистых или пористых материалов (пенобетон, керамзитобетон) допускается применение менее прочного и плотного бетона — марок М200 и даже М150.
Более прочные сорта используются для ответственных или многоэтажных объектов. Например, бетон М400 допускается применять для отливки фундамента по жилые здания высотой до 20 этажей.

Виды арматуры
Существует два вида арматуры :
- Металлическая.
- Композитная.
Первый вид — всем знакомые стальные горячекатаные прутки с насечкой, позволяющей получить надежное сцепление с бетоном. Существуют стержни разного диаметра, от 6 до 80 мм, предназначенные для эксплуатации в соответствующих условиях.
Для вспомогательной арматуры могут быть использованы как рифленые, так и гладкие стержни меньшего диаметра.
Композитная— это целая группа, которая изготавливается из углепластика, базальтопластика и стеклопластика. Последний является наиболее распространенным и доступным вариантом. Он выгоднее металлического аналога с точки зрения стоимости, не поддается коррозии, не реагирует на электрохимические воздействия.
Однако, неспособность сгибаться усложняет сборку каркасов на изгибах или примыканиях, что уменьшает надежность этих узлов и повышает трудоемкость сборки. Диаметры стержней находятся в диапазоне от 3,5 до 48 мм.
ВАЖНО!
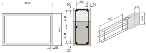
Армирование фундамента чертеж. Пример расчета армирования фундамента
Попробуем рассчитать, сколько потребуется материалов для обустройства армирования конкретного ленточного фундамента с чертежами. Допустим, мы строим из строительных блоков (шириной 0,4 м) небольшой загородный дом с габаритными (внешними) размерами 5×8 м. Характер почвы на нашем участке позволяет сделать высоту полосы 0,9 м, ее ширину 0,4 м, что соответствует ширине строительного материала стен. В арматурном каркасе для ленточного фундамента будем использовать продольные рабочие прутья диаметром 12 мм и □-образные поперечные хомуты, изготовленные из прутков диаметром 8 мм.
Армирование мелкозаглубленного ленточного фундамента:

На фото видно, что расстояние между рабочими продольными прутьями (0,4 м) и шаг □-образных поперечных хомутов (0,5 м) выбраны в соответствии с требованиями нормативных документов.
Проверяем относительное содержание продольных рабочих прутков в нашей железобетонной конструкции. Для этого воспользуемся следующими терминами и обозначениями:
- h – высота фундамента (900 мм);
- w – ширина фундамента (400 мм);
- Sₒ – площадь поперечного сечения фундамента;
- Sₐ – суммарная площадь поперечных сечений продольных прутьев (6 штук);
- r – радиус продольного прутка (6 мм), который равен d/2, где d – диаметр прутка (в нашем случае d=12 мм);
- D – относительное содержание рабочих прутков в «теле» фундамента.
Sₒ = h∙w = 900∙400 = 360000 мм²
Sₐ = 6∙π∙r² = 6∙3,14∙6² = 678,24 мм²
D = (Sₐ∙100)/ Sₒ = (678,24∙100)/360000 = 0,1884 ≈ 0,19 % (что в 1,9 раза превышает минимально допустимое значение, то есть схема армирования ленточного фундамента выбрана нами правильно).
Расчет количества продольных прутьев
Для того чтобы определить сколько стандартных продольных прутьев (6 м) нам необходимо, воспользуемся следующими величинами:
- L – длина фундамента (8000 мм);
- W – ширина фундамента (5000 мм);
- P – периметр;
- N – количество продольных элементов (в нашем случае 6 штук);
- X – общая протяженность продольных прутьев.
P = (L+ W)∙2 = (8000 + 5000)∙2 = 26000 мм = 26 м
X = P∙N = 26∙6 = 156 м
К полученной величине необходимо добавить 20 % (материал для изготовления Г-образных или П-образных элементов для правильного армирования углов и обеспечения достаточного нахлеста при стыковке элементов).
Xдоп = X∙0,2 = 156∙0,2 = 31,2 м
Окончательная общая длина продольного арматурного прутка:
Xок = X + Xдоп = 156 + 31,2 = 187,2 м
Стандартная длина арматурного прутка составляет 6 м. Осталось посчитать, сколько таких прутков необходимо: Xок/6 = 187,2/6 = 31,2 ≈ 32 штуки.
Армирование фундамента калькулятор. Калькулятор ленточного фундамента

Грамотно спроектированный и построенный фундамент гарантирует долговечную эксплуатацию любого здания и сооружения. Сегодня существует несколько популярных типов оснований, но самым востребованным из всех безусловно является ленточный. Для его создания не требуется специальное оборудование, а технология монтажа проста, как два пальца – каждый в состоянии построить ленточный фундамент своими руками.
Сервис KALK.PRO предлагает вам выполнить расчет ленточного фундамента с помощью онлайн-калькулятора . Он предназначен для расчета количества и объема материалов, подбора оптимальной толщины ленты, определения допустимой нагрузки на грунт и многого другого. Для наглядности программа выводит динамические чертежи и 3D-модель, которые изменяются в зависимости от выбираемых параметров и задаваемых значений.
Калькулятор позволяет рассчитать МЗЛФ, стандартный или углубленный фундамент монолитного типа – методика вычисления во всех случаях ничем не отличается. Для удобства пользователей, в алгоритм программы заложен расчет арматуры и расчет бетона для ленточного фундамента. В скором времени планируется добавить опалубку.
Инструкция
Наш сервис позволяет рассчитать ленточночный фундамент под дом максимально точно, однако достоверность этих расчетов напрямую зависит, от того какие параметры вы заполните в поля калькулятора. Специально для исключения подобных недоразумений, было записано обучающее видео с подробным пояснением всех элементов калькулятора ленточного фундамента и используемых величин. Смотрите инструкцию и задавайте свои вопросы в комментариях, если требуется уточнение.
Для тех, у кого нет возможности просмотреть видео со звуком или есть проблемы с воспроизведением видео, мы подготовили укороченную текстовую версию примера расчета ленточного фундамента на нашем сервисе. Читайте чуть ниже.
Заполняйте поля калькулятора ВНИМАТЕЛЬНО , так как любая, даже незначительная ошибка может стоить потраченного времени и средств.
Обзор интерфейса
Интерфейс калькулятора расчета ленточного фундамента должен быть интуитивно понятен большинству пользователей, так как выполнен достаточно просто.
Основная часть программы подразделяется на несколько крупных элементов:
- Вводный блок с начальными данными и упрощенной схемой.
- Подробный чертеж ленточного фундамента, который отрисовывается на основании первого пункта.
- Интерактивная 3D-модель, которая позволяет посмотреть все элементы конструкции в трехмерном пространстве.
- Результаты расчета (материалы, величины, допустимые значения…).
Также под самим калькулятором, приведена небольшая справка, в каких форматах доступно скачивание, как сохранить результат, отправить по электронной почте или добавить в закладки.
Схема
Исходя из плана вашего дома, вы начинаете визуализировать устройство монолитного ленточного фундамента. С помощью конфигуратора, задайте необходимое количество лент и их расположение.
Сервис ограничивает максимально возможное количество осей по горизонтали и по вертикали. Вы можете задать не более 2 дополнительных линии по каждому направлению, т.е. в сумме не больше 8 осей.
Для того чтобы добавить параллельные горизонтальные (буквенные) оси, выберите в первом пункте AD0 необходимое количество (1 или 2). Новые прямые расположатся между осями AD и будут называться B и С.
Вертикальные оси (цифровые) добавляются не на всю длину ленточного фундамента, а конкретно к каждой секции AB, BC или CD.
Для того чтобы сместить секцию, заполните поле «Смещение стороны». Подробнее об этом смотрите ниже, где разбирается практический пример.
Пример 1.
Для того чтобы получить квадратный монолитный ленточный фундамент для дома, разделенный на 9 равных блоков, вам нужно:
- добавить две оси в пункте AD0;
- добавить две оси в пункте AB0;
- добавить две оси в пункте BC0;
- добавить две оси в пункте CD0.
Пример 2.
У вас нестандартный фундамент, который разделен на 6 неравнозначных секций. Блок AB разбит на три части, блок BC на две, а CD не разбит.
- добавить две оси в пункте AD0;
- добавить две оси в пункте AB0;
- добавить одну ось в пункте BC0;
- в пункте CD0 оставить ноль.
Таким образом, «играясь» значениями, вы можете сделать схематичный чертеж фундамента с любыми видами секций. Также, для вашего удобства есть возможность повернуть чертеж (на 90, 180 или 270 градусов), выбрать его цвет, включить сетку и показывать ли направляющие линии.
Характеристики фундамента
Теперь нам необходимо указать размеры сторон, ширину ленты, высоту и глубину заложения ленточного фундамента, а также используемую марку бетона.
Заполнение полей с размерами сторон, не должно вызвать сложностей – все наглядно проиллюстрировано на чертеже ленточного фундамента.
Высота ленты рассчитывается индивидуально, в зависимости от ваших предпочтений, высоты цоколя или по другим причинам. Стандартная величина 40-50 см.
Армирование фундамента стеклопластиковой арматурой. Сильные и слабые стороны композитной арматуры
Не стоит ожидать, что какой-либо строительный материал окажется уникальным и унифицированным предложением. Однако грамотное применение в соответствии с условиями эксплуатации позволяет добиться воистину выдающихся результатов. Так и с композитной арматурой: используя её положительные качества и нивелируя отрицательные, можно обеспечить продолжительную эксплуатацию при меньших материальных затратах.
Главным достоинством стеклополимерной арматуры считается свойственный ей высокий предел разрушающего воздействия — почти в 2,5 раза выше, чем у стали. Выполнять работу по компенсации растягивающих воздействий в бетонном массиве у композитной арматуры получается намного лучше, чем у стали. Особенно если учитывать, что в ходе производства пластиковым стержням можно обеспечить фактуру поверхности, способствующую максимально эффективному сцеплению с бетонной массой.
Другой очевидный плюс — крайне высокая устойчивость к агрессивным средам. Бетонные конструкции, перманентно находящиеся в условиях высокой увлажнённости или подверженные воздействию солевых растворов, в случае армирования композитными материалами имеют гораздо более продолжительный срок службы. Нельзя забывать и о проявлениях электролиза: диэлеткрические свойства пластика могут быть как плюсом, так и минусом.
Не обходится и без ложки дёгтя: стеклопластиковая арматура необратимо теряет свои свойства при нагреве. Это вынуждает пересмотреть целесообразность её применения с точки зрения пожарной безопасности. При нагреве до 150–200 °С армирование лишается своих прочностных свойств, если же в качестве связующего были применены термореактивные полимеры — арматура теряет прочность необратимо.
Ещё один недостаток композитной арматуры — низкий модуль упругости, то есть малое сопротивление изгибу. Из-за этого в конструкциях с сосредоточенными воздействиями требуется закладка стеклопластиковой арматуры в количествах, до 4-х раз превышающих норму содержания по сечению в сравнении со стальным армированием.
Армирование фундамента в один ряд. Расчет армирования

Перед тем как начать армирование, важно рассчитать количество необходимых для его проведения, материалов. Для этого нужно определить необходимое сечение прутьев, используемых для армирования.
Если вы будет строить хозпостройку для хранения инвентаря или размещения небольшой мастерской, то вполне подойдет арматура сечением до 10-12 миллиметров. Если будет армироваться ленточный бетонный фундамент, тогда требуется большее сечение арматуры – от 15-20 миллиметров. Кроме того, арматура желательно должна иметь периодическое профилирование поверхности. Это создает дополнительную прочность армирующего каркаса. Прутья для дополнительного армирования, в том числе для вертикальной установки, могут быть тоньше – от 10 миллиметров в сечении.Если положен нижний продольный ряд, то расстояние до верхнего ряда, обычно составляет не меньше 30 сантиметров.
Для простоты расчетов предлагают отталкиваться от такого показателя: если длина одной части железобетонного элемента составляет 3 метра или немного больше, тогда самый меньший диаметр арматурного прутка должен быть 12 мм. Если учесть все нагрузки и равномерно распределить их по элементу, тогда требуется сделать два пояса армирования с прутком сечением от 12 мм.Какими будут диаметры поперечной арматуры? Если каркас армирования не более 80 сантиметров, тогда минимальное сечение арматуры составляет 8 мм.

Все эти расчетные данные являются ориентировочными. Как мы уже говорили, их можно использоваться для оценки требуемых работ, а не для конкретного дома, поскольку необходимо учитывать массу особенностей проекта дома. Прежде всего, особенности стен, веса кровли, внутренних секций, типа перекрытий.
Армирование фундамента одноэтажного дома. Как выбрать арматуру для фундамента
Вот, казалось бы, нет задачи проще. Но, увы, к ней нужно подходить не менее ответственно, чем к выбору марки бетона. У кого-то, конечно, может хобби такое — перестраивать дом каждые 10-15 лет, тогда можно и из тонких прутков каркас собрать. И дешево и сердито. Однако в большинстве случаев жилище мы ставим если не на века, то на несколько десятилетий точно. Поэтому и прочность фундамента должна соответствовать задаче.
Как известно, бетон отлично выдерживает нагрузки на сжатие, а вот на разрыв работает крайне плохо. Именно поэтому без дополнительного армирования здесь не обойтись. Арматура принимает на себя вертикальные нагрузки и равномерно распределяет их по горизонтали, то есть по всему бетонному полотну. В итоге, бетонная основа служит крайне долго, не трескается, не проседает и не деформируется.
Итак, несколько советов по выбору арматуры для фундамента .
1. Выбирайте горячекатную стальную рифленую арматуру, изготовленную согласно стандартам, ГОСТ 5781-82. Благодаря наличию поперечных ребер сцепление с бетоном будет значительно крепче. Если опираться на класс арматуры, то целесообразно выбирать А400. Это самый оптимальный класс для фундамента.
2. Чтобы понимать, какой диаметр использовать для той или иной монолитной конструкции, нужно делать расчет. Обычно этим занимается инженер. Но если в вашем регионе такие специалисты занесены в Красную книгу, рекомендую использовать арматуру не менее 10 мм в сечении. Больше — можно, меньше — зло. Оптимальный вариант для одноэтажного строительства — . Отталкивайтесь от этого параметра.
В принципе, вы всегда можете проконсультироваться со специалистами завода или компании, где планируете приобрести железо для армирования фундамента. У инженеров компании (название вашей компании) она бесплатна.
3. Стандартная длина арматуры — 11.7, 12 и 6 метров. Она обусловлена длиной кузова спецтранспорта, который перевозит такие грузы. Для частных строительств лучше сразу заказывать арматуру длиной не более 6 метров. Также вы можете использовать арматуру НДЛ (нестандартной длины) — от 1,5 до 6 метров.
С выбором разобрались, приступаем к сборке.