Армирование фундамента своими руками от А до Я. Классификация
- Армирование фундамента своими руками от А до Я. Классификация
 - Как армировать фундамент.
 - Армирование фундамента в один ряд. Расчет армирования
 - Армирование фундамента чертеж. Пример расчета армирования фундамента
 - Арматурный каркас для ленточного фундамента расчет. Какую арматуру выбрать?
 - Армирование фундамента калькулятор. Калькулятор ленточного фундамента
 
Армирование фундамента своими руками от А до Я. Классификация
Изделия отличаются классом прочности. В ходе устройства фундамента домов коттеджного типа и других одноэтажных сооружений чаще используют металлические, классов А240 и А400 (А500С).
Также различают арматуру:
- Стержневого или проволочного вида.
 - Периодического или гладкого профиля.
 
Проволочную, согласно технологии, используют для хомутов, вязки каркаса и т.п. В качестве рабочей применяются только стержни. А периодический профиль обеспечивает лучший контакт с бетоном, включая его в совместную работу. От гладкопрофильной бетон может отслоиться.
Арматура подразделяется на:
- Рабочую (чаще – продольная) – главная, необходима для восприятия основных усилий от нагрузок, классом А400 или А500. Обычно диаметр ее больше остальных.
 - Конструктивную – служит для распределения нагрузок по прутьям, для включения их в совместную работу. Для пространственных связей зачастую используются хомуты.
 - Монтажную – для облегчения пространственной сборки каркасов и выравнивания в проектное положение перед бетонированием.
 

Особенности армирования
При просадке грунта, в зависимости от того, случилось это по краям основания или посередине – растягивающие напряжения в теле конструкции могут возникнуть как сверху, так и снизу. Поэтому по правилам необходимо создать два пояса, в верхней и нижней части фундамента соответственно. Пояса состоят из нескольких прутьев рабочей арматуры, согласно инструкции их необходимо объединить между собой поперечными связями или хомутами, которые должны обхватывать продольные стержни с внешней стороны.
Армировка требует много физической силы, времени и носит травмоопасный характер. У неподготовленного человека на это могут уйти недели.

Конструктивные правила к армированию, изложенные в СП 63.13330.2012 в пункте 10.3, направлены на то, чтобы максимально обеспечить совместную работу арматуры с бетоном, а именно:
- Защитный слой бетона. Его величина должна быть такой, чтобы свободно можно было выполнить стыки стержней, и достаточной для предохранения от внешней среды (во избежание образования ржавчины). Для фундаментов, залегающих ниже поверхности грунта, минимальный защитный слой бетона составляет 4 см, чаще применяют 5, для рабочей арматуры он может достигать 7 см.
 - Расстояние в свету. Между прутьями должны быть обеспечены зазоры, которые не будут препятствовать укладке бетонной смеси (она густая, и зачастую со щебнем или другим наполнителем, зазор между стрежнями должен быть больше фракции наполнителя, и такой, чтобы раствор беспрепятственно заполнял все пространство, без образования пустот). Расстояние между прутками в свету не должно быть меньше самого большого из используемых диаметров стержня, при этом не менее 50 мм для нижней арматуры, и не менее 25 мм для верхней.
 - Продольная армировка. Расчет сводится к определению ее процента в теле конструкции. Общая площадь сечения рабочих прутьев должна составлять не менее 0,1% от площади сечения фундамента. Для 120х50 см=6000 см2, 0,1% от него – 6 см2. Теперь подбирается диаметр по сечению, например, это может быть 6 прутков 12 (по 3 штуки в верхнем и нижнем поясе) или 4 с d=14 (по 2 вверху и внизу). На участках Т-образного примыкания процент армирования рекомендуется увеличить до 0,4%.
 
Как армировать фундамент.
представляет собой сплошную бетонную опору, размещенную под всеми несущими стенами дома.
Конструкция подобных оснований достаточно проста.
Степень прочности, устойчивости к возникающим нагрузкам и несущая способность образуют оптимальное сочетание, позволяющее использовать ленточный тип фундамента в большинстве построек.
С некоторыми дополнениями этот вид способен служить на разных видах грунта и в относительно неблагоприятных геологических условиях.
Основным элементом конструкции является арматурный каркас, обеспечивающий прочность ленты и устойчивость к напряжениям.
Бетон является специфическим материалом. Он способен без видимых последствий выдерживать значительное давление, но разнонаправленные, растягивающие нагрузки переносит с большим трудом.
Бетонный блок, являющийся монолитной отливкой без дополнительных усиливающих элементов, способен выдерживать только равномерную сдавливающую нагрузку.
Если усилие будет приложено в центральной части, а края блока окажутся зафиксированы, он переломится при относительно небольшой нагрузке. Использовать его в таком виде в качестве основания для строительного объекта невозможно.
Проблема решается с помощью армирующего каркаса, помещаемого внутрь блока перед отливкой.
Армирование ленточных оснований является необходимым и обязательным условием, предписываемым требованиями СНиП 52-01-2003. Регламентируются все рабочие моменты создания железобетонных конструкций — состав бетона, размеры и материал арматуры, тип конструкции каркаса, способ сборки и прочие вопросы.
Соблюдение норм СНиП обязательно для всех строителей, поскольку только таким образом можно обеспечить надежность постройки и безопасность людей.

Как работает арматура
Арматурные стержни способны переносить растягивающие нагрузки примерно в 10 раз больше, чем бетон. Будучи установленными внутрь отливки, они принимают на себя растягивающие нагрузки, не позволяя появиться трещинам, усиливая и укрепляя бетонную ленту.
Арматурный каркас представляет собой пространственную решетку, состоящую из несущих и вспомогательных стержней. Если сама лента в сечении представляет собой прямоугольник, то каркас в сечении образует подобную фигуру, но несколько уменьшенную.
Если на ленту воздействует изгибающая нагрузка, то начинают работать те стержни, которые расположены со стороны, противоположной точке приложения усилия. Они не позволяют ленте изменить форму, принимая на себя внешние воздействия.
ОБРАТИТЕ ВНИМАНИЕ!
Для особо ответственных конструкций используют напрягаемые стержни, которые перед заливкой бетона натягиваются, а после затвердения массива освобождаются. Такие основания способны работать в сложных условиях, но для частного домостроения не используются.
Основными элементами являются горизонтальные стержни — несущие, или рабочие. Вертикальные элементы служат для поддержки рабочей арматуры и в большинстве нужны лишь до момента заливки. После нее рабочие функции выполняют только угловые элементы, испытывающие дополнительные напряжения и эксплуатационные нагрузки.
Вспомогательная арматура делается из более тонких прутков и нужна для исключения смещения основных элементов при заливке и затвердении.

Как выбрать бетон
Требования СНиП к бетону достаточно жесткие .
Регламентируются все рабочие параметры материала:
- Степень прочности на сжатие и осевое растяжение.
 - Морозостойкость.
 - Водонепроницаемость.
 
Для жилых домов малоэтажной кирпичной или подобной застройки оптимальный вариант —М300. При использовании легких ячеистых или пористых материалов (пенобетон, керамзитобетон) допускается применение менее прочного и плотного бетона — марок М200 и даже М150.
Более прочные сорта используются для ответственных или многоэтажных объектов. Например, бетон М400 допускается применять для отливки фундамента по жилые здания высотой до 20 этажей.

Виды арматуры
Существует два вида арматуры :
- Металлическая.
 - Композитная.
 
Первый вид — всем знакомые стальные горячекатаные прутки с насечкой, позволяющей получить надежное сцепление с бетоном. Существуют стержни разного диаметра, от 6 до 80 мм, предназначенные для эксплуатации в соответствующих условиях.
Для вспомогательной арматуры могут быть использованы как рифленые, так и гладкие стержни меньшего диаметра.
Композитная— это целая группа, которая изготавливается из углепластика, базальтопластика и стеклопластика. Последний является наиболее распространенным и доступным вариантом. Он выгоднее металлического аналога с точки зрения стоимости, не поддается коррозии, не реагирует на электрохимические воздействия.
Однако, неспособность сгибаться усложняет сборку каркасов на изгибах или примыканиях, что уменьшает надежность этих узлов и повышает трудоемкость сборки. Диаметры стержней находятся в диапазоне от 3,5 до 48 мм.
ВАЖНО!
Армирование фундамента в один ряд. Расчет армирования

Перед тем как начать армирование, важно рассчитать количество необходимых для его проведения, материалов. Для этого нужно определить необходимое сечение прутьев, используемых для армирования.
Если вы будет строить хозпостройку для хранения инвентаря или размещения небольшой мастерской, то вполне подойдет арматура сечением до 10-12 миллиметров. Если будет армироваться ленточный бетонный фундамент, тогда требуется большее сечение арматуры – от 15-20 миллиметров. Кроме того, арматура желательно должна иметь периодическое профилирование поверхности. Это создает дополнительную прочность армирующего каркаса. Прутья для дополнительного армирования, в том числе для вертикальной установки, могут быть тоньше – от 10 миллиметров в сечении.Если положен нижний продольный ряд, то расстояние до верхнего ряда, обычно составляет не меньше 30 сантиметров.
Для простоты расчетов предлагают отталкиваться от такого показателя: если длина одной части железобетонного элемента составляет 3 метра или немного больше, тогда самый меньший диаметр арматурного прутка должен быть 12 мм. Если учесть все нагрузки и равномерно распределить их по элементу, тогда требуется сделать два пояса армирования с прутком сечением от 12 мм.Какими будут диаметры поперечной арматуры? Если каркас армирования не более 80 сантиметров, тогда минимальное сечение арматуры составляет 8 мм.

Все эти расчетные данные являются ориентировочными. Как мы уже говорили, их можно использоваться для оценки требуемых работ, а не для конкретного дома, поскольку необходимо учитывать массу особенностей проекта дома. Прежде всего, особенности стен, веса кровли, внутренних секций, типа перекрытий.
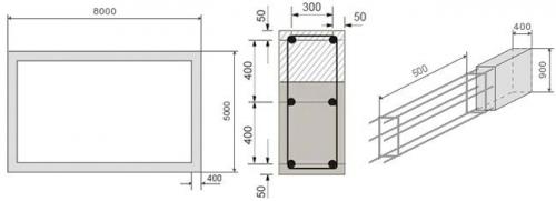
Армирование фундамента чертеж. Пример расчета армирования фундамента
Попробуем рассчитать, сколько потребуется материалов для обустройства армирования конкретного ленточного фундамента с чертежами. Допустим, мы строим из строительных блоков (шириной 0,4 м) небольшой загородный дом с габаритными (внешними) размерами 5×8 м. Характер почвы на нашем участке позволяет сделать высоту полосы 0,9 м, ее ширину 0,4 м, что соответствует ширине строительного материала стен. В арматурном каркасе для ленточного фундамента будем использовать продольные рабочие прутья диаметром 12 мм и □-образные поперечные хомуты, изготовленные из прутков диаметром 8 мм.
Армирование мелкозаглубленного ленточного фундамента:

На фото видно, что расстояние между рабочими продольными прутьями (0,4 м) и шаг □-образных поперечных хомутов (0,5 м) выбраны в соответствии с требованиями нормативных документов.
Проверяем относительное содержание продольных рабочих прутков в нашей железобетонной конструкции. Для этого воспользуемся следующими терминами и обозначениями:
- h – высота фундамента (900 мм);
 - w – ширина фундамента (400 мм);
 - Sₒ – площадь поперечного сечения фундамента;
 - Sₐ – суммарная площадь поперечных сечений продольных прутьев (6 штук);
 - r – радиус продольного прутка (6 мм), который равен d/2, где d – диаметр прутка (в нашем случае d=12 мм);
 - D – относительное содержание рабочих прутков в «теле» фундамента.
 
Sₒ = h∙w = 900∙400 = 360000 мм²
Sₐ = 6∙π∙r² = 6∙3,14∙6² = 678,24 мм²
D = (Sₐ∙100)/ Sₒ = (678,24∙100)/360000 = 0,1884 ≈ 0,19 % (что в 1,9 раза превышает минимально допустимое значение, то есть схема армирования ленточного фундамента выбрана нами правильно).
Расчет количества продольных прутьев
Для того чтобы определить сколько стандартных продольных прутьев (6 м) нам необходимо, воспользуемся следующими величинами:
- L – длина фундамента (8000 мм);
 - W – ширина фундамента (5000 мм);
 - P – периметр;
 - N – количество продольных элементов (в нашем случае 6 штук);
 - X – общая протяженность продольных прутьев.
 
P = (L+ W)∙2 = (8000 + 5000)∙2 = 26000 мм = 26 м
X = P∙N = 26∙6 = 156 м
К полученной величине необходимо добавить 20 % (материал для изготовления Г-образных или П-образных элементов для правильного армирования углов и обеспечения достаточного нахлеста при стыковке элементов).
Xдоп = X∙0,2 = 156∙0,2 = 31,2 м
Окончательная общая длина продольного арматурного прутка:
Xок = X + Xдоп = 156 + 31,2 = 187,2 м
Стандартная длина арматурного прутка составляет 6 м. Осталось посчитать, сколько таких прутков необходимо: Xок/6 = 187,2/6 = 31,2 ≈ 32 штуки.
Арматурный каркас для ленточного фундамента расчет. Какую арматуру выбрать?
Для армирования ленточного фундамента применяют рифленую арматуру класса А3 (А400) и А500С , в качестве основных рабочих стержней. Для изготовления конструктивных элементов чаще всего используют гладкую арматуру А1 (А240) , но можно применять и рифленую других классов, главное, чтобы соблюдалось требование по диаметру стержней.

1 -рабочие стержни; 2 – конструктивные элемент.
Сразу отметим, что мы не рекомендуем выполнять армирование ленточного фундамента на расчетах, выполненных самостоятельно. Для точного результата необходимо знать немало данных связанных с возводимым строением, а также математических формул для расчетов диаметра арматуры.
Если же вы, решили самостоятельно подобрать сечение арматуры для армирования фундамента, следует обратить внимание на тот факт, что при использовании слишком тонких прутов, вы можете снизить прочность и несущую способность всего фундамента. Отдавая предпочтение слишком толстым есть вероятность переплаты значительной сумму при закупке строительных материалов.
Поэтому следует придерживаться следующих минимальных рекомендаций по толщине арматуры для ленточного фундамента:
- 10 миллиметров для продольного армирования при длине стороны менее 3 метров.
 - 12 миллиметров для продольного армирования при длине стороны свыше 3 метров.
 - 6 миллиметров или больше для изготовления конструктивных элементов – «эсок» и хомутов из арматуры .
 
Приведенные выше параметры являются усредненными. Но в большинстве случаев при строительстве сравнительно небольших построек (гаражи, одно- и двухэтажные деревянные и каркасные дома, бани) прутья такого диаметра прекрасно справляются с нагрузками, обеспечивая надежность и значительный срок службы всей постройки.
Армирование фундамента калькулятор. Калькулятор ленточного фундамента

Грамотно спроектированный и построенный фундамент гарантирует долговечную эксплуатацию любого здания и сооружения. Сегодня существует несколько популярных типов оснований, но самым востребованным из всех безусловно является ленточный. Для его создания не требуется специальное оборудование, а технология монтажа проста, как два пальца – каждый в состоянии построить ленточный фундамент своими руками.
Сервис KALK.PRO предлагает вам выполнить расчет ленточного фундамента с помощью онлайн-калькулятора . Он предназначен для расчета количества и объема материалов, подбора оптимальной толщины ленты, определения допустимой нагрузки на грунт и многого другого. Для наглядности программа выводит динамические чертежи и 3D-модель, которые изменяются в зависимости от выбираемых параметров и задаваемых значений.
Калькулятор позволяет рассчитать МЗЛФ, стандартный или углубленный фундамент монолитного типа – методика вычисления во всех случаях ничем не отличается. Для удобства пользователей, в алгоритм программы заложен расчет арматуры и расчет бетона для ленточного фундамента. В скором времени планируется добавить опалубку.
Инструкция
Наш сервис позволяет рассчитать ленточночный фундамент под дом максимально точно, однако достоверность этих расчетов напрямую зависит, от того какие параметры вы заполните в поля калькулятора. Специально для исключения подобных недоразумений, было записано обучающее видео с подробным пояснением всех элементов калькулятора ленточного фундамента и используемых величин. Смотрите инструкцию и задавайте свои вопросы в комментариях, если требуется уточнение.
Для тех, у кого нет возможности просмотреть видео со звуком или есть проблемы с воспроизведением видео, мы подготовили укороченную текстовую версию примера расчета ленточного фундамента на нашем сервисе. Читайте чуть ниже.
Заполняйте поля калькулятора ВНИМАТЕЛЬНО , так как любая, даже незначительная ошибка может стоить потраченного времени и средств.
Обзор интерфейса
Интерфейс калькулятора расчета ленточного фундамента должен быть интуитивно понятен большинству пользователей, так как выполнен достаточно просто.
Основная часть программы подразделяется на несколько крупных элементов:
- Вводный блок с начальными данными и упрощенной схемой.
 - Подробный чертеж ленточного фундамента, который отрисовывается на основании первого пункта.
 - Интерактивная 3D-модель, которая позволяет посмотреть все элементы конструкции в трехмерном пространстве.
 - Результаты расчета (материалы, величины, допустимые значения…).
 
Также под самим калькулятором, приведена небольшая справка, в каких форматах доступно скачивание, как сохранить результат, отправить по электронной почте или добавить в закладки.
Схема
Исходя из плана вашего дома, вы начинаете визуализировать устройство монолитного ленточного фундамента. С помощью конфигуратора, задайте необходимое количество лент и их расположение.
Сервис ограничивает максимально возможное количество осей по горизонтали и по вертикали. Вы можете задать не более 2 дополнительных линии по каждому направлению, т.е. в сумме не больше 8 осей.
Для того чтобы добавить параллельные горизонтальные (буквенные) оси, выберите в первом пункте AD0 необходимое количество (1 или 2). Новые прямые расположатся между осями AD и будут называться B и С.
Вертикальные оси (цифровые) добавляются не на всю длину ленточного фундамента, а конкретно к каждой секции AB, BC или CD.
Для того чтобы сместить секцию, заполните поле «Смещение стороны». Подробнее об этом смотрите ниже, где разбирается практический пример.
Пример 1.
Для того чтобы получить квадратный монолитный ленточный фундамент для дома, разделенный на 9 равных блоков, вам нужно:
- добавить две оси в пункте AD0;
 - добавить две оси в пункте AB0;
 - добавить две оси в пункте BC0;
 - добавить две оси в пункте CD0.
 
Пример 2.
У вас нестандартный фундамент, который разделен на 6 неравнозначных секций. Блок AB разбит на три части, блок BC на две, а CD не разбит.
- добавить две оси в пункте AD0;
 - добавить две оси в пункте AB0;
 - добавить одну ось в пункте BC0;
 - в пункте CD0 оставить ноль.
 
Таким образом, «играясь» значениями, вы можете сделать схематичный чертеж фундамента с любыми видами секций. Также, для вашего удобства есть возможность повернуть чертеж (на 90, 180 или 270 градусов), выбрать его цвет, включить сетку и показывать ли направляющие линии.
Характеристики фундамента
Теперь нам необходимо указать размеры сторон, ширину ленты, высоту и глубину заложения ленточного фундамента, а также используемую марку бетона.
Заполнение полей с размерами сторон, не должно вызвать сложностей – все наглядно проиллюстрировано на чертеже ленточного фундамента.
Высота ленты рассчитывается индивидуально, в зависимости от ваших предпочтений, высоты цоколя или по другим причинам. Стандартная величина 40-50 см.