Вязка арматуры для ленточного фундамента своими руками. Чем вяжут арматуру
- Вязка арматуры для ленточного фундамента своими руками. Чем вяжут арматуру
- Арматурный каркас для ленточного фундамента расчет. Как выполнить расчет количества арматуры для ленточного фундамента при помощи онлайн-калькулятора + вычисления параметров опалубки и сечения
- Армирование ленточного фундамента. Особенности конструкции
- Армирование ленточного фундамента снип. Схема армирования и технология строительства основания
- Шаг вязки арматуры для ленточного фундамента. Как делать вязку арматуры под ленточный фундамент
- Как работает арматура в ленточном фундаменте. Как обосновать продольную арматуру ленточного фундамента.
- Армирование фундамента чертеж. Ленточный фундамент Наиболее подверженными деформационным нагрузкам местами в армокаркасе ленточного фундамента являются угловые и примыкающие соединения арматуры.
- Армирование мелкозаглубленного фундамента. Область применения МЗЛФ
- Вязка арматуры для фундамента своими руками. Способы вязки арматуры
Вязка арматуры для ленточного фундамента своими руками. Чем вяжут арматуру
Поскольку в строительстве фундаментов и капитальных стен используют в основном арматуру в виде стальных стрежней, их соединение для восприятия сжимающих или растягивающих напряжений обязательно. В массовом строительстве для соединения применяется метод сварки и вязки, в индивидуальном – обычно только вязки. При этом вязка арматуры выполняется с помощью:
- вязальной проволоки;
- арматурных фиксаторов.
Под термином «вязальная проволока» понимается круглая проволока из низкоуглеродистой стали по ГОСТ3282-74. Она может быть обычной и термически обработанной (с маркировкой «О»), с покрытием и без. Толщина цинкового покрытия определяет класс материала.
Выбирая, какой проволокой вязать арматуру, следует обращать внимание на марку бетона и условия эксплуатации конструкции. При этом учитываются механические свойства
Так, если вязка арматуры под фундамент предполагается вручную, лучше выбирать более тонкий вариант, поскольку без специального инструмента толстая проволока для вязки арматуры требует значительных усилий.
Кроме низкоуглеродистой проволоки промышленного производства допустимо использование металлокорда из автомобильных шин. При сжигании шин металлокорд высвобождается и одновременно проходит термическую обработку, что в дальнейшем упрощает работу с ним. Такой вариант вязального материала приемлем только при малых объемах работ и индивидуальном малоответственном строительстве.
Применимы также пластиковые хомуты, обычные и со стальным сердечником. Обычно они используются для стеклопластиковой арматуры . Применение хомутов допустимо в случаях, когда жидкий бетон не будет подвергаться механическим нагрузкам в процессе застывания (по нему не будут ходить, складывать тяжелые вещи, нагружать другими строительными материалами). Этот вариант применим для малоэтажной застройки, поскольку в процессе заливки большой массы бетонной смеси крепления могут смещаться вместе с арматурой. Смещение нарушает работу каркаса и приводит к изменению расчетной прочности конструкции.
Арматурный каркас для ленточного фундамента расчет. Как выполнить расчет количества арматуры для ленточного фундамента при помощи онлайн-калькулятора + вычисления параметров опалубки и сечения
занимает основное место среди всех опорных конструкций для зданий и сооружений.
Он способен эффективно работать на самых сложных грунтах, имеет оптимальный набор эксплуатационных качеств.
Монолитные конструкции ленты не теряют своих рабочих качеств до 150 лет, что превышает срок службы стен дома.
Такие высокие возможности возникли из-за высокой жесткости и прочности ленты, которые обеспечивает совместная работаи металлической арматуры.
Каждый из них выполняет свою функцию, в сумме обеспечивая надежность и высокую несущую способность ленточного основания.
Арматурный каркас необходим для компенсации осевых противонаправленных (растягивающих) нагрузок, возникающих в ленте при появлении деформирующих воздействий — изгибающих или скручивающих усилий .
Особенность бетона состоит в способности принимать гигантские давления без каких-либо последствий.
При этом, он практически беззащитен перед разнонаправленными усилиями, быстро покрывается трещинами и разрушается .
Поэтому для ленты крайне опасны любые усилия, приложенные в одной точке — например, боковые или вертикальные нагрузки пучения. Арматурные стержни предназначены для приема этих усилий на себя.
Существует горизонтальная (рабочая) и вертикальная арматура . Основные нагрузки принимают горизонтальные стержни.
Они имеют больший диаметр и рифленую поверхность, обладающую хорошим сцеплением с бетоном.
Вертикальные стержни выполняют две функции :
- Фиксация рабочей арматуры в необходимом положении до момента заливки бетоном.
- Частичная компенсация скручивающих усилий.
Первая задача основная, а вторая — дополнительная, поскольку наличие таких специфических нагрузок наблюдается довольно редко .
В большинстве случаев вертикальная (гладкая) арматура служит лишь опорной конструкцией, удерживающей рабочие стержни в необходимом положении до момента заливки.
Они довольно толстые, так как — процесс с достаточно интенсивными воздействиями на каркас, сосредоточенными в одной точке (место падения тяжелого материала в опалубку), а также распределенными по всей длине (штыкование, обработка виброплитой) .

Онлайн калькулятор
Как рассчитать ленточный фундамент дома? В этой вам может специально разработанный сервис —ленточного фундамента.

Инструкция по работе с калькулятором
В сети интернет имеется немало онлайн-калькуляторов, помогающих рассчитать параметры ленточных фундаментов по всем важным позициям . Расчет арматуры с их помощью занимает буквально пару минут.
Например, нанеобходимо лишь внести собственные данные в соответствующие окошечки программы и нажать кнопку «рассчитать».
Дается схема армирования, в которой надо указать основные параметры — количество рабочих стержней в одном ряду, общее число рядов, расстояние между вертикальными прутками и т.п. В отдельном окне указывается стоимость арматуры за единицу.
В результате программа выдает количество арматуры и общую цену. Расчет производится просто и быстро, кроме арматуры ресурс выдает параметры всех элементов ленты — , количества бетона и т.д.
Недостатком данного калькулятора можно считать необходимость заранее знать схему армирования, диаметр стержней и рыночную стоимость материала.
Если требуется определить количество и сечение стержней, ресурс бесполезен. Он дает только количественную информацию, не касаясь качественных моментов, что иногда не совсем то,что нужно .
ВАЖНО!
Не все онлайн-калькуляторы работают по такому алгоритму. Имеются и другие, определяющие именно размеры и общие параметры арматурного каркаса, которые станут полезными для получения первичной информации . Стоимость материала следует узнавать непосредственно у продавцов, поскольку в этом вопросе имеется масса специфических факторов.
Порядок расчета
Рассмотрим, как рассчитать арматурный каркас ленты самостоятельно .
Прежде всего, необходимо определить количество рабочих стержней в одном ряду. Для этого понадобится использовать требование СП 52-101-2003, ограничивающее максимальное расстояние между соседними прутками в 40 см.
Учитывая, что погружения рабочей арматуры не должна превышать 2-5 см, получаем :
- Для лент толщиной менее 50 см — 2 рабочих стержня.
- Для лент шире 50 см — 3 стержня.
В случаях, когда можно использовать и 2, и 3 стержня в одном ряду, обычно стараются подстраховаться и принять большее значение, так как фундамент — ответственный и важный участок постройки.
Вторым этапом является определение диаметра рабочих стержней. Для этого понадобится рассчитать площадь сечения рабочей части ленты, умножив ширину на высоту.
Армирование ленточного фундамента. Особенности конструкции
Ленточный фундамент – это замкнутый контур из железобетонных балок, заложенный по периметру здания и под несущими стенами, и передающий нагрузку здания подлежащему грунту. На нем строят как легкие садовые домики и каркасные дома, так и тяжелые монолитные «замки» и каменные коттеджи: несущая способность зависит от ширины и высоты ленты. На прочных грунтах на ленточном фундаменте строят даже многоквартирные дома в двенадцать этажей. Также именно этот тип фундамента используют для домов с цокольными этажами и подвалами – лента рассматривается, как стена подвала.

Для такой конструкции годятся почти все типы грунтов, кроме неустойчивых торфянистых – поэтому на слабонесущих и обводненных землях Ленинградской области дома ставят сложных и дорогих фундаментах, а в Москве такие конструкции будут лишней тратой денег.
Ленточный фундамент обычно устраивают на подушке из песка средней фракции с виброуплотнением через каждый 100 мм. Глубина конструкции рассчитывается с учетом особенностей участка:
- наличие или отсутствие подвальных помещений;
- глубина залегания грунта;
- вес и другие характеристики здания.
al185 Модератор FORUMHOUSE
Фундамент следует строить не по хотелкам и фанатично красивым идеям, а по расчету. Фундамент в ИЖС рассчитывается на расчетное сопротивление грунта основания и под нагрузки объекта, с обязательным учетом возможных неблагоприятных факторов: гидрогеологических, сил морозного пучения, неоднородности основания, просадочных и набухающих грунтов.
Все деформированные дома с перекошенными проемами построены на неправильном фундаменте, рассчитанном и построенном без учета особенностей грунта, уровня грунтовых вод, веса дома и т.п.
В зависимости от особенностей конструкции и глубины заложения выделяют несколько видов ленточных фундаментов.
По конструкции:
Тип | Особенности конструкции |
Монолитный | Цельная отливка из железобетона с высокими показателями прочностями и максимальной несущей способностью. Ее заливают за один прием. Арматура должна быть качественной, соответствующего сечения – это дает устойчивость к изгибающим нагрузкам. |
Сборный | Состоит из заводских фундаментных блоков (ФБС). Несколько проигрывает монолитной ленте по эксплуатационным свойствам, часто применяется в малоэтажном строительстве. Для повышения устойчивости и долговечности таких ленточных фундаментов делают песчаную подушку, на нее устраивают специализированные железобетонные подошвы ФЛ, а уже поверх них на цементно-песчаный раствор кладут ФБС. Сверху эту конструкцию может завершать армопояс – для прочности и равномерного распределения нагрузок. |
По глубине залегания
Тип | На каких грунтах используется |
Незаглубленный | Только на скалах и стопроцентно неподвижных грунтах, поэтому делают его крайне редко и не для домов, а для хозяйственных строений. Такой ленточный фундамент делают только монолитным. |
Мелкозаглубленный | На прочных грунтах, которые не подвержены морозному пучению. Закладывают на глубину меньше уровня промерзания грунта. |
Полнозаглубленный. | Подходит почти для всех грунтов и гидрогеологических условий, заглубляется ниже расчетной глубины промерзания (но не на твердых глинах и песчаных грунтах с низким УГВ). Выполняется в траншеях и котлованах с обратной засыпкой. |

Такое количество разновидностей ленточного фундамента, как молнолитного, так и из блоков позволяет сделать правильный выбор для условий конкретного участка и получить хороший результат. У ленточного фундамента один большой недостаток (не считая обилия земляных работ и времени, которое уйдет на созревание бетона после заливки) – он может получиться дорогим, поэтому, если речь идет о легких постройках, лучше не выбрать другой вариант. Но все же ленточный фундамент имеет очевидные преимущества, это:
- долгий срок службы;
- высокая несущая способность;
- нагрузки дома равномерно распределены на грунтовое основание;
- технология строительства довольно проста.
Заливка прямо в землю, или так называемый «кубанский вариант» ленточного фундамента является нарушением технологии, на FORUMHOUSE от этого предостерегают.
RNikonov Участник FORUMHOUSE
Устройство ленточного фундамента с заливкой «в землю» считаю недопустимым. Сделать ленту «в землю» качественно почти невозможно.
Армирование ленточного фундамента снип. Схема армирования и технология строительства основания
Армирование бетонной формы основания проводится в два яруса – верхним и нижним рядами арматуры с поперечным и продольным усилением дополнительными прутьями. Для формирования прочного, но гибкого армокаркаса применяют арматурные прутья категории А III – это стальной профиль круглого сечения Ø 10-16 мм, имеющий два продольных ребра жесткости и поперечные грани, отлитые по спирали.
При общей высоте основания ≥ 0,15 м в каркас необходимо встраивать вертикальные стержни арматуры, что делается методом связывания при помощи мягкой вязальной проволоки (СНиП 52-01-2003 и СП 52-101-2003). Для вертикального усиления каркаса применяют арматуру класса А I – это гладкая арматура Ø 6-8 мм. Чтобы компенсировать продольные нагрузки в теле бетонного ленточного фундамента, каркас усиливается поперечной арматурой, которая предотвращает образование микротрещин и скрепляет друг с другом продольные ярусы армирующего каркаса основания.
Онлайн калькулятор для расчета арматуры
Согласно указанным СНиП, вертикальная и поперечная арматура связывается в единую конструкцию стальными хомутами, расстояние между которыми соблюдается как 3/8 от высоты ленточного фундамента, и должно быть ≥ 0,25 м.
Также армирующий каркас в соответствии со снип фундаменты ленточные не должен собираться из поврежденных или ржавых стержней – арматура должна быть ровной и порезанной по расчетным размерам. Отдельные арматурные прутья также соединяются между собой при помощи мягкой или отожженной вязальной проволоки и вязального крючка. Применять сварочное оборудование разрешено только для соединения прутьев с мариковкой «С».
Армирование ленточных оснований
Правила связывания армирующего каркаса должны соблюдаться неукоснительно, иначе не получится добиться требуемой жесткости каркаса. Связывание углов и присоединений каркаса предотвращает разрушающее воздействие локальных нагрузок на фундамент. Для угловых примыканий используются арматурные прутья класса А III. Основные рекомендации при соединении углов армокаркаса:
- Прут необходимо согнуть в таким образом, чтобы один его конец входил в стену основания, второй конец входил в противоположную стену;
- Запускать стержень арматуры на противоположную стену следует на длину сорока диаметров прута;
- Не разрешается применять простое связывание пересечений арматуры без из усиления дополнительными вертикальными и поперечными отрезками арматуры;
- При длине прута, не позволяющей загнуть его на противоположную стену фундамента, арматура соединяется Г-образными металлическими профилями;
- Шаг между соединительными хомутами выбирается в два раза короче, чем в ленте.
Шаг вязки арматуры для ленточного фундамента. Как делать вязку арматуры под ленточный фундамент
Фундамент – это основа всего строения, гарант его долговечности и прочности. Армирование ленточного фундамента, чертежи и схемы должны быть подготовлены и рассчитаны заблаговременно.
Необходимость армирования
Фундамент представляет собой монолитную железобетонную конструкцию. Сам бетон – материал, который выдерживает значительные нагрузки только на сжатие. Чтобы увеличить прочность фундамента на растяжение и изгиб, необходимо изготовить металлический каркас. Причем показатели прочности увеличиваются только за счет обустройства рабочих продольных прутьев. Поэтому в качестве их используют толстые профилированные прутки диаметром 10÷14 мм. Поперечные элементы предназначены для создания пространственной геометрии фундамента, они не позволяют продольным пруткам смещаться при заливке бетонного раствора, и удерживают их в нужном месте. Для этих целей можно использовать гладкие или профилированные прутки диаметром 6÷9 мм.

Требования нормативных документов к материалам для армирования
Как правильно армировать ленточный фундамент, можно узнать, ознакомившись с нормативными документами. Требования, которые необходимо соблюдать при армировании монолитного ленточного железобетонного фундамента, изложены в СНиП 52-01-2003 .
Разновидности стальных прутьев, рекомендованных для армирования:
- горячекатаные гладкие или профилированные (Ø=3÷80 мм);
- термомеханически упрочненные профилированные (Ø=6÷40 мм);
- холоднокатаные профилированные или гладкие (Ø=3÷12 мм).

Важно! По сравнению с гладкими, профилированные прутья имеют лучшее сцепление с бетоном: это позволяет значительно увеличить надежность конструкции.
Требования к расположению прутьев в армокаркасе для ленточного фундамента:
- расстояние между продольными стержнями должно быть не более 0,4 м;
- шаг поперечных фиксирующих элементов должен составлять не более 0,5 м.
Минимальное относительное содержание рабочих продольных прутьев в железобетонном элементе должно составлять не менее 0,1 %.
Для вязки элементов железобетонной конструкции должна применяться только специальная стальная обожженная проволока (Ø=0,8÷1,2 мм).
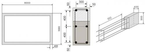
Пример расчета армирования фундамента
Попробуем рассчитать, сколько потребуется материалов для обустройства армирования конкретного ленточного фундамента с чертежами. Допустим, мы строим из строительных блоков (шириной 0,4 м) небольшой загородный дом с габаритными (внешними) размерами 5×8 м. Характер почвы на нашем участке позволяет сделать высоту полосы 0,9 м, ее ширину 0,4 м, что соответствует ширине строительного материала стен. В арматурном каркасе для ленточного фундамента будем использовать продольные рабочие прутья диаметром 12 мм и □-образные поперечные хомуты, изготовленные из прутков диаметром 8 мм.
Армирование мелкозаглубленного ленточного фундамента:

На фото видно, что расстояние между рабочими продольными прутьями (0,4 м) и шаг □-образных поперечных хомутов (0,5 м) выбраны в соответствии с требованиями нормативных документов.
Проверяем относительное содержание продольных рабочих прутков в нашей железобетонной конструкции. Для этого воспользуемся следующими терминами и обозначениями:
- h – высота фундамента (900 мм);
- w – ширина фундамента (400 мм);
- Sₒ – площадь поперечного сечения фундамента;
- Sₐ – суммарная площадь поперечных сечений продольных прутьев (6 штук);
- r – радиус продольного прутка (6 мм), который равен d/2, где d – диаметр прутка (в нашем случае d=12 мм);
- D – относительное содержание рабочих прутков в «теле» фундамента.
Sₒ = h∙w = 900∙400 = 360000 мм²
Sₐ = 6∙π∙r² = 6∙3,14∙6² = 678,24 мм²
D = (Sₐ∙100)/ Sₒ = (678,24∙100)/360000 = 0,1884 ≈ 0,19 % (что в 1,9 раза превышает минимально допустимое значение, то есть схема армирования ленточного фундамента выбрана нами правильно).
Расчет количества продольных прутьев
Для того чтобы определить сколько стандартных продольных прутьев (6 м) нам необходимо, воспользуемся следующими величинами:
- L – длина фундамента (8000 мм);
- W – ширина фундамента (5000 мм);
- P – периметр;
- N – количество продольных элементов (в нашем случае 6 штук);
- X – общая протяженность продольных прутьев.
P = (L+ W)∙2 = (8000 + 5000)∙2 = 26000 мм = 26 м
X = P∙N = 26∙6 = 156 м
К полученной величине необходимо добавить 20 % (материал для изготовления Г-образных или П-образных элементов для правильного армирования углов и обеспечения достаточного нахлеста при стыковке элементов).
Xдоп = X∙0,2 = 156∙0,2 = 31,2 м
Окончательная общая длина продольного арматурного прутка:
Xок = X + Xдоп = 156 + 31,2 = 187,2 м
Стандартная длина арматурного прутка составляет 6 м. Осталось посчитать, сколько таких прутков необходимо: Xок/6 = 187,2/6 = 31,2 ≈ 32 штуки.
Как работает арматура в ленточном фундаменте. Как обосновать продольную арматуру ленточного фундамента.
В чем заключается вопрос? Кстати, это достаточно актуальная ситуация ввиду того, что грунты под зданием чаще, все же, равномерно расположены по глубине.
Так вот, есть здание (не важно какое 2,3 этажа, 4 и так далее). Под него запроектирован ленточный фундамент. Фундамент монолитный, в нем взята какая-то арматура. И выдан проект. И вдруг заказчик требует обоснования применяемой арматуры. Но если сделать расчет, то выясняется, что грунты равномерные под подошвой и по глубине грунтовой толщи, сильной разницы по нагрузкам от стен нет и, де факто, фундамент нигде не испытывает фактически никаких нагрузок кроме сжимающих. Ни изгиба, ни растяжения нигде нет. Вследствие массивности ленточного фундамента он на сжатие даже без арматуры проходит со свистом многократно перекрывая нагрузку. Как доказать, что арматура нужна и в каком конкретно количестве?
Тут все очень просто. Мы делаем монолитный фундамент. Армирование там необходимо хотя бы для исключения трещин вследствие усадки бетона, температурных воздействий и во время строительства, когда возможно неравномерное нагружение. То есть мы не можем протяженные бетонные конструкции делать без арматуры. Это почти гарантированно приведет к трещинам каждые 6-7 метров. То есть нам арматура нужна в любом случае. И вот тут, так как армированный бетон – это уже железобетонная конструкция у нас вступает в действие требование по минимальному проценту армирования железобетонных конструкций, прописанное в СП63.13330 п.10.3.6.
Берем оттуда процент, требуемый для нашей конструкции и армируем как минимум на это значение. А также учитываем требования пункта 10.3 того же СП по максимальным расстояниям между стержнями арматуры для железобетонных конструкций.
Да, и все эти требования в нормах взяты не от фонаря, а из условий того, что только при выполнении этих требований по расположению арматуры конструкция будет работать эффективно и долговечно.
Армирование фундамента чертеж. Ленточный фундамент Наиболее подверженными деформационным нагрузкам местами в армокаркасе ленточного фундамента являются угловые и примыкающие соединения арматуры.
Важно : для стыковки углов армокаркаса применяются гнутые арматурные стержни, согласно строительным нормам не допускается соединение отдельных прутьев перекрестным способом.
Пространственная схема соединения прямых участков арматурного каркаса приведена на изображении 1.5.
Рис. 1.4 : Схема армокаркаса ленточного фундамента
Армирование изгибов фундамента со сложной конфигурацией выполняется двумя цельными продольными стержнями (внешним и внутренним), повторяющими форму сгиба.
Рис. 1.5 : Схема соединения арматуры в ленточном фундаменте на углах свыше 160 градусов
При укреплении углов фундамента с отклонением менее 160 градусов, на внешнем контуре каркаса используется цельный стержень, внутренний пояс изготавливается из двух выгнутых по очертаниям угла прутьев.
Рис. 1.6 : Армирование углов ленты до 160 градусов
При армировании угловых соединений применяется два способа - нахлеста и Г-образной стыковки.
Рис. 1.7 : Соединение угловых частей армокаркаса
Примыкания фундаментной ленты в местах стыковки внутренних и внешний стен зданий армируются П-образным либо Г-образным соединением прутьев.
Рис. 1.8 : Соединение армокаркаса на стыках стен
Вышеуказанные способы армирования углов обеспечивают требуемую пространственную жесткостьв наиболее подверженных деформации местах.На размещенном ниже изображении приведены недопустимые способы армирования.
Рис. 1.9 : Неправильное армирование углов ленточного фундамента
Гибку арматуры для угловых соединений армокракаса можно производить вручную, посредством самостоятельно изготовленного станка. При работе с прутьями большого диаметра металл в местах перегиба, для придания ему пластичности, имеет смысл прогревать паяльной лампой.
Армирование мелкозаглубленного фундамента. Область применения МЗЛФ
Мелкозаглубленные фундаменты используют для построек с низкой нагруженной массой. Как пример, можно привести дома на стальном или деревянном каркасе, а также здания, сложенные из легковесных элементов (пенобетон, ПКБ). Обычно этажность строений на МЗЛФ не превышает двух.
В определении МЗЛФ мелкозаглубленный — означает полностью находящийся в промерзаемом слое грунта, подземная часть бетонной ленты редко превышает 500–700 мм. Силы морозного пучения при таком расположении не создают касательных (разрывающих) нагрузок, но всё здание вместе с фундаментом динамически перемещается вслед за расширением почвы. По этой и другим причинам мелкозаглубленную ленту не рекомендуется устраивать на участках с общим уклоном рельефа более 2%. На более крутых уклонах мелкозаглубленный фундамент можно строить только после перепланирования грунта с образованием горизонтальной террасы.

Целесообразность применения МЗЛФ заключается в гораздо меньшем расходе материалов и простоте проектирования. Если для здания не планируется цокольный этаж, мелкозаглубленная лента сократит объём бетонной смеси и арматуры в 2–3 раза, при этом обеспечит эквивалентную несущую способность.

Стоит, однако, отметить, что на рыхлых торфяных, илистых грунтах и селевой супеси мелкозаглубленный фундамент основать не получится. Такие грунты имеют слишком низкую плотность и высокую пластичность, поэтому требуют устройства свайно-ростверковых оснований, опирающихся на более плотные слои почвы. Не следует устраивать МЗЛФ на грунтах с показателями пучения более 4% или если УГВ находится выше глубины залегания при том, что дренирование участка не планируется, чтобы после не пришлось разбираться с последствиями .
Вязка арматуры для фундамента своими руками. Способы вязки арматуры
Рассмотрим всё существующие способы, как можно соединить арматуру. Каждый из вариантов хорош в чём-то своём, и используется строителями, в зависимости от типа строения и проектных требований. Существует 3 способа соединения прутов, с ихней помощью создаётся крепкий и надёжный металлический каркас:
- Вязка проволокой.
- Сварка.
- Пластиковые хомуты.

Эти способы вязки арматуры имеют свои особенности. Каждый из них правильный и применяется в зависимости от требований и используемого материала. При армирование ленточного фундамента для частного дома, часто соединяют арматуру методом сварки, а не связывают её проволокой. Но какой вариант является лучшим?
Преимущества и недостатки соединения сваркой
Несмотря на то что это разные технологии, правильный выбор может сэкономить средства и время на строительство, при этом без потерь прочности конструкции. Метод соединения элементов сваркой, раньше считали одним из самых надёжных и эффективных. Однако, подобная технология не всегда является уместной. Обычно её использовали при монтаже громоздких каркасов, которые усиливают фундамент для многоэтажных домов и габаритный коттеджей.
Подобный метод имеет некоторые недостатки:
- Требуется иметь навыки работы со сварочным аппаратом, иначе нужно потратиться на услугах профессионального сварщика. Себестоимость в таком случае увеличивается.
- Места сварки – слабое место конструкции. Там прочность каркаса становится ниже.
- Метод не подходит, если использовать стеклопластиковую арматуру . К тому же арматура А-400 (А-3) , которая является самой востребованной, не может быть соединена посредством сварки. Только пруты с индексом «С» подойдут для работы, например: арматура А500С .
Поэтому в современном монолитном строительстве, сварку заменили вязкой. Для частных и жилых домов, строительства бани, гаража или других построек – это наилучший вариант соединения арматуры.
Плюсы и минусы соединения методом вязки
Чем же так хорош этот метод? Он имеет следующие положительные моменты:
- Быстрота выполнения работ. Вязка проволокой занимает мало времени, она простая и не требует навыков. Правда, если делать это вручную, то процесс замедляется. Дальше мы рассмотрим, как же быстро вязать арматуру.
- Простота устранения недочётов. При работе со сваркой, устранить ошибки, будет труднее, приходиться брать болгарку и разрезать сварочный шов. Проволоку же, достаточно откусить кусачками или же размотать крючком.
- Чтобы вязать арматуру не нужно быть профессионалом.
- Процесс армирования можно выполнить в опалубке.
- Себестоимость работы намного ниже.

Пример вязки сетки из арматуры проволокой.
Если говорить о недостатках, то отметим шаткость готового каркаса. Правда, это не является большой проблемой. Конструкция будет прочной, единственная проблема заключается в том, что при перемещении каркаса в опалубку она начинает расшатываться, в этом случае можно в нескольких местах сделать прихватки арматуры сваркой. Чтобы решить такую проблему со стеклопластиковой арматурой, надо привязать несколько раскосов, чтобы конструкция стала более жёсткая и устойчивая. Прогибаясь, натяжка в местах вязки изменяется, каркас гуляет. Поэтому при установке его в опалубку нужно быть осторожными. Лучше вязать арматуру в опалубке или над ней, если выполняется армирование ленточного фундамента .
Особенности соединения арматуры пластиковыми хомутами
Основные достоинства этого метода, в том, что он не требует специальных навыков, у него высокая скорость выполнения работ, и надёжная фиксация арматуры.
Недостатки, у данного способа следующие:
- Стоимость. При больших объёмах проволока будет экономней.
- Скорость выполнения работы (если сравнивать с другими способами вязки).
- Исправление. Где-то ошиблись, придётся откусывать хомут, он становится негодным, проволоку же можно перевязать.
- Надёжность. Передвижение по конструкции, связанной пластиковыми хомутами не желательно.
- Температура. Лопаются при отрицательных температурах.
На основе этих данных можно сказать, что данный способ, подойдёт больше для частного строительства, при небольших объёмах, также он подойдёт, для людей которые сами хотят выполнить армирование своими руками.