Правила надежного армирования ленточного фундамента. Армирование углов и мест примыкания ленточного фундамента
- Правила надежного армирования ленточного фундамента. Армирование углов и мест примыкания ленточного фундамента
- Армирование ленточного фундамента гост. Технические условия
- Рабочая арматура в фундаменте. Как работает арматура в ленточном фундаменте
- Вертикальное армирование фундамента.
- Армирование т-образного фундамента. Схемы правильного армирования углов ленточного фундамента.
- Правильное армирование ленточного фундамента СНиП. Правила монтажа армокаркаса по СНиП
- Шаг вязки арматуры для ленточного фундамента. Как делать вязку арматуры под ленточный фундамент
Правила надежного армирования ленточного фундамента. Армирование углов и мест примыкания ленточного фундамента
Как правило, последовательность сборки арматурного каркаса фундамента состоит из последовательной сборки прямых участков и связи их в углах фундамента и в местах примыкания внутренних перегородок. На эти участки стоит обращать особенное внимание, так как основные изгибающие и скалывающие напряжения возникают здесь.
Армирование углов ленточного фундамента и мест примыкания стен проводят при помощи жестких лапок, Г и П-образных хомутов.
При использовании жесткой лапки, напоминающей кочергу, длиной не менее 35d рабочего стержня, гнутая часть арматуры располагается таким образом, чтобы внешние стержни в обоих направлениях были соединены, а внутренние стержни привариваются к внешним прутьям. Этим способом можно избежать распространенной ошибки при армировании– отсутствия связи между внешними и внутренними стержнями. В местах изгиба с внутренней стороны ставится вертикальная арматура.
Принцип установки Г-образного хомута аналогичен, только вместо лапки используют гнутый стержень стороной не менее 50d рабочей арматуры. Здесь также внутренние стержни одного направления соединяются с внешними прутьями другой стороны. Хомуты П-образной формы позволяют соединять параллельные внешние и внутренние стержни в одном направлении соединить к перпендикулярно расположенному внешнему стержню в другом направлении. На углах фундаментов применяют два таких хомута, на местах примыкания стены только один.
Армирование ленточного фундамента гост. Технические условия
Издание официальное
Москва Российский институт стандартизации 2022
Предисловие
Цели, основные принципы и общие правила проведения работ по межгосударственной стандартизации установлены ГОСТ 1.0 «Межгосударственная система стандартизации. Основные положения» и ГОСТ 1.2 «Межгосударственная система стандартизации. Стандарты межгосударственные, правила и рекомендации по межгосударственной стандартизации. Правила разработки, принятия, обновления и отмены»
Сведения о стандарте
1 РАЗРАБОТАН Научно-исследовательским, проектно-конструкторским и технологическим институтом бетона и железобетона им. А. А. Гвоздева (НИИЖБ им. А. А. Гвоздева) — структурным подразделением Акционерного общества «Научно-исследовательский центр «Строительство» (АО «НИЦ « Строител ьство»)
2 ВНЕСЕН Техническим комитетом по стандартизации ТК465 «Строительство»
3 ПРИНЯТ Межгосударственным советом по стандартизации, метрологии и сертификации (протокол от 9 декабря 2021 г. № 60)
Краткое наименование страны по МК (ИСО 3166) 004—97 | Код страны по МК (ИСО 3166) 004—97 | Сокращенное наименование национального органа по стандартизации |
Армения | АМ | ЗАО «Национальный орган по стандартизации и метрологии» Республики Армения |
Киргизия | KG | Кыргызстандарт |
Россия | RU | Госстандарт |
Узбекистан | UZ | Узстандарт |
4 Приказом Федерального агентства по техническому регулированию и метрологии от 16 декабря 2021 г. № 1794-ст межгосударственный стандарт ГОСТ 13580—2021 введен в действие в качестве национального стандарта Российской Федерации с 1 сентября 2022 г.
5 ВЗАМЕН ГОСТ 13580—85
Информация о введении в действие (прекращении действия) настоящего стандарта и изменений к нему на территории указанных выше государств публикуется в указателях национальных стандартов, издаваемых в этих государствах, а также в сети Интернет на сайтах соответствующих национальных органов по стандартизации.
В случае пересмотра, изменения или отмены настоящего стандарта соответствующая информация будет опубликована на официальном интернет-сайте Межгосударственного совета по стандартизации, метрологии и сертификации в каталоге «Межгосударственные стандарты».
В Российской Федерации настоящий стандарт не может быть полностью или частично воспроизведен, тиражирован и распространен в качестве официального издания без разрешения Федерального агентства по техническому регулированию и метрологии
1 Область применения
2 Нормативные ссылки
3 Термины и определения
4 Условные обозначения
5 Форма и основные размеры
6 Технические требования
7 Правила приемки
8 Методы контроля
9 Маркировка, транспортирование и хранение
МЕЖГОСУДАРСТВЕННЫЙ СТАНДАРТ
ПЛИТЫ ЖЕЛЕЗОБЕТОННЫЕ ЛЕНТОЧНЫХ ФУНДАМЕНТОВ
Технические условия
Reinforced concrete slabs for strip foundations. Specifications
1 Область применения
Настоящий стандарт распространяется на железобетонные сборные плиты из тяжелого бетона для ленточных фундаментов зданий и сооружений и устанавливает требования к их изготовлению.
Рабочая арматура в фундаменте. Как работает арматура в ленточном фундаменте
Виктор, Волгоград задаёт вопрос:

Здравствуйте! Мне предстоит построить дом. Он будет стоять на ленточном фундаменте.
Оценив состояние семейного бюджета, я уже подумываю заливать основание под строение без его армирования. Мои знакомые утверждают, что хороший бетон и без арматуры выдержит тяжелые стены, и зданию не грозят ни просадки, ни трещины. По их мнению, фундамент будет заключен в ров, который защитит конструкцию от смещения.
Они советуют забутить основание и забыть об армировании, говоря, что крупные камни лучше справятся с его укреплением, чем стальные стержни. И все-таки я боюсь, что без арматуры в фундаменте появятся трещины. Подскажите, пожалуйста, как работает арматура в фундаменте.

Для чего она нужна? Можно ли в строительстве обойтись без нее? Спасибо.
Здравствуйте! Ваши знакомые правы лишь отчасти. Или им неизвестно, как работает арматура в фундаменте, или они не знают, что в подавляющем большинстве случаев в умеренных широтах грунты являются пучинистыми.
Фундамент без армирования имел бы смысл, если бы располагался на монолите, а его функция сводилась только к выравниванию площадки под возведение стен. Конечно, бетон #8211; очень прочный материал, выдерживающий огромные нагрузки на сжатие. Однако на фундамент воздействуют не только усилия, вызванные весом строения, на него влияют силы, направленные и по другим векторам.

Бетон прекрасно выдерживает усилия, прикладываемые к нему в перпендикулярном направлении, но нагрузки на излом, когда одна из граней фундамента растягивается, а другая сжимается, ему противопоказаны. При этом материал больше боится именно воздействия на разрыв. А подобные ситуации возникают довольно часто:
из-за неравномерной плотности грунта, вызванной его составом или уровнем влажности;морозного пучения грунта (в этом случае нагрузки направлены в обратную сторону, т.
е. вверх);цикличности воздействия этих факторов;подвижности верхних слоев грунта;изменений температуры и т. п.

Все действующие на излом усилия в конечном счете приведут к образованию трещин в фундаменте, а в худшем случае #8211; к проседанию не только самого фундамента, но и опирающегося на него строения.
От таких недостатков избавлен армированный железобетон. Заключенные в него стержни служат надежными компенсаторами сжатий и расширений строительного материала, улучшая характеристики бетонного изделия.
Стоит сказать, что многие самодеятельные строители совершают ошибку, считая, что для придания фундаменту необходимой прочности достаточно проармировать только одну из его сторон (нижнюю, верхнюю или боковую часть). Они не учитывают направленности воздействия нагрузок, из-за которых незащищенной остается неармированная сторона ленты.

Арматура не способна обеспечить одинаковую прочность фундамента на всем его протяжении, так как стержни имеют определенную длину и их приходится соединять. В местах сопряжения прутьев железобетонная конструкция будет более уязвима. Наращивание арматуры сваркой встык не улучшает ее характеристик, поэтому стержни должны соединяться внахлест.
Длина нахлеста составляет 30-40 сечений арматуры. Чтобы не ослаблять бетон, соединение прутьев не следует делать в углах фундамента. Кроме того, стыковать арматуру в соседних поясах следует с максимальным разбросом.
Арматурины соединяются двумя способами:

Вязальной проволокой пользуются в тех случаях, когда возможно проседание грунта под лентой. Сварка применяется, когда такая возможность исключена.
На то, как будет работать арматура в фундаменте, влияют:
- характеристики металла;состояние прутьев;толщина стержней;количество поясов армирования и перемычек между ними.
Сегодня в строительстве применяются прутья класса А-III с пределом текучести 390 Н/мм².

Для возведения небольших строений используется арматура сечением от 12 до 16 мм. Лучшее сцепление с бетоном обеспечивают профилированные прутья. К тому же они должны быть очищены от жира и грязи, препятствующих контакту материалов.
Нельзя забывать об установке поперечных прутьев, обеспечивающих дополнительную жесткость конструкции. Перемычки по горизонтали и вертикали устанавливают с шагом не реже 25 см. Нужно добавить, что арматура должна быть утоплена в толщу бетона на глубину не менее 5 см.

Вертикальное армирование фундамента.
представляет собой сплошную бетонную опору, размещенную под всеми несущими стенами дома.
Конструкция подобных оснований достаточно проста.
Степень прочности, устойчивости к возникающим нагрузкам и несущая способность образуют оптимальное сочетание, позволяющее использовать ленточный тип фундамента в большинстве построек.
С некоторыми дополнениями этот вид способен служить на разных видах грунта и в относительно неблагоприятных геологических условиях.
Основным элементом конструкции является арматурный каркас, обеспечивающий прочность ленты и устойчивость к напряжениям.
Бетон является специфическим материалом. Он способен без видимых последствий выдерживать значительное давление, но разнонаправленные, растягивающие нагрузки переносит с большим трудом.
Бетонный блок, являющийся монолитной отливкой без дополнительных усиливающих элементов, способен выдерживать только равномерную сдавливающую нагрузку.
Если усилие будет приложено в центральной части, а края блока окажутся зафиксированы, он переломится при относительно небольшой нагрузке. Использовать его в таком виде в качестве основания для строительного объекта невозможно.
Проблема решается с помощью армирующего каркаса, помещаемого внутрь блока перед отливкой.
Армирование ленточных оснований является необходимым и обязательным условием, предписываемым требованиями СНиП 52-01-2003. Регламентируются все рабочие моменты создания железобетонных конструкций — состав бетона, размеры и материал арматуры, тип конструкции каркаса, способ сборки и прочие вопросы.
Соблюдение норм СНиП обязательно для всех строителей, поскольку только таким образом можно обеспечить надежность постройки и безопасность людей.

Как работает арматура
Арматурные стержни способны переносить растягивающие нагрузки примерно в 10 раз больше, чем бетон. Будучи установленными внутрь отливки, они принимают на себя растягивающие нагрузки, не позволяя появиться трещинам, усиливая и укрепляя бетонную ленту.
Арматурный каркас представляет собой пространственную решетку, состоящую из несущих и вспомогательных стержней. Если сама лента в сечении представляет собой прямоугольник, то каркас в сечении образует подобную фигуру, но несколько уменьшенную.
Если на ленту воздействует изгибающая нагрузка, то начинают работать те стержни, которые расположены со стороны, противоположной точке приложения усилия. Они не позволяют ленте изменить форму, принимая на себя внешние воздействия.
ОБРАТИТЕ ВНИМАНИЕ!
Для особо ответственных конструкций используют напрягаемые стержни, которые перед заливкой бетона натягиваются, а после затвердения массива освобождаются. Такие основания способны работать в сложных условиях, но для частного домостроения не используются.
Основными элементами являются горизонтальные стержни — несущие, или рабочие. Вертикальные элементы служат для поддержки рабочей арматуры и в большинстве нужны лишь до момента заливки. После нее рабочие функции выполняют только угловые элементы, испытывающие дополнительные напряжения и эксплуатационные нагрузки.
Вспомогательная арматура делается из более тонких прутков и нужна для исключения смещения основных элементов при заливке и затвердении.

Как выбрать бетон
Требования СНиП к бетону достаточно жесткие .
Регламентируются все рабочие параметры материала:
- Степень прочности на сжатие и осевое растяжение.
- Морозостойкость.
- Водонепроницаемость.
Для жилых домов малоэтажной кирпичной или подобной застройки оптимальный вариант —М300. При использовании легких ячеистых или пористых материалов (пенобетон, керамзитобетон) допускается применение менее прочного и плотного бетона — марок М200 и даже М150.
Более прочные сорта используются для ответственных или многоэтажных объектов. Например, бетон М400 допускается применять для отливки фундамента по жилые здания высотой до 20 этажей.

Виды арматуры
Существует два вида арматуры :
- Металлическая.
- Композитная.
Первый вид — всем знакомые стальные горячекатаные прутки с насечкой, позволяющей получить надежное сцепление с бетоном. Существуют стержни разного диаметра, от 6 до 80 мм, предназначенные для эксплуатации в соответствующих условиях.
Для вспомогательной арматуры могут быть использованы как рифленые, так и гладкие стержни меньшего диаметра.
Композитная— это целая группа, которая изготавливается из углепластика, базальтопластика и стеклопластика. Последний является наиболее распространенным и доступным вариантом. Он выгоднее металлического аналога с точки зрения стоимости, не поддается коррозии, не реагирует на электрохимические воздействия.
Однако, неспособность сгибаться усложняет сборку каркасов на изгибах или примыканиях, что уменьшает надежность этих узлов и повышает трудоемкость сборки. Диаметры стержней находятся в диапазоне от 3,5 до 48 мм.
ВАЖНО!
Армирование т-образного фундамента. Схемы правильного армирования углов ленточного фундамента.
Прежде всего, перед началом армирования, нужно разобраться, как правильно его нужно выполнять и какие схемы и способы обвязки углов существуют.
Для начала разберем, какие ошибки могут возникать при попытке сделать прочными углы фундамента:
- При выполнении армирования был использован только один контур обвязки, например внешний, причем чаще всего это делается по внешнему периметру.
- Используя два контура, не было произведено их крепление между собой.
- Отсутствует связь между подошвой основания и самим каркасом из арматуры.
- Арматуру соединили при помощи сварки в углах строения.
На схеме можно увидеть самые популярные неправильные схемы, которые не позволяют нормально произвести усиление фундамента:

Армирование ленточный ошибка фундамент.
Теперь рассмотрим схемы правильного армирования углов ленточного фундамента. Их существует несколько:
- Армирование угла с анкеровкой Г-образными элементами.

Схема армирования углов ленточного фундамента.
- Армирование тупого угла.

Армирование углов мелкозаглубленного ленточного фундамента.
- Армирование угла и примыканий с помощью П-образных хомутов.

Вязка арматуры армирование углов ленточного фундамента.
- Армирование угла и примыканий с помощью Г-образных хомутов.

Армирование фундамента.
Какой тип выбрать зависит уже непосредственно от возможностей и необходимого усиления.
Инструкция по армированию углов.
Первым делом необходимо определиться со схемой армирования. Самым простым и наиболее распространенным видом армирования углов ленточного фундамента является использование Г-образных элементов.
Итак, для того чтобы усилить фундамент при помощи арматуры необходимо придерживаться следующей последовательности:
- Когда траншея для фундамента готова, на ее дно необходимо выложить кирпичи, высотой около 5 см. Это нужно сделать для чтобы получился небольшой зазор между основанием фундамента и каркасом из арматуры.
- Затем нужно подготовить вертикальную арматуру, которая будет выступать стоечным каркасом. Для этого необходимо измерить высоту будущего фундамента и нарезать арматуру нужной высоты, при этом важно помнить, что она не должна доходить около 10 см до поверхности будущего фундамента.
- После этого на уже уложенные кирпичи выкладывается продольная арматура каркаса. Для этого лучше подойдет целая арматура.
- Далее на расстоянии около 50 см друг от друга к горизонтальной арматуре нужно привязать, используя специальную вязальную проволоку и крючок, перемычки. Они должны располагаться на расстоянии около 5 см с каждой стороны от стенок фундамента.
- После этого на углы образовавшихся квадратных ячеек нужно привязать вертикальные пруты по всему периметру.

Армирование углов ленточного фундамента техническому регламенту.
Когда весь арматурный каркас выполнен, можно приступать к формированию опалубки и заливке фундамента.
Правильное армирование ленточного фундамента СНиП. Правила монтажа армокаркаса по СНиП
Количество необходимой для закладываемой конструкции арматуры и расстояние между арматурными прутьями напрямую зависят от размеров фундамента.
Согласно СНиП 52-01-2003 расстояние между прутьями рассчитывается, исходя из:
- диаметра прута;
- размера бетонного заполнителя;
- направления бетонирования;
- технологии укладки;
- вида бетонного уплотнителя.
Технологически правильное армирование подразумевает, что расстояние между прутьями продольной арматуры должно находиться в пределах от 25 до 40 см. Прутья же поперечной арматуры должны быть не более чем в 30 см друг от друга.
Все самое важное об армировании ленточного фундамента найдете впубликации.
Требования к бетону
Бетон для ленточного фундамента должен отвечать определённым физико-техническим требованиям. Среди них:
- прочность;
- морозостойкость;
- водонепроницаемость.
Прочность — это способность выдерживать нагрузки на сжатие, выраженная в килограммах на квадратный сантиметр.
Морозостойкость обозначается буквой “F” и числовым эквивалентом . Число — это количество циклов полного замораживания и оттаивания опытного образца бетона без изменений своих характеристик.
Водонепроницаемость обозначается буквой “W” и также числовым эквивалентом. Число, в данном случае, — это максимальное давление, измеряемое в мегаПаскалях, при котором образец бетона не пропускает через себя влагу.
Марки бетона , рекомендуемые для сооружения ленточного фундамента:
Соотношение типа сооружения, грунта и марки бетона для ленточного фундамента:
| Тип сооружения | Слабопучинистые грунты | Пучинистые грунты |
| Лёгкие деревянные или каркасные дома | М-200 | М-250 |
| Дома из бруса, бревенчатые срубы | М-250 | М-300 |
| Дома из арболитовых блоков и подобных им материалов | М-300 | М-350 |
| Дома из кирпича, камня, железобетона | М-350 | М-400 |
Требования к арматуре
Для армирования ленточного фундамента используется стальная или композитная арматура . Поверхность её профилирована, что приводит к передаче максимальной нагрузки от прогибающегося бетона к арматурным прутьям.
Для продольного армирования обычно используются металлические прутья, диаметр которых находится в пределах от 10 до 16 мм.
Для поперечного армирования применяются металлические прутья, диаметр которых находится в пределах от 6 до 8 мм.
В соответствии со, при возведении ленточного фундамента могут использоваться следующие виды арматуры:
- горячекатанная;
- термомеханически упрочнённая;
- механически упрочнённая в холодном состоянии;
- неметаллическая композитная.
О том, какую арматуру используют для армирования ленточного фундамента, расскажетстатья.
Шаг вязки арматуры для ленточного фундамента. Как делать вязку арматуры под ленточный фундамент
Фундамент – это основа всего строения, гарант его долговечности и прочности. Армирование ленточного фундамента, чертежи и схемы должны быть подготовлены и рассчитаны заблаговременно.
Необходимость армирования
Фундамент представляет собой монолитную железобетонную конструкцию. Сам бетон – материал, который выдерживает значительные нагрузки только на сжатие. Чтобы увеличить прочность фундамента на растяжение и изгиб, необходимо изготовить металлический каркас. Причем показатели прочности увеличиваются только за счет обустройства рабочих продольных прутьев. Поэтому в качестве их используют толстые профилированные прутки диаметром 10÷14 мм. Поперечные элементы предназначены для создания пространственной геометрии фундамента, они не позволяют продольным пруткам смещаться при заливке бетонного раствора, и удерживают их в нужном месте. Для этих целей можно использовать гладкие или профилированные прутки диаметром 6÷9 мм.

Требования нормативных документов к материалам для армирования
Как правильно армировать ленточный фундамент, можно узнать, ознакомившись с нормативными документами. Требования, которые необходимо соблюдать при армировании монолитного ленточного железобетонного фундамента, изложены в СНиП 52-01-2003 .
Разновидности стальных прутьев, рекомендованных для армирования:
- горячекатаные гладкие или профилированные (Ø=3÷80 мм);
- термомеханически упрочненные профилированные (Ø=6÷40 мм);
- холоднокатаные профилированные или гладкие (Ø=3÷12 мм).

Важно! По сравнению с гладкими, профилированные прутья имеют лучшее сцепление с бетоном: это позволяет значительно увеличить надежность конструкции.
Требования к расположению прутьев в армокаркасе для ленточного фундамента:
- расстояние между продольными стержнями должно быть не более 0,4 м;
- шаг поперечных фиксирующих элементов должен составлять не более 0,5 м.
Минимальное относительное содержание рабочих продольных прутьев в железобетонном элементе должно составлять не менее 0,1 %.
Для вязки элементов железобетонной конструкции должна применяться только специальная стальная обожженная проволока (Ø=0,8÷1,2 мм).
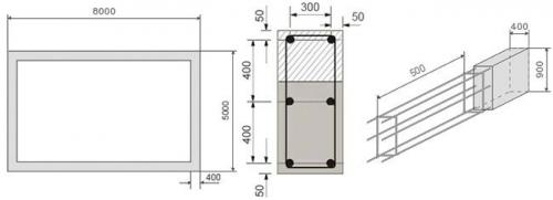
Пример расчета армирования фундамента
Попробуем рассчитать, сколько потребуется материалов для обустройства армирования конкретного ленточного фундамента с чертежами. Допустим, мы строим из строительных блоков (шириной 0,4 м) небольшой загородный дом с габаритными (внешними) размерами 5×8 м. Характер почвы на нашем участке позволяет сделать высоту полосы 0,9 м, ее ширину 0,4 м, что соответствует ширине строительного материала стен. В арматурном каркасе для ленточного фундамента будем использовать продольные рабочие прутья диаметром 12 мм и □-образные поперечные хомуты, изготовленные из прутков диаметром 8 мм.
Армирование мелкозаглубленного ленточного фундамента:

На фото видно, что расстояние между рабочими продольными прутьями (0,4 м) и шаг □-образных поперечных хомутов (0,5 м) выбраны в соответствии с требованиями нормативных документов.
Проверяем относительное содержание продольных рабочих прутков в нашей железобетонной конструкции. Для этого воспользуемся следующими терминами и обозначениями:
- h – высота фундамента (900 мм);
- w – ширина фундамента (400 мм);
- Sₒ – площадь поперечного сечения фундамента;
- Sₐ – суммарная площадь поперечных сечений продольных прутьев (6 штук);
- r – радиус продольного прутка (6 мм), который равен d/2, где d – диаметр прутка (в нашем случае d=12 мм);
- D – относительное содержание рабочих прутков в «теле» фундамента.
Sₒ = h∙w = 900∙400 = 360000 мм²
Sₐ = 6∙π∙r² = 6∙3,14∙6² = 678,24 мм²
D = (Sₐ∙100)/ Sₒ = (678,24∙100)/360000 = 0,1884 ≈ 0,19 % (что в 1,9 раза превышает минимально допустимое значение, то есть схема армирования ленточного фундамента выбрана нами правильно).
Расчет количества продольных прутьев
Для того чтобы определить сколько стандартных продольных прутьев (6 м) нам необходимо, воспользуемся следующими величинами:
- L – длина фундамента (8000 мм);
- W – ширина фундамента (5000 мм);
- P – периметр;
- N – количество продольных элементов (в нашем случае 6 штук);
- X – общая протяженность продольных прутьев.
P = (L+ W)∙2 = (8000 + 5000)∙2 = 26000 мм = 26 м
X = P∙N = 26∙6 = 156 м
К полученной величине необходимо добавить 20 % (материал для изготовления Г-образных или П-образных элементов для правильного армирования углов и обеспечения достаточного нахлеста при стыковке элементов).
Xдоп = X∙0,2 = 156∙0,2 = 31,2 м
Окончательная общая длина продольного арматурного прутка:
Xок = X + Xдоп = 156 + 31,2 = 187,2 м
Стандартная длина арматурного прутка составляет 6 м. Осталось посчитать, сколько таких прутков необходимо: Xок/6 = 187,2/6 = 31,2 ≈ 32 штуки.




