Армирование подошвы ленточного фундамента
- Армирование подошвы ленточного фундамента
- Армирование ленточного фундамента расчет.
- Армирование подошвы столбчатого фундамента. В чем заключаются особенности армирования?
- Схема армирования ленточного фундамента. Как делать вязку арматуры под ленточный фундамент
- Армирование ленточного фундамента снип. Особенности конструкции армирующего каркаса
- Виды армирования ленточного фундамента. Преимущества ленточных фундаментов
- Армирование ленточного фундамента гост. Технические условия
Армирование подошвы ленточного фундамента
Армирование подошвы ленточного фундамента начинается с обустройства самой подошвы, которая должна быть заглублена до кровли устойчивого слоя. Вообще вокруг определения места для подошвы крутится много разговоров, некоторые полагают, что самое лучшее место для неё третий слой от поверхности. Одно известно точно, если выбор падет на верхний слой, то в будущем вам наверняка придется развивать подошву дальше и укреплять нижние слои.
Плюсом армирования подошвы ленточного фундамента, как и его постройку, можно считать тот факт, что производить операцию можно в любое время года, даже зимой. Однако очень важно определить характер почвы, с которой придется иметь дело, в этом вам помогут геологические и гидрогеологические условия. Грунт должен быть способным сопротивляться нагрузке будущего помещения. Обязательно надо учесть вероятность возникновения пучения почвы, в холодную пору, так это не редко приводит к разрушению основания. Заметим, что чаще всего пучат глинистые типы почвы, а вот крупнозернистые пески практически не имеют таких свойств. Это говорит о том, что если вам приходится иметь дело с глиняной местностью, то очень важно заложить подошву на глубину не меньшую уровня промерзания, а на крупнозернистой почве, такая глубина может быть уменьшена на 0,5-0,6 м.
Процесс армирования требует аккуратного подхода и отдельно внимания к углам фундамента. В местах стыка стен, опытные строители рекомендуют монтировать согнутые под углом стержни, однако обойтись в этом случае без создания стыков, то есть, в конечном счете, арматура не должна упираться в угол. Не забудьте сделать небольшое количество отверстий для вентиляции и приступайте к заливке бетоном.
Армирование ленточного фундамента расчет.
занимает основное место среди всех опорных конструкций для зданий и сооружений.
Он способен эффективно работать на самых сложных грунтах, имеет оптимальный набор эксплуатационных качеств.
Монолитные конструкции ленты не теряют своих рабочих качеств до 150 лет, что превышает срок службы стен дома.
Такие высокие возможности возникли из-за высокой жесткости и прочности ленты, которые обеспечивает совместная работаи металлической арматуры.
Каждый из них выполняет свою функцию, в сумме обеспечивая надежность и высокую несущую способность ленточного основания.
Арматурный каркас необходим для компенсации осевых противонаправленных (растягивающих) нагрузок, возникающих в ленте при появлении деформирующих воздействий — изгибающих или скручивающих усилий .
Особенность бетона состоит в способности принимать гигантские давления без каких-либо последствий.
При этом, он практически беззащитен перед разнонаправленными усилиями, быстро покрывается трещинами и разрушается .
Поэтому для ленты крайне опасны любые усилия, приложенные в одной точке — например, боковые или вертикальные нагрузки пучения. Арматурные стержни предназначены для приема этих усилий на себя.
Существует горизонтальная (рабочая) и вертикальная арматура . Основные нагрузки принимают горизонтальные стержни.
Они имеют больший диаметр и рифленую поверхность, обладающую хорошим сцеплением с бетоном.
Вертикальные стержни выполняют две функции :
- Фиксация рабочей арматуры в необходимом положении до момента заливки бетоном.
- Частичная компенсация скручивающих усилий.
Первая задача основная, а вторая — дополнительная, поскольку наличие таких специфических нагрузок наблюдается довольно редко .
В большинстве случаев вертикальная (гладкая) арматура служит лишь опорной конструкцией, удерживающей рабочие стержни в необходимом положении до момента заливки.
Они довольно толстые, так как — процесс с достаточно интенсивными воздействиями на каркас, сосредоточенными в одной точке (место падения тяжелого материала в опалубку), а также распределенными по всей длине (штыкование, обработка виброплитой) .

Онлайн калькулятор
Как рассчитать ленточный фундамент дома? В этой вам может специально разработанный сервис —ленточного фундамента.

Инструкция по работе с калькулятором
В сети интернет имеется немало онлайн-калькуляторов, помогающих рассчитать параметры ленточных фундаментов по всем важным позициям . Расчет арматуры с их помощью занимает буквально пару минут.
Например, нанеобходимо лишь внести собственные данные в соответствующие окошечки программы и нажать кнопку «рассчитать».
Дается схема армирования, в которой надо указать основные параметры — количество рабочих стержней в одном ряду, общее число рядов, расстояние между вертикальными прутками и т.п. В отдельном окне указывается стоимость арматуры за единицу.
В результате программа выдает количество арматуры и общую цену. Расчет производится просто и быстро, кроме арматуры ресурс выдает параметры всех элементов ленты — , количества бетона и т.д.
Недостатком данного калькулятора можно считать необходимость заранее знать схему армирования, диаметр стержней и рыночную стоимость материала.
Если требуется определить количество и сечение стержней, ресурс бесполезен. Он дает только количественную информацию, не касаясь качественных моментов, что иногда не совсем то,что нужно .
ВАЖНО!
Не все онлайн-калькуляторы работают по такому алгоритму. Имеются и другие, определяющие именно размеры и общие параметры арматурного каркаса, которые станут полезными для получения первичной информации . Стоимость материала следует узнавать непосредственно у продавцов, поскольку в этом вопросе имеется масса специфических факторов.
Порядок расчета
Рассмотрим, как рассчитать арматурный каркас ленты самостоятельно .
Прежде всего, необходимо определить количество рабочих стержней в одном ряду. Для этого понадобится использовать требование СП 52-101-2003, ограничивающее максимальное расстояние между соседними прутками в 40 см.
Учитывая, что погружения рабочей арматуры не должна превышать 2-5 см, получаем :
- Для лент толщиной менее 50 см — 2 рабочих стержня.
- Для лент шире 50 см — 3 стержня.
В случаях, когда можно использовать и 2, и 3 стержня в одном ряду, обычно стараются подстраховаться и принять большее значение, так как фундамент — ответственный и важный участок постройки.
Армирование подошвы столбчатого фундамента. В чем заключаются особенности армирования?
Армирование столбчатых фундаментов – это залог крепкой, надежной, долговечной постройки. Небольшие изгибные усилия могут разорвать бетон, несмотря на то, что данный материал выдерживает большие нагрузки. Специалисты считают, что это основной недостаток данного материала, который необходимо учитывать при выполнении работ.
На столб фундамента воздействуют следующие нагрузки:
- на сдвиг – либо происходит сдвижение плотного слоя по водонасыщенному грунту, либо осуществляются подвижки грунта в горизонтальном направлении;
- на сжатие материалов – вес постройки;
- на разрыв – в зимний период пучения земли стенки сжимаются, в результате чего отрываются от подошвы.
Если брать в расчет нагрузки на сжатие – в таких случаях армирование столбчатого фундамента специалисты не выполняют, для того, чтобы устранить неблагоприятное воздействие, вызванное пучением грунта, будет достаточно просто обернуть столб тремя слоями рубероида. Некоторые специалисты в данном случае также рекомендуют использовать полиэтилен. Сдвиговая нагрузка – явление редко, но именно для того, чтобы избежать данного явления, осуществляют армирование.
Еще одна зона армирования – это ростверк. Так называют горизонтально расположенную часть фундамента, которая передает и воспринимает вес от стен здания на сваи. Помимо этого фактора также играет роль предназначение ростверка – оно состоит в равномерном распределении нагрузки за счет объединения свай в единое целое. Поэтому и важно при устройстве ростверка обеспечить качественную жесткость соединяющих узлов.
Схема армирования ленточного фундамента. Как делать вязку арматуры под ленточный фундамент
Фундамент – это основа всего строения, гарант его долговечности и прочности. Армирование ленточного фундамента, чертежи и схемы должны быть подготовлены и рассчитаны заблаговременно.
Необходимость армирования
Фундамент представляет собой монолитную железобетонную конструкцию. Сам бетон – материал, который выдерживает значительные нагрузки только на сжатие. Чтобы увеличить прочность фундамента на растяжение и изгиб, необходимо изготовить металлический каркас. Причем показатели прочности увеличиваются только за счет обустройства рабочих продольных прутьев. Поэтому в качестве их используют толстые профилированные прутки диаметром 10÷14 мм. Поперечные элементы предназначены для создания пространственной геометрии фундамента, они не позволяют продольным пруткам смещаться при заливке бетонного раствора, и удерживают их в нужном месте. Для этих целей можно использовать гладкие или профилированные прутки диаметром 6÷9 мм.

Требования нормативных документов к материалам для армирования
Как правильно армировать ленточный фундамент, можно узнать, ознакомившись с нормативными документами. Требования, которые необходимо соблюдать при армировании монолитного ленточного железобетонного фундамента, изложены в СНиП 52-01-2003 .
Разновидности стальных прутьев, рекомендованных для армирования:
- горячекатаные гладкие или профилированные (Ø=3÷80 мм);
- термомеханически упрочненные профилированные (Ø=6÷40 мм);
- холоднокатаные профилированные или гладкие (Ø=3÷12 мм).

Важно! По сравнению с гладкими, профилированные прутья имеют лучшее сцепление с бетоном: это позволяет значительно увеличить надежность конструкции.
Требования к расположению прутьев в армокаркасе для ленточного фундамента:
- расстояние между продольными стержнями должно быть не более 0,4 м;
- шаг поперечных фиксирующих элементов должен составлять не более 0,5 м.
Минимальное относительное содержание рабочих продольных прутьев в железобетонном элементе должно составлять не менее 0,1 %.
Для вязки элементов железобетонной конструкции должна применяться только специальная стальная обожженная проволока (Ø=0,8÷1,2 мм).
Пример расчета армирования фундамента
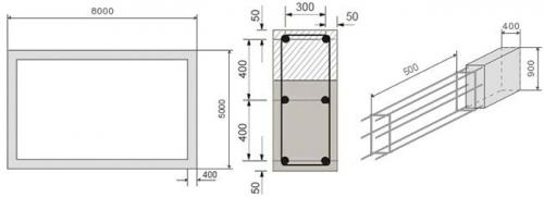
Попробуем рассчитать, сколько потребуется материалов для обустройства армирования конкретного ленточного фундамента с чертежами. Допустим, мы строим из строительных блоков (шириной 0,4 м) небольшой загородный дом с габаритными (внешними) размерами 5×8 м. Характер почвы на нашем участке позволяет сделать высоту полосы 0,9 м, ее ширину 0,4 м, что соответствует ширине строительного материала стен. В арматурном каркасе для ленточного фундамента будем использовать продольные рабочие прутья диаметром 12 мм и □-образные поперечные хомуты, изготовленные из прутков диаметром 8 мм.
Армирование мелкозаглубленного ленточного фундамента:

На фото видно, что расстояние между рабочими продольными прутьями (0,4 м) и шаг □-образных поперечных хомутов (0,5 м) выбраны в соответствии с требованиями нормативных документов.
Проверяем относительное содержание продольных рабочих прутков в нашей железобетонной конструкции. Для этого воспользуемся следующими терминами и обозначениями:
- h – высота фундамента (900 мм);
- w – ширина фундамента (400 мм);
- Sₒ – площадь поперечного сечения фундамента;
- Sₐ – суммарная площадь поперечных сечений продольных прутьев (6 штук);
- r – радиус продольного прутка (6 мм), который равен d/2, где d – диаметр прутка (в нашем случае d=12 мм);
- D – относительное содержание рабочих прутков в «теле» фундамента.
Sₒ = h∙w = 900∙400 = 360000 мм²
Sₐ = 6∙π∙r² = 6∙3,14∙6² = 678,24 мм²
D = (Sₐ∙100)/ Sₒ = (678,24∙100)/360000 = 0,1884 ≈ 0,19 % (что в 1,9 раза превышает минимально допустимое значение, то есть схема армирования ленточного фундамента выбрана нами правильно).
Расчет количества продольных прутьев
Для того чтобы определить сколько стандартных продольных прутьев (6 м) нам необходимо, воспользуемся следующими величинами:
- L – длина фундамента (8000 мм);
- W – ширина фундамента (5000 мм);
- P – периметр;
- N – количество продольных элементов (в нашем случае 6 штук);
- X – общая протяженность продольных прутьев.
P = (L+ W)∙2 = (8000 + 5000)∙2 = 26000 мм = 26 м
X = P∙N = 26∙6 = 156 м
К полученной величине необходимо добавить 20 % (материал для изготовления Г-образных или П-образных элементов для правильного армирования углов и обеспечения достаточного нахлеста при стыковке элементов).
Xдоп = X∙0,2 = 156∙0,2 = 31,2 м
Окончательная общая длина продольного арматурного прутка:
Xок = X + Xдоп = 156 + 31,2 = 187,2 м
Стандартная длина арматурного прутка составляет 6 м. Осталось посчитать, сколько таких прутков необходимо: Xок/6 = 187,2/6 = 31,2 ≈ 32 штуки.
Армирование ленточного фундамента снип. Особенности конструкции армирующего каркаса
Ленточный фундамент фактически состоит из монолитных длинных балок, работающих на изгиб при неравномерных нагрузках сверху от элементов здания и неравномерных просадок снизу от разной плотности грунта.
Поэтому и армируются они в двух зонах балки:
- сверху, под защитным слоем из бетона – от нагрузок на концах балки, когда середина находится на опоре;
- снизу, чуть выше нижнего защитного слоя – при нагрузке на середину полосы ленты и опорах под углами здания.

В схеме армирования ленточного фундамента несколько продольных стержней нижнего ряда удерживаются на определенном расстоянии от слоя стержней верхнего ряда вертикальными поперечными стержнями, идущими с шагом от 300 до 500 – 700 мм.
По ширине продольные пруты арматуры удерживаются горизонтальными поперечными стержнями, расположенными с тем же шагом, что и вертикальные.
Поперечные стержни арматуры предназначены:
- воспринимать поперечные усилия, прилагаемые к балке;
- ограничивать увеличение образовавшихся трещин;
- удерживать положение продольных стержней по требованиям чертежа;
- удерживать стержни от выпучивания в любую сторону.
Стержни связываются проволокой или свариваются в объемный каркас. Его высота и ширина меньше на удвоенную толщину защитного слоя бетона.
Основные функции защитного слоя бетона:
- сохранение арматуры от внешнего, в т. ч. и агрессивного воздействия, в основном, воды или водяного пара;
- передача нагрузок от бетона на арматуру;
- обеспечение анкеровки, т. е. «зацепляемости» арматуры в толще бетона;
- обеспечение стыка элементов арматуры;
- обеспечение стойкости арматуры в пламени пожара.
Обычно толщина защитного слоя от 25 – 30 мм до 50 – 60 мм.
Виды армирования ленточного фундамента. Преимущества ленточных фундаментов
Ленточные фундаменты очень распространены, потому что могут устраиваться на слабых грунтах. Кроме того, ленточный фундамент может выполнять роль части стен подвала или цоколя, позволяя устраивать в здании подвальные помещения.
В таких помещениях может быть устроена кладовая, мастерская, прачечная или домашний кинотеатр, что позволяет экономить площадь в жилой части здания.
Глубина заложения ленточного фундамента
Надежность фундамента зависит от глубины его заложения, а глубина выбирается, исходя из того, какими характеристиками обладает грунт, какова глубина его промерзания, где находится уровень грунтовых вод, каков вес конструкции.
В зависимости от глубины заложения, ленточные фундаменты подразделяются на следующие типы:
- незаглубленные;
- мелкозаглубленные;
- заглубленные.
Важно!
Глубиной заложения фундамента называется расстояние от его подошвы до поверхности грунта. Глубина траншеи при этом обычно больше, потому что включает еще толщину песчаной подушки под фундаментом.
Глубина заложения фундамента регулируется Сводом Правил СП 22.13330.211 «Основания зданий и сооружений» (СНиП 2.02.01-83).
Незаглубленный ленточный фундамент находится практически на поверхности грунта, а заглубление производится только на высоту подушки.
Глубина заложения мелкозаглубленного фундамента должна быть тщательно рассчитана, чтобы обеспечить его надежность, поскольку она меньше, чем глубина промерзания почвы.
В таблице показана глубина залегания фундамента в зависимости от типа грунта и глубины его промерзания.
Глубину промерзания грунта в разных регионах можно узнать из таблицы.
Также при устройстве мелкозаглубленного фундамента учитывается уровень грунтовых вод:
- Если уровень грунтовых вод находится ниже глубины промерзания грунта, ленточный фундамент на глинистых грунтах и суглинках закладывается на половину глубины промерзания грунта.
- Если уровень грунтовых вод находится выше глубины промерзания грунта, ленточный фундамент закладывается на 10–20 см ниже глубины промерзания (кроме скальных и гравийных грунтов). В этом случае фундамент уже называется заглубленным.
Заглубленным называют фундамент, который закладывается ниже глубины промерзания грунта на 10–20 см. На болотистых грунтах и торфяниках траншею копают ниже этих слоев, вплоть до твердых слоев грунта.
Важно!
Чем сильнее заглублен фундамент, тем он надежнее, но при этом и его стоимость выше, поскольку требуется больший объем земляных работ, увеличенное количество дорогих строительных материалов. С целью оптимизировать глубину заложения ленточного фундамента, применяют различные методы:
- отвод грунтовых вод при помощи устройства дренажной системы;
- устройство массивной песчано-гравийной подушки;
- утепление фундамента.
Армирование ленточного фундамента гост. Технические условия
Издание официальное
Москва Российский институт стандартизации 2022
Предисловие
Цели, основные принципы и общие правила проведения работ по межгосударственной стандартизации установлены ГОСТ 1.0 «Межгосударственная система стандартизации. Основные положения» и ГОСТ 1.2 «Межгосударственная система стандартизации. Стандарты межгосударственные, правила и рекомендации по межгосударственной стандартизации. Правила разработки, принятия, обновления и отмены»
Сведения о стандарте
1 РАЗРАБОТАН Научно-исследовательским, проектно-конструкторским и технологическим институтом бетона и железобетона им. А. А. Гвоздева (НИИЖБ им. А. А. Гвоздева) — структурным подразделением Акционерного общества «Научно-исследовательский центр «Строительство» (АО «НИЦ « Строител ьство»)
2 ВНЕСЕН Техническим комитетом по стандартизации ТК465 «Строительство»
3 ПРИНЯТ Межгосударственным советом по стандартизации, метрологии и сертификации (протокол от 9 декабря 2021 г. № 60)
Краткое наименование страны по МК (ИСО 3166) 004—97 | Код страны по МК (ИСО 3166) 004—97 | Сокращенное наименование национального органа по стандартизации |
Армения | АМ | ЗАО «Национальный орган по стандартизации и метрологии» Республики Армения |
Киргизия | KG | Кыргызстандарт |
Россия | RU | Госстандарт |
Узбекистан | UZ | Узстандарт |
4 Приказом Федерального агентства по техническому регулированию и метрологии от 16 декабря 2021 г. № 1794-ст межгосударственный стандарт ГОСТ 13580—2021 введен в действие в качестве национального стандарта Российской Федерации с 1 сентября 2022 г.
5 ВЗАМЕН ГОСТ 13580—85
Информация о введении в действие (прекращении действия) настоящего стандарта и изменений к нему на территории указанных выше государств публикуется в указателях национальных стандартов, издаваемых в этих государствах, а также в сети Интернет на сайтах соответствующих национальных органов по стандартизации.
В случае пересмотра, изменения или отмены настоящего стандарта соответствующая информация будет опубликована на официальном интернет-сайте Межгосударственного совета по стандартизации, метрологии и сертификации в каталоге «Межгосударственные стандарты».
В Российской Федерации настоящий стандарт не может быть полностью или частично воспроизведен, тиражирован и распространен в качестве официального издания без разрешения Федерального агентства по техническому регулированию и метрологии
1 Область применения
2 Нормативные ссылки
3 Термины и определения
4 Условные обозначения
5 Форма и основные размеры
6 Технические требования
7 Правила приемки
8 Методы контроля
9 Маркировка, транспортирование и хранение
МЕЖГОСУДАРСТВЕННЫЙ СТАНДАРТ
ПЛИТЫ ЖЕЛЕЗОБЕТОННЫЕ ЛЕНТОЧНЫХ ФУНДАМЕНТОВ
Технические условия
Reinforced concrete slabs for strip foundations. Specifications
1 Область применения
Настоящий стандарт распространяется на железобетонные сборные плиты из тяжелого бетона для ленточных фундаментов зданий и сооружений и устанавливает требования к их изготовлению.