Армирование фундамента от А до Я по советам опытных строителей. Что важно знать
- Армирование фундамента от А до Я по советам опытных строителей. Что важно знать
- Армирование мелкозаглубленного фундамента. Что это такое?
- Армирование фундамента чертеж. Как делать вязку арматуры под ленточный фундамент
- Как правильно армировать бетон. Правильное армирование бетона
- Армирование столбчатого фундамента. В чем заключаются особенности армирования?
- Армирование фундамента калькулятор. Калькулятор расчёта ленточного фундамента
- Нужно ли армировать ленточный фундамент. МОЖНО ЛИ ОБОЙТИСЬ БЕЗ АРМАТУРЫ В ФУНДАМЕНТЕ
Армирование фундамента от А до Я по советам опытных строителей. Что важно знать
Фундамент в процессе эксплуатации любого сооружения регулярно испытывается на прочность различными нагрузками – от веса дома до движения почвы. Поэтому неверно сделанный расчет и небрежное армирование ленточного фундамента может привести к разрушению постройки.
При приобретении арматуры для ленточного фундамента обратите внимание на маркировку:
- индекс С обозначает свариваемый арматурный прокат;
- индекс К – материал обладает устойчивостью к коррозийным трещинам, которые возникают под высоким давлением.
Если индексы отсутствуют – материал не подходит. Прагматичный расчет в целях экономии на арматуре влечет за собой армирование низкого качества, следовательно, закономерное возникновение трещин в зимний период. Опытные строители при работе следуют требованиям СНиП, где схема армирования ленточного фундамента (в том числе шаг между продольными прутьями и шаг поперечного армирования) представлена подробно.

Чтобы знать, как правильно армировать ленточный фундамент, необходимо вооружиться некоторыми теоретическими знаниями. При обустройстве каркаса ленточного фундамента используют арматуру, которая монтируется на этапе монтажа опалубки, а после заливается бетонной смесью (слоями), и в конце выполняются гидроизоляционные работы с помощью рубероида и мастики.
Перед работой производится расчет армирования, где будет учтена максимальная нагрузка на фундаментную основу. От того, насколько правильно произведен расчет, зависит устойчивость всего строительного объекта, поэтому желательно доверить расчет профессионалам в данной области, который осуществляется в соответствии с индивидуальными особенностями каждого строения.
Расчет включает такие факторы, как:
- конфигурация сооружения;
- тип почвы;
Некоторые строительные компании делают расчет бесплатно при условии заказа и последующей оплаты работ по армированию у них.
Армирование мелкозаглубленного фундамента. Что это такое?
Выбор основания под здание определяется несколькими факторами:
- геологические особенности участка;
- нагрузка на перекрытие, кровлю и стены дома;
- рельеф местности;
- временная нагрузка (мебель, интерьер).
Мелкозаглубленный фундамент – это такое основание, которое закладывается на глубину меньше глубины промерзания грунта. Это наибольший показатель, при котором почва замерзает до 0 градусов при самых низких температурах без учета снежного покрова. Для такого фундамента достаточно будет снять верхний растительный слой почвы.
Мелкозаглубленный фундамент зачастую опирается на грунт, который может быть подвержен морозному пучению, но это не лишает его возможности обеспечивать достаточную устойчивость для зданий с небольшим весом.
Важно! Для определения глубины достаточно найти тот слой почвы, который послужит опорой и обеспечит несущую способность основания.
Для каких строений используется?
Основание чаще всего используется в таких случаях:
- при строительстве каркасных или деревянных конструкций;
- для постройки малоэтажных домов;
- при небольшой нагрузке на основание;
- при наличии ровной поверхности;
- когда ограничен бюджет на строительство.
Известно, что древесные материалы имеют небольшой вес.
- При строительстве каркасных домов , срубов, домов из бруса нет необходимости делать массивное основание – это не актуально и влечет перерасход финансов. В таком случае целесообразнее сделать мелкозаглубленный фундамент, который прекрасно выдержит нагрузку. При этом высота такого дома не должна превышать 2 этажей.
- При строительстве здания из легкого ячеистого бетона также допускается применение подобного основание. Но здесь уже будет условие – правильный расчет нагрузки на фундамент. Количество этажей такого здания не будет выше 1 яруса, так как дополнительно учитывается нагрузка от кровли.
Поверхность для возведения такого фундамента должна быть ровной, иначе придется продумать массу нюансов. Также этот вариант подойдет тем, кто хочет сэкономить средства на основании. Но этот показатель не является определяющим: если здание все-таки будет высоким и массивным, то под него нужен и соответствующий фундамент.
На каком типе почв возводится?
Еще один решающий фактор – грунты, которые предпочтительны для мелкозаглубленных оснований. Главная идея такого основания – за счет уменьшения площади его стен свести к минимуму силу пучения, которая воздействует на него сбоку. Сила пучения, воздействующая на него снизу, уравновешивается массой здания. Именно поэтому под такое основание не вырывают глубокую траншею, а просто снимают 50-70 см слоя почвы .
На некоторых видах грунта допускается возводить такое основание:
- Плотный песок. Может быть крупным, средним или с гравием. Будет отличным основанием для постройки такого фундамента, так как вода уходит быстро.
- Сыпучие пески – разрешено строительство, но только при условии, что подземные воды расположены глубоко.
- Глина, суглинок, супесь. На таком основании возможно возведение при тех же условиях залегания грунтовых вод. Также важно смотреть на количество осадков в регионе.
Справка! На торфяных грунтах возводить такое основание не рекомендуется.
Нередко возникает вопрос, может ли быть использован такой фундамент на пучинистой почве. Да, это возможно, но важно выполнить несколько условий.
Например, заместить подвижную почву песком. Делают это до точки промерзания грунта. У такого способа слишком высокая стоимость и иногда его использовать нецелесообразно. Поэтому чаще всего просто применяют свайный фундамент незаглубленного типа. Пучение воздействовать на такие основания не сможет.
Плюсы и минусы
Существует несколько положительных моментов применения такого основания:
- снижение расходов на строительство;
- уменьшение трудозатрат;
- минимизация рисков размытия основания грунтовыми водами;
- упрощение технологии строительства;
- защищенность конструкции от вспучивания грунта;
- быстрая сборка конструкции.
Все плюсы такого основания сводятся к тому, что упрощается часть строительных работ, а вместе с тем, уменьшаются расходы на материалы. Например, при возведении ленточного мелкозаглубленного фундамента уменьшается расход раствора на 70%, так как не требуется делать массивную конструкцию. При должном опыте сделать такое сооружение можно и своими руками, не привлекая специалистов.
Есть и несколько минусов такого выбора. К ним относят размещение выше глубины промерзания почвы. Это говорит о том, что такие основания подвержены воздействиям морозного пучения, нагрузки от которых способны их деформировать. Также из минусов – жесткость сборки будет ниже, чем у того же монолитного основания.
Армирование фундамента чертеж. Как делать вязку арматуры под ленточный фундамент
Фундамент – это основа всего строения, гарант его долговечности и прочности. Армирование ленточного фундамента, чертежи и схемы должны быть подготовлены и рассчитаны заблаговременно.
Необходимость армирования
Фундамент представляет собой монолитную железобетонную конструкцию. Сам бетон – материал, который выдерживает значительные нагрузки только на сжатие. Чтобы увеличить прочность фундамента на растяжение и изгиб, необходимо изготовить металлический каркас. Причем показатели прочности увеличиваются только за счет обустройства рабочих продольных прутьев. Поэтому в качестве их используют толстые профилированные прутки диаметром 10÷14 мм. Поперечные элементы предназначены для создания пространственной геометрии фундамента, они не позволяют продольным пруткам смещаться при заливке бетонного раствора, и удерживают их в нужном месте. Для этих целей можно использовать гладкие или профилированные прутки диаметром 6÷9 мм.

Требования нормативных документов к материалам для армирования
Как правильно армировать ленточный фундамент, можно узнать, ознакомившись с нормативными документами. Требования, которые необходимо соблюдать при армировании монолитного ленточного железобетонного фундамента, изложены в СНиП 52-01-2003 .
Разновидности стальных прутьев, рекомендованных для армирования:
- горячекатаные гладкие или профилированные (Ø=3÷80 мм);
- термомеханически упрочненные профилированные (Ø=6÷40 мм);
- холоднокатаные профилированные или гладкие (Ø=3÷12 мм).

Важно! По сравнению с гладкими, профилированные прутья имеют лучшее сцепление с бетоном: это позволяет значительно увеличить надежность конструкции.
Требования к расположению прутьев в армокаркасе для ленточного фундамента:
- расстояние между продольными стержнями должно быть не более 0,4 м;
- шаг поперечных фиксирующих элементов должен составлять не более 0,5 м.
Минимальное относительное содержание рабочих продольных прутьев в железобетонном элементе должно составлять не менее 0,1 %.
Для вязки элементов железобетонной конструкции должна применяться только специальная стальная обожженная проволока (Ø=0,8÷1,2 мм).
Пример расчета армирования фундамента
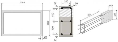
Попробуем рассчитать, сколько потребуется материалов для обустройства армирования конкретного ленточного фундамента с чертежами. Допустим, мы строим из строительных блоков (шириной 0,4 м) небольшой загородный дом с габаритными (внешними) размерами 5×8 м. Характер почвы на нашем участке позволяет сделать высоту полосы 0,9 м, ее ширину 0,4 м, что соответствует ширине строительного материала стен. В арматурном каркасе для ленточного фундамента будем использовать продольные рабочие прутья диаметром 12 мм и □-образные поперечные хомуты, изготовленные из прутков диаметром 8 мм.
Армирование мелкозаглубленного ленточного фундамента:

На фото видно, что расстояние между рабочими продольными прутьями (0,4 м) и шаг □-образных поперечных хомутов (0,5 м) выбраны в соответствии с требованиями нормативных документов.
Проверяем относительное содержание продольных рабочих прутков в нашей железобетонной конструкции. Для этого воспользуемся следующими терминами и обозначениями:
- h – высота фундамента (900 мм);
- w – ширина фундамента (400 мм);
- Sₒ – площадь поперечного сечения фундамента;
- Sₐ – суммарная площадь поперечных сечений продольных прутьев (6 штук);
- r – радиус продольного прутка (6 мм), который равен d/2, где d – диаметр прутка (в нашем случае d=12 мм);
- D – относительное содержание рабочих прутков в «теле» фундамента.
Sₒ = h∙w = 900∙400 = 360000 мм²
Sₐ = 6∙π∙r² = 6∙3,14∙6² = 678,24 мм²
D = (Sₐ∙100)/ Sₒ = (678,24∙100)/360000 = 0,1884 ≈ 0,19 % (что в 1,9 раза превышает минимально допустимое значение, то есть схема армирования ленточного фундамента выбрана нами правильно).
Расчет количества продольных прутьев
Для того чтобы определить сколько стандартных продольных прутьев (6 м) нам необходимо, воспользуемся следующими величинами:
- L – длина фундамента (8000 мм);
- W – ширина фундамента (5000 мм);
- P – периметр;
- N – количество продольных элементов (в нашем случае 6 штук);
- X – общая протяженность продольных прутьев.
P = (L+ W)∙2 = (8000 + 5000)∙2 = 26000 мм = 26 м
X = P∙N = 26∙6 = 156 м
К полученной величине необходимо добавить 20 % (материал для изготовления Г-образных или П-образных элементов для правильного армирования углов и обеспечения достаточного нахлеста при стыковке элементов).
Xдоп = X∙0,2 = 156∙0,2 = 31,2 м
Окончательная общая длина продольного арматурного прутка:
Xок = X + Xдоп = 156 + 31,2 = 187,2 м
Стандартная длина арматурного прутка составляет 6 м. Осталось посчитать, сколько таких прутков необходимо: Xок/6 = 187,2/6 = 31,2 ≈ 32 штуки.
Как правильно армировать бетон. Правильное армирование бетона
- Необходимость армирования бетона
- Технологии армирования бетонов
- Монолитное армирование
- Армирование сеткой
- Дисперсное армирование
- Необходимый инструмент

Фиброволокно повышает прочность бетона и его устойчивость к механическим повреждениям.
Армирование бетона используется давно, и за время его применения придумано множество различных способов и технологий. Современные материалы обеспечивают возможность создания очень прочных бетонных конструкций разного назначения.
Необходимость армирования бетона
Схема армирования стяжки: 1 – основная сетка; 2 – дополнительное усиление основной сетки; 3 – П-образные усиления краев плиты; 4 – Г-образное усиление углов плиты; 5 – несущие стены.
Вернуться к оглавлению
Классификация дисперсно-армированных бетонов.
С учетом выполняемых задач к армирующей системе предъявляются следующие требования:
- высокая механическая прочность;
- адгезия с бетонной массой;
- стойкость к воздействию ингредиентов раствора;
- близость коэффициента температурного линейного расширения к бетону;
- малогабаритность;
- малый вес.
По конструкции армирование бетона подразделяется на три основных типа: монолитное (каркасное, стержневое), с помощью сетки и дисперсное армирование.
Вернуться к оглавлению
Схема монолитного армирования.
Такое остаточное напряжение арматуры стягивает бетон, упрочняя структуру. Этот вид армирования применяется при заводском изготовлении блочных бетонных конструкций.
Вернуться к оглавлению
Вернуться к оглавлению
Металлическая сетка для армирования защитит от разрушения бетон, отличающийся низкой прочностью на изгиб.
Стальная фибра изготавливается из мелких металлических опилок, полученных из стальных лент или листов. Среднее содержание такой добавки 30-40 кг/м³ раствора. В случаях когда нужен особо прочный бетон, концентрацию можно повысить до 75 кг/м³.
Наибольшее распространение в последнее время находит армирование бетона стекловолокном, измельченным в виде фибры.
Армирование столбчатого фундамента. В чем заключаются особенности армирования?
Армирование столбчатых фундаментов – это залог крепкой, надежной, долговечной постройки. Небольшие изгибные усилия могут разорвать бетон, несмотря на то, что данный материал выдерживает большие нагрузки. Специалисты считают, что это основной недостаток данного материала, который необходимо учитывать при выполнении работ.
На столб фундамента воздействуют следующие нагрузки:
- на сдвиг – либо происходит сдвижение плотного слоя по водонасыщенному грунту, либо осуществляются подвижки грунта в горизонтальном направлении;
- на сжатие материалов – вес постройки;
- на разрыв – в зимний период пучения земли стенки сжимаются, в результате чего отрываются от подошвы.
Если брать в расчет нагрузки на сжатие – в таких случаях армирование столбчатого фундамента специалисты не выполняют, для того, чтобы устранить неблагоприятное воздействие, вызванное пучением грунта, будет достаточно просто обернуть столб тремя слоями рубероида. Некоторые специалисты в данном случае также рекомендуют использовать полиэтилен. Сдвиговая нагрузка – явление редко, но именно для того, чтобы избежать данного явления, осуществляют армирование.
Еще одна зона армирования – это ростверк. Так называют горизонтально расположенную часть фундамента, которая передает и воспринимает вес от стен здания на сваи. Помимо этого фактора также играет роль предназначение ростверка – оно состоит в равномерном распределении нагрузки за счет объединения свай в единое целое. Поэтому и важно при устройстве ростверка обеспечить качественную жесткость соединяющих узлов.
Армирование фундамента калькулятор. Калькулятор расчёта ленточного фундамента

Основные параметры ленточного фундамента (глубина заложения, высота и ширина ленты) подбираются согласно расчетам и с учетом характеристик грунта площадки и требований норм СП 22.13330.2011 «Основания зданий и сооружений» и СП 63.13330.2012 «Бетонные и железобетонные конструкции». Чтобы частично облегчить ваш труд, предлагаем воспользоваться онлайн-калькулятором расчёта ленточного фундамента, составленного с учетом указаний нормативных документов.
Расчёт диаметра арматуры и объёма бетонной смеси
Необходимые пояснения к расчетам арматуры
- Под основным подразумевается фундамент под наружные стены.
- Высота фундамента — расстояние от подошвы до верхнего обреза.
- Расчет по минимальному диаметру выполняется из условия наименьшего допустимого процента армирования сечения с учетом конструктивных требований.
- Минимальное число стержней продольной арматуры — 4.
- Необходимо увеличить расчетное значение длины арматуры, если предполагается крепление стержней по длине внахлест.
- Хомуты устанавливаются для сохранения продольной арматуры в проектном положении при заливке бетона.
- Шаг хомутов зависит от высоты сечения и принимается не более 300 мм (согласно СП 63.13330.2012).
Расчёт состава бетонной смеси
После расчёта диаметра арматуры и требуемого объёма бетонной смеси предлагаем воспользоваться калькулятором расчёта состава бетона для ленточного фундамента . Более подробную информацию по выбору цемента и заполнителей вы сможете найти тут .
Объем бетона вследствие уплотнения может отличаться от расчетного ориентировочно до 10%.
Нужно ли армировать ленточный фундамент. МОЖНО ЛИ ОБОЙТИСЬ БЕЗ АРМАТУРЫ В ФУНДАМЕНТЕ
Для некоторых типов грунтов категорически нет. Есть наглядный пример, при котором человек решил построить основание на глине, в том районе, где большинство строятся на сваях. В результате его ленточное основание оказалось разорвано в нескольких местах уже на следующий сезон. Арматура в фундаменте не только укрепляет прочность, но и придает эластичности.
Ленточный фундамент без арматуры имеет сниженный срок эксплуатации в большинстве случаев.
Нужна ли арматура в ленточном фундаменте?
В большинстве ситуаций нужна. Безальтернативно. Экономия на арматуре тут неуместна. Причем оптимальным способом скрепления армированного каркаса является вязка. С помощью специальной вязочной проволоки можно быстро создать качественный и прочный каркас. Если соединения скреплять с помощью сварки, то нарушается структура прута. Фундамент без армирования в процессе обязательной усадки, которая длится около 5 лет, с высокой вероятностью трескается. Поэтому экономия на материале каркаса недопустима.
Можно ли залить фундамент без арматуры?
Технически это вполне возможно и многократно производится. Но следует точно понимать, как работает армирование в основании здания или сооружения. Оно не позволяет касательным силам, которые развиваются во время морозного пучения, повредить целостность основания.
Значит, что фундамент может не иметь каркаса только при отсутствии подвижек грунта. В противном случае он обязателен.