Армирование ленточного фундамента дома. Земляные и подготовительные работы
- Армирование ленточного фундамента дома. Земляные и подготовительные работы
- Армирование ленточного фундамента гост. Технические условия
- Армирование ленточного фундамента расчет. Какую арматуру выбрать?
- Армирование ленточного фундамента СНиП. Требования СНиП к монтажу арматуры
- Армирование углов ленточного фундамента. Правильное армирование углов ленточного фундамента
- Армирование ленточного фундамента чертеж.
- Армирование ленточного фундамента для забора. Ленточный фундамент
- Правильное армирование ленточного фундамента. Как рассчитать количество арматуры и ее диаметр
- Армирование фундамента чертеж. Пример расчета армирования фундамента
Армирование ленточного фундамента дома. Земляные и подготовительные работы
Одним из достоинств ленточного фундамента является сравнительно малый объем земляных работ. Пара человек, работая день с небольшими перерывами, смогут без проблем выкопать котлован подходящего размера на нормальной почве. Когда котлован готов, можно приступать к его обустройству.
Первым этапом является изготовление подушки фундамента. Благодаря ей снижается негативное воздействие грунтовых вод на фундамент, а также максимально равномерно распределяется по грунту нагрузка от самого фундамента и всей постройки. Здесь можно использовать разные материалы. Чаще всего применяется песок или щебень. Они неплохо справляются со своей функцией – главное чтобы толщина подушки составляла минимум 15-20 сантиметров.
Но некоторые эксперты рекомендуют бетонную подушку. Да, она обходится дороже всего. Дорогостоящий цемент и необходимость армирования подушки здорово повышают стоимость и сроки строительства. Зато в результате вы получаете максимально надежное основание для фундамента, гарантирующее, что он прослужит многие годы. Поэтому можно с уверенностью сказать – эти деньги не будут выброшены на ветер.

Пример устройства армированного ленточного фундамента
Если работа ведется на слабой, пучинистой почве, или же планируется построить тяжелый кирпичный дом, но использование монолитного фундамента по какой-то причине нежелательно, то можно использовать ленточный фундамент с подошвой. Уширение (стакан) позволяет существенно снизить нагрузку на грунт. Конечно, не забывайте про армирование стакана фундамента – на пучинистых грунтах он будет регулярно выдерживать значительные нагрузки на растяжение и изгиб. Очень важно обеспечить ему достаточную прочность.
При использовании фундамента с подошвой объем земляных работ увеличивается. К тому же, придется дополнительно потратиться на армирование подошвы ленточного фундамента – если она выйдет из строя, это приведет к скорейшему разрушению всей конструкции.
Поверх готовой подушки устанавливается опалубка. При выборе ширины учитывайте – готовый фундамент должен быть на 10-15 сантиметров толще, чем внешние несущие стены.
Следующим этапом укладывается гидроизоляция. Некоторые строители используют рубероид, но это довольно дорогой материал. А большой вес затрудняет процесс укладки. Поэтому вполне можно использовать строительный полиэтилен. Да, он менее прочен. Но ведь он нужен всего на несколько дней – чтобы цементное молочко не ушло в песок. Поэтому дешевый и легкий полиэтилен вполне подойдет. Он укладывается поверх опалубки. В местах соединений делайте нахлест побольше – не меньше 10-15 сантиметров – и проклеивайте широким скотчем.
На этом подготовительные работы заканчиваются. Теперь расскажем про заливку и армирование фундамента своими руками.
Армирование ленточного фундамента гост. Технические условия
Издание официальное
Москва Российский институт стандартизации 2022
Предисловие
Цели, основные принципы и общие правила проведения работ по межгосударственной стандартизации установлены ГОСТ 1.0 «Межгосударственная система стандартизации. Основные положения» и ГОСТ 1.2 «Межгосударственная система стандартизации. Стандарты межгосударственные, правила и рекомендации по межгосударственной стандартизации. Правила разработки, принятия, обновления и отмены»
Сведения о стандарте
1 РАЗРАБОТАН Научно-исследовательским, проектно-конструкторским и технологическим институтом бетона и железобетона им. А. А. Гвоздева (НИИЖБ им. А. А. Гвоздева) — структурным подразделением Акционерного общества «Научно-исследовательский центр «Строительство» (АО «НИЦ « Строител ьство»)
2 ВНЕСЕН Техническим комитетом по стандартизации ТК465 «Строительство»
3 ПРИНЯТ Межгосударственным советом по стандартизации, метрологии и сертификации (протокол от 9 декабря 2021 г. № 60)
| Краткое наименование страны по МК (ИСО 3166) 004—97 | Код страны по МК (ИСО 3166) 004—97 | Сокращенное наименование национального органа по стандартизации | 
| Армения | АМ | ЗАО «Национальный орган по стандартизации и метрологии» Республики Армения | 
| Киргизия | KG | Кыргызстандарт | 
| Россия | RU | Госстандарт | 
| Узбекистан | UZ | Узстандарт | 
4 Приказом Федерального агентства по техническому регулированию и метрологии от 16 декабря 2021 г. № 1794-ст межгосударственный стандарт ГОСТ 13580—2021 введен в действие в качестве национального стандарта Российской Федерации с 1 сентября 2022 г.
5 ВЗАМЕН ГОСТ 13580—85
Информация о введении в действие (прекращении действия) настоящего стандарта и изменений к нему на территории указанных выше государств публикуется в указателях национальных стандартов, издаваемых в этих государствах, а также в сети Интернет на сайтах соответствующих национальных органов по стандартизации.
В случае пересмотра, изменения или отмены настоящего стандарта соответствующая информация будет опубликована на официальном интернет-сайте Межгосударственного совета по стандартизации, метрологии и сертификации в каталоге «Межгосударственные стандарты».
В Российской Федерации настоящий стандарт не может быть полностью или частично воспроизведен, тиражирован и распространен в качестве официального издания без разрешения Федерального агентства по техническому регулированию и метрологии
1 Область применения
2 Нормативные ссылки
3 Термины и определения
4 Условные обозначения
5 Форма и основные размеры
6 Технические требования
7 Правила приемки
8 Методы контроля
9 Маркировка, транспортирование и хранение
МЕЖГОСУДАРСТВЕННЫЙ СТАНДАРТ
ПЛИТЫ ЖЕЛЕЗОБЕТОННЫЕ ЛЕНТОЧНЫХ ФУНДАМЕНТОВ
Технические условия
Reinforced concrete slabs for strip foundations. Specifications
1 Область применения
Настоящий стандарт распространяется на железобетонные сборные плиты из тяжелого бетона для ленточных фундаментов зданий и сооружений и устанавливает требования к их изготовлению.
Армирование ленточного фундамента расчет. Какую арматуру выбрать?
Для армирования ленточного фундамента применяют рифленую арматуру класса А3 (А400) и А500С , в качестве основных рабочих стержней. Для изготовления конструктивных элементов чаще всего используют гладкую арматуру А1 (А240) , но можно применять и рифленую других классов, главное, чтобы соблюдалось требование по диаметру стержней.

1 -рабочие стержни; 2 – конструктивные элемент.
Сразу отметим, что мы не рекомендуем выполнять армирование ленточного фундамента на расчетах, выполненных самостоятельно. Для точного результата необходимо знать немало данных связанных с возводимым строением, а также математических формул для расчетов диаметра арматуры.
Если же вы, решили самостоятельно подобрать сечение арматуры для армирования фундамента, следует обратить внимание на тот факт, что при использовании слишком тонких прутов, вы можете снизить прочность и несущую способность всего фундамента. Отдавая предпочтение слишком толстым есть вероятность переплаты значительной сумму при закупке строительных материалов.
Поэтому следует придерживаться следующих минимальных рекомендаций по толщине арматуры для ленточного фундамента:
- 10 миллиметров для продольного армирования при длине стороны менее 3 метров.
- 12 миллиметров для продольного армирования при длине стороны свыше 3 метров.
- 6 миллиметров или больше для изготовления конструктивных элементов – «эсок» и хомутов из арматуры .
Приведенные выше параметры являются усредненными. Но в большинстве случаев при строительстве сравнительно небольших построек (гаражи, одно- и двухэтажные деревянные и каркасные дома, бани) прутья такого диаметра прекрасно справляются с нагрузками, обеспечивая надежность и значительный срок службы всей постройки.
Источник: https://armatura-dlya-fundamenta.aystroika.info/novosti/armirovanie-podoshvy-lentochnogo-fundamenta
Армирование ленточного фундамента СНиП. Требования СНиП к монтажу арматуры
 Общие схемы и требования к возведению конструкций с использованием бетона (железобетона) определены в СНиП 52−01−2003. Данный документ содержит правила расчета склонности железобетона к деформациям, его способности к образованию трещин, показателей прочности, требования к размерам и формам конструкции:
Общие схемы и требования к возведению конструкций с использованием бетона (железобетона) определены в СНиП 52−01−2003. Данный документ содержит правила расчета склонности железобетона к деформациям, его способности к образованию трещин, показателей прочности, требования к размерам и формам конструкции:
- при возведении фундаментов можно использовать только арматуру, соответствующую стандартам , с сертификатом качества, определенную в проектной документации;
- прутья сцепляются так, чтобы полностью исключить возможность их смещения во время заливки бетона;
- если для армирования ленточного фундамента используются сварные каркасы или сетки, то при их изготовлении разрешается применять такой способ сварки, который не допускает деформирования;
- радиус изгиба арматурных прутьев должен соответствовать затребованному в проекте;
- механические стыки арматуры по прочности не должны уступать прочности основного материала;
- расстояние между вертикальными стержнями зависит от их диаметра , вида заполнителя бетонной смеси, расположения в каркасе, метода заливки бетона, но не допускается шаг меньше, чем 25 см;
- расстояние между продольными прутьями не должно превышать 40 см;
- расстояние между прутьями, установленными поперечно, не должно превышать 30 см.
Для вертикального армирования используются прутья с диаметром 10−12 мм с ребристой поверхностью. Для продольного расположения диаметр арматуры не должен быть меньше, чем 10 мм и больше, чем 32 мм. Для поперечного размещения используется арматура с диаметром от 6 до 8 мм.
Источник: https://armatura-dlya-fundamenta.aystroika.info/novosti/armirovanie-podoshvy-lentochnogo-fundamenta
Армирование углов ленточного фундамента. Правильное армирование углов ленточного фундамента
Частные здания выше одного этажа характеризуются значительной массой, давящей на основание сооружения. Многоэтажные частные дома и сооружения нуждаются в усиленном фундаменте. Под понятием «усиленный фундамент» имеется ввиду фундамент усиленный поясом стального армирования.
Пояс армирования фундамента частного дома проектируется и монтируется в соответствии с конкретными условиями эксплуатации и этажностью конструкции. При этом существуют эмпирические зависимости проверенные годами эксплуатации частных зданий.
В общем случае, в углах строящегося фундамента двух-трех этажного здания, количество вертикальных армирующих стержней увеличивается в два или три раза. К примеру, если «трассовое» армирование ленточного фундамента шириной 500 миллиметров предусматривает количество вертикальных стержней 2 единицы на 70-80 см протяженности фундамента в продольном направлении, то в углах конструкции должно быть не менее 6-ти равномерно расположенных вертикальных стержней, к которым привязываются четыре продольных стержня.

Дело в том, что углы здания воспринимают значительные разнонаправленные механические нагрузки. Поэтому их усиливают не только армированием фундамента, но и в том числе специальной усиленной кладкой основных строительных материалов.
Если не сделать усиленное армирование углов ленточного фундамента, можно получить просадку углов дома, которую невозможно исправить. Указанная выше схема армирования углов ленточного фундамента перекрывает 90% конструкций возводимых малоэтажных зданий высотой два-три этажа.
Армирование ленточного фундамента чертеж.
 представляет собой сплошную бетонную опору, размещенную под всеми несущими стенами дома.
представляет собой сплошную бетонную опору, размещенную под всеми несущими стенами дома.
Конструкция подобных оснований достаточно проста.
Степень прочности, устойчивости к возникающим нагрузкам и несущая способность образуют оптимальное сочетание, позволяющее использовать ленточный тип фундамента в большинстве построек.
С некоторыми дополнениями этот вид способен служить на разных видах грунта и в относительно неблагоприятных геологических условиях.
Основным элементом конструкции является арматурный каркас, обеспечивающий прочность ленты и устойчивость к напряжениям.
Бетон является специфическим материалом. Он способен без видимых последствий выдерживать значительное давление, но разнонаправленные, растягивающие нагрузки переносит с большим трудом.
Бетонный блок, являющийся монолитной отливкой без дополнительных усиливающих элементов, способен выдерживать только равномерную сдавливающую нагрузку.
Если усилие будет приложено в центральной части, а края блока окажутся зафиксированы, он переломится при относительно небольшой нагрузке. Использовать его в таком виде в качестве основания для строительного объекта невозможно.
Проблема решается с помощью армирующего каркаса, помещаемого внутрь блока перед отливкой.
Армирование ленточных оснований является необходимым и обязательным условием, предписываемым требованиями СНиП 52-01-2003. Регламентируются все рабочие моменты создания железобетонных конструкций — состав бетона, размеры и материал арматуры, тип конструкции каркаса, способ сборки и прочие вопросы.
Соблюдение норм СНиП обязательно для всех строителей, поскольку только таким образом можно обеспечить надежность постройки и безопасность людей.

Как работает арматура
Арматурные стержни способны переносить растягивающие нагрузки примерно в 10 раз больше, чем бетон. Будучи установленными внутрь отливки, они принимают на себя растягивающие нагрузки, не позволяя появиться трещинам, усиливая и укрепляя бетонную ленту.
Арматурный каркас представляет собой пространственную решетку, состоящую из несущих и вспомогательных стержней. Если сама лента в сечении представляет собой прямоугольник, то каркас в сечении образует подобную фигуру, но несколько уменьшенную.
Если на ленту воздействует изгибающая нагрузка, то начинают работать те стержни, которые расположены со стороны, противоположной точке приложения усилия. Они не позволяют ленте изменить форму, принимая на себя внешние воздействия.
ОБРАТИТЕ ВНИМАНИЕ!
Для особо ответственных конструкций используют напрягаемые стержни, которые перед заливкой бетона натягиваются, а после затвердения массива освобождаются. Такие основания способны работать в сложных условиях, но для частного домостроения не используются.
Основными элементами являются горизонтальные стержни — несущие, или рабочие. Вертикальные элементы служат для поддержки рабочей арматуры и в большинстве нужны лишь до момента заливки. После нее рабочие функции выполняют только угловые элементы, испытывающие дополнительные напряжения и эксплуатационные нагрузки.
Вспомогательная арматура делается из более тонких прутков и нужна для исключения смещения основных элементов при заливке и затвердении.

Как выбрать бетон
Требования СНиП к бетону достаточно жесткие .
Регламентируются все рабочие параметры материала:
- Степень прочности на сжатие и осевое растяжение.
- Морозостойкость.
- Водонепроницаемость.
Для жилых домов малоэтажной кирпичной или подобной застройки оптимальный вариант —М300. При использовании легких ячеистых или пористых материалов (пенобетон, керамзитобетон) допускается применение менее прочного и плотного бетона — марок М200 и даже М150.
Более прочные сорта используются для ответственных или многоэтажных объектов. Например, бетон М400 допускается применять для отливки фундамента по жилые здания высотой до 20 этажей.

Виды арматуры
Существует два вида арматуры :
- Металлическая.
- Композитная.
Первый вид — всем знакомые стальные горячекатаные прутки с насечкой, позволяющей получить надежное сцепление с бетоном. Существуют стержни разного диаметра, от 6 до 80 мм, предназначенные для эксплуатации в соответствующих условиях.
Для вспомогательной арматуры могут быть использованы как рифленые, так и гладкие стержни меньшего диаметра.
Композитная— это целая группа, которая изготавливается из углепластика, базальтопластика и стеклопластика. Последний является наиболее распространенным и доступным вариантом. Он выгоднее металлического аналога с точки зрения стоимости, не поддается коррозии, не реагирует на электрохимические воздействия.
Однако, неспособность сгибаться усложняет сборку каркасов на изгибах или примыканиях, что уменьшает надежность этих узлов и повышает трудоемкость сборки. Диаметры стержней находятся в диапазоне от 3,5 до 48 мм.
ВАЖНО!
Армирование ленточного фундамента для забора. Ленточный фундамент
Ленточное основание в процессе эксплуатации подвергается нагрузкам различного рода и различной направленности. При разработке схемы армирования следует учитывать тот факт, что нагрузки на верхнюю часть основания, находящуюся выше уровня земли и в верхних слоях грунта, относительно незначительны.
В то же время, его нижняя часть подвергается достаточно серьезным нагрузкам на растяжение и сжатие за счет движения грунта и его пучения. На основании этого напрашивается вывод, что следует больше внимания уделить армированию нижней части . Однако не следует забывать о том, что силы пучения грунта могут превысить вес конструкции забора и фундамента и привести к растяжению не только нижней, но и верхней части фундамента.
Таким образом, становится очевидным, что ленточный фундамент под забор нуждается в армировании как в нижней, так и в верхней части. Армирование же средней его части не имеет смысла, т.к. она практически не испытывает нагрузок.
Таким образом, каркас ленточного фундамента целесообразно изготовить в форме короба, по углам которого будут установлены продольные элементы арматуры, которые крепятся к вертикальным прутам, забитым в землю по периметру фундамента. Расстояние между этими прутами не должно превышать 30 сантиметров.
Чтобы защитить стальные пруты от коррозии, их необходимо погрузить в бетон не менее чем на 5 сантиметров . Для обвязки вертикальных и горизонтальных элементов каркаса между собой используют вязальную проволоку и крючок. Для ускорения процесса обвязки можно применить шуруповерт или дрель со вставленным в патрон изогнутым гвоздем.
Не рекомендуется для соединения элементов силового каркаса фундамента применять газовую или электросварку. Термическое и электрохимическое воздействие наносит вред структуре металла, что наверняка ухудшит прочностные характеристики основания.
Правильное армирование ленточного фундамента. Как рассчитать количество арматуры и ее диаметр
Благодаря данному расчету, можно узнать, сколько прутов арматуры и каких размеров надо для того, чтобы придать ленточному фундаменту достаточную прочность. При этом применяется арматура разных видов и толщины.
Для возведения ленточного фундамента под жилой дом используется ребристые пруты диаметром 10-20 мм, а для поперечного и вертикального армирования используются гладкие круглые пруты диаметром 6-12 мм .
 Схема армирования зависит от минимального содержания продольных стержней и их минимального диаметра. Так, согласно нормам СНиП продольные стержни должны составлять не меньше 0,1% площади сечения ленты. К примеру, если высота ленточного фундамента 1200 мм, а ширина 400 мм, то, исходя из расчетов, минимальной общей площадью сечения прутов является 480 мм2 .
Схема армирования зависит от минимального содержания продольных стержней и их минимального диаметра. Так, согласно нормам СНиП продольные стержни должны составлять не меньше 0,1% площади сечения ленты. К примеру, если высота ленточного фундамента 1200 мм, а ширина 400 мм, то, исходя из расчетов, минимальной общей площадью сечения прутов является 480 мм2 .
Цифру, которая получилась в предыдущем расчете, необходимо разделить на сечение выбранной арматуры. Это и будет приблизительное число продольных стержней для каркаса.
Но можно подобрать количество стержней определенного диаметра по таблице:
| Число стержней | |||||||||
| Диаметр, мм | 1 | 2 | 3 | 4 | 5 | 6 | 7 | 8 | 9 | 
| 6 | 28,3 | 57 | 85 | 113 | 141 | 170 | 198 | 226 | 254 | 
| 8 | 50,3 | 101 | 151 | 201 | 251 | 302 | 352 | 402 | 453 | 
| 10 | 76,5 | 157 | 236 | 314 | 393 | 471 | 550 | 628 | 707 | 
| 12 | 113 | 226 | 339 | 452 | 565 | 679 | 792 | 905 | 1018 | 
| 14 | 154 | 308 | 462 | 616 | 769 | 923 | 1077 | 1231 | 1385 | 
| 16 | 201 | 402 | 603 | 804 | 1005 | 1206 | 1407 | 1608 | 1810 | 
| 18 | 254,5 | 509 | 763 | 1018 | 1272 | 1527 | 1781 | 2290 | |
| 20 | 314,2 | 628 | 942 | 1256 | 1571 | 1885 | 2199 | 2513 | 2828 | 
Арматура, в зависимости от марки стали, имеет разное сопротивление растяжению
Кроме этого, следует учитывать и минимальный допустимый диаметр прутов арматуры.
В зависимости от ее использования он будет отличаться:
| Условия использования арматуры | Минимально допустимый диаметр стержней, мм | 
| Продольная арматура вдоль стороны длиной не более 3 м | 10 | 
| Продольная арматура вдоль стороны длиной более 3 м | 12 | 
| Поперечная арматура (хомуты) вязаных каркасов высотой не более 80 см | 6 | 
| Поперечная арматура вязанных каркасов высотой более 80 см | 8 | 
Для того, чтобы выполнить расчет материалов для армирования ленточного основания, необходимо замерить или вычислить длину его ленты и умножить на число продольных прутов во всех уровнях.
 Для того, чтобы вычислить необходимое количество поперечных стержней, подсчитывается число хомутов, которое планируется установить (длина ленты делится на расстояние между хомутами) и умножается на длину арматуры, необходимой для изготовления одного хомута. Точно так же производится расчет, если будут применяться не хомуты, а куски арматуры.
 Для того, чтобы вычислить необходимое количество поперечных стержней, подсчитывается число хомутов, которое планируется установить (длина ленты делится на расстояние между хомутами) и умножается на длину арматуры, необходимой для изготовления одного хомута. Точно так же производится расчет, если будут применяться не хомуты, а куски арматуры.
Необходимо подсчитать и число дополнительных стержней, которые потребуется для установки каркаса на углах и в местах скреплений , а также для нахлеста при стыковке продольных прутов.
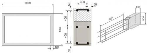
Армирование фундамента чертеж. Пример расчета армирования фундамента
Попробуем рассчитать, сколько потребуется материалов для обустройства армирования конкретного ленточного фундамента с чертежами. Допустим, мы строим из строительных блоков (шириной 0,4 м) небольшой загородный дом с габаритными (внешними) размерами 5×8 м. Характер почвы на нашем участке позволяет сделать высоту полосы 0,9 м, ее ширину 0,4 м, что соответствует ширине строительного материала стен. В арматурном каркасе для ленточного фундамента будем использовать продольные рабочие прутья диаметром 12 мм и □-образные поперечные хомуты, изготовленные из прутков диаметром 8 мм.
Армирование мелкозаглубленного ленточного фундамента:

На фото видно, что расстояние между рабочими продольными прутьями (0,4 м) и шаг □-образных поперечных хомутов (0,5 м) выбраны в соответствии с требованиями нормативных документов.
Проверяем относительное содержание продольных рабочих прутков в нашей железобетонной конструкции. Для этого воспользуемся следующими терминами и обозначениями:
- h – высота фундамента (900 мм);
- w – ширина фундамента (400 мм);
- Sₒ – площадь поперечного сечения фундамента;
- Sₐ – суммарная площадь поперечных сечений продольных прутьев (6 штук);
- r – радиус продольного прутка (6 мм), который равен d/2, где d – диаметр прутка (в нашем случае d=12 мм);
- D – относительное содержание рабочих прутков в «теле» фундамента.
Sₒ = h∙w = 900∙400 = 360000 мм²
Sₐ = 6∙π∙r² = 6∙3,14∙6² = 678,24 мм²
D = (Sₐ∙100)/ Sₒ = (678,24∙100)/360000 = 0,1884 ≈ 0,19 % (что в 1,9 раза превышает минимально допустимое значение, то есть схема армирования ленточного фундамента выбрана нами правильно).
Расчет количества продольных прутьев
Для того чтобы определить сколько стандартных продольных прутьев (6 м) нам необходимо, воспользуемся следующими величинами:
- L – длина фундамента (8000 мм);
- W – ширина фундамента (5000 мм);
- P – периметр;
- N – количество продольных элементов (в нашем случае 6 штук);
- X – общая протяженность продольных прутьев.
P = (L+ W)∙2 = (8000 + 5000)∙2 = 26000 мм = 26 м
X = P∙N = 26∙6 = 156 м
К полученной величине необходимо добавить 20 % (материал для изготовления Г-образных или П-образных элементов для правильного армирования углов и обеспечения достаточного нахлеста при стыковке элементов).
Xдоп = X∙0,2 = 156∙0,2 = 31,2 м
Окончательная общая длина продольного арматурного прутка:
Xок = X + Xдоп = 156 + 31,2 = 187,2 м
Стандартная длина арматурного прутка составляет 6 м. Осталось посчитать, сколько таких прутков необходимо: Xок/6 = 187,2/6 = 31,2 ≈ 32 штуки.
