Как Сделать Каркас для фундамента дома. Особенности применения
- Как Сделать Каркас для фундамента дома. Особенности применения
- Готовые арматурные каркасы для фундамента. Сколько нужно арматуры?
- Арматурный каркас ленточного фундамента. Какую арматуру используют для ленточного фундамента
- Арматурный каркас чертеж. Зачем армировать бетонные стены: преимущества и недостатки
- Арматурный каркас для ленточного фундамента расчет. Цены на арматуру
- Арматурный каркас плиты перекрытия. Марка ПК
- Армирование ленточного фундамента. Как делать вязку арматуры под ленточный фундамент
Как Сделать Каркас для фундамента дома. Особенности применения
Только в редких случаях, при возведении небольших построек, которые не дают особой нагрузки и располагаются на стабильной почве, можно обойтись без каркаса из арматуры для ленточного фундамента.
Армирование фундамента своими руками необходимо практически всегда, так как арматурные стеклопластиковые или металлические прутья выполняют работу, с которой не может справиться чистый бетон, который успешно противодействует только силам сжатия (давления). Металлическая арматура, из которой изготовлен каркас, берет на себя остальные нагрузки по различным видам деформации.
Для изготовления арматурного каркаса ленточного фундамента используются стальные стержни, которые имеют гладкую или ребристую поверхность. Гладкие (диаметром 6-8 мм) применяются для формирования объемной структуры каркаса и укладываются поперек или вертикально по отношению к основным стержням (ребристым, с диаметром от 10 мм и больше).
Ребристая поверхность прутьев обеспечивает оптимальное сцепление с бетоном , а их толщина предполагает сопротивление неравномерным нагрузкам при возникающих силах деформации.
Так как основные зоны риска расположены на поверхности ленточного фундамента, силовые элементы каркаса должны быть размещены в непосредственной близости — в 30-50 мм. Такая компоновка позволяет создать защитный слой из бетона толщиной несколько сантиметров, который будет препятствовать возникновению коррозии металлического каркаса.
Виды по типу фундаментов
Назначение железобетонных оснований строительных сооружений у всех одинаково, но конструкции каркасов могут отличаться в зависимости от типа фундамента.
Так для монолитного ленточного основания сооружается каркас в два горизонтальных пояса, которые соединены между собой перемычками и образуют прямоугольный короб.
Основа в виде цельной плиты армируется арматурной сеткой, а свайные опоры вертикально установленными прутьями.
Компонуя конструкцию, все ее элементы (прутья) можно вязать проволокой с помощью крючка , а можно варить электросваркой (используя тщательно подобранные электроды). Почему вязать предпочтительнее, чем сваривать, и что лучше — вязать или варить арматуру для ленточного фундамента будет рассмотрено отдельно.
Готовые арматурные каркасы для фундамента. Сколько нужно арматуры?
Прежде чем отправиться в магазин для покупки материала, нужно узнать, сколько его понадобится для армирования ленточного фундамента. Для этого следует заранее подумать, какая схема армирования ленточного фундамента станет лучшим выбором и провести расчеты для конкретного объекта.

Пример армирования каркаса для фундамента
При строительстве небольших домов, гаражей и бань обычно используется следующая конфигурация каркаса:
- 2 пояса: верхний и нижний;
- каждый пояс состоит из 3-4 прутов арматуры;
- оптимальное расстояние между стержнями – 10 сантиметров. Учтите, что расстояние от арматуры до краев будущего фундамента должно составлять не менее 5 сантиметров;
- соединение поясов выполняется при помощи хомутов или отрезков арматуры при шаге 5-30 сантиметров, в зависимости от участка армирования.
Такая схема оптимальна. Теперь, зная размеры будущей постройки, совсем не сложно провести соответствующие расчеты.
Допустим, вы хотите построить просторную каркасную или деревянную дачу площадью 150 квадратных метров с внешними стенами периметром 50 метров. Проведем расчеты, исходя из этого. Используем при армировании ленточного фундамента СНиП соответствующий и описанные выше характеристики.
Имеем два пояса по три прута в каждом. Итого – 6 умножаем на 50 = 300 метров основной арматуры. Учитываем количество перемычек, которые укладываются с шагом 30 сантиметров. Для этого 50 метров делим на 0,3. Получаем 167 штук. Поперечные перемычки в данном основании будут иметь длину 30 сантиметров, а вертикальные – 60 сантиметров. На вертикальные перемычки понадобится 167х0,6х2=200,4 метра. На горизонтальные – 167х0,3х2=100,2 метра. Итого, потребуется 300 метров толстой рифленой арматуры и 300,6 метра более тонкой, гладкой арматуры. Получив эти числа, можно смело отправляться в магазин за материалом – ленточный фундамент без армирования долго не протянет. Некоторые специалисты рекомендуют брать арматуру с запасом в 10-15%. Ведь какое-то количество материала понадобится, чтобы усилить угловые части ленточного фундамента и уйдет на стыковку.
Арматурный каркас ленточного фундамента. Какую арматуру используют для ленточного фундамента
В проекте будущего здания обязательно прописывают размеры сечения, расположение, сорт и количество арматурных элементов. Это результат расчетов с массы постройки, геологических особенностей местности, т.п.
В сечении армирующий каркас фундамента-ленты представляет собой четырехугольник. Объясняется это просто. На основание воздействуют две противоположно направленные силы: сверху масса здания, снизу сила грунтового пучения. В середине ленты таких нагрузок не возникает. Поэтому для компенсации давления мало- и среднезаглубленных фундаментов хватает двух армирующих поясов: сверху и снизу. В сильнозаглубленные основания добавляют третий пояс. Их изготавливают из прочных прутков класса IIIА или IIА.
Нужно выбирать профиль ребристой формы, у него лучше сцепление с бетонным камнем. Диаметр горизонтальных прутьев рассчитывают исходя из площади поперечного сечения каркаса и типа железобетонного элемента. Обычно это прутья диаметром 10-12 мм, но может быть и иначе.
Чтобы удержать продольные прутки на заданном месте, используют конструкционные перемычки. Их изготавливают из более тонких и гладких прутьев. Подойдет класс АI и толщина от 6 до 8 мм. Обычно такой прут загибают в форме четырехугольника-хомута, чтобы облегчить процесс сборки каркаса.Кроме металлических прутьев в продаже можно найти стеклопластиковые. Они легче и не поддаются коррозии. Однако в частном строительстве их используют редко. Изогнуть такую деталь можно только в заводских условиях.
Арматурный каркас чертеж. Зачем армировать бетонные стены: преимущества и недостатки
Бетон – высокопрочный материал, способный выдерживать огромные нагрузки без вреда для себя. Для чего же его ещё и армировать? Ответ прост. Данный материал переносит нагрузки на сжатие, не деформируясь и не растрескиваясь. Однако любые другие нагрузки, например, изгиб или растяжение, для бетона могут оказаться критическими. Возведенные из него стены покрываются сетью трещин, деформируются и даже рассыпаются. Конечно, это недопустимо при строительстве объектов, которые должны прослужить многие десятилетия.
Поэтому перед заливкой бетона в опалубку будущей стены, в неё предварительно устанавливают арматуру или арматурный каркас. Данное решение имеет множество достоинств:
- повышение прочности материала, способность выдерживать все виды нагрузок;
- возможность строительства сложных архитектурных деталей, вроде полукруглых ступеней или эркеров;
- отсутствие трещин;
- повышение срока службы бетонных построек;
- устойчивость к пучению почвы.
То есть, качественно и правильно выполненное по технологии армирование , позволяет вывести бетон на новый уровень, избавив от недостатков и наделив дополнительными преимуществами для строительства стен и других конструкций.

Пример монолитного здания нестандартной формы, построенного из композиции бетона и арматуры.
Однако тут есть и недостатки, правда, их немного. В первую очередь это повышение стоимости строительства. Стоит материал для армирования стен недешево, поэтому нужно заранее провести расчет и составить смету, прежде чем приступать к закупке материала и начинать строительство. Кроме того, повышаются затраты времени на подготовку к заливке. Тут всё зависит от выбора способа армирования бетона – приходится ли вносить специальные добавки в смесь, собирать каркас или же выполнять другие подготовительные работы, требующие наличие определенного навыка, а иногда и дорогостоящих инструментов.
Арматурный каркас для ленточного фундамента расчет. Цены на арматуру
арматура

Базовыми величинами для строительства ленточного фундамента будут являться ширина ленты и глубина её заложения в грунт
Но степени заглубления в грунт ленточные фундаменты можно разделить на две основных категории:
- Малозаглубленный ленточный фундамент подойдет для строительства каркасных сооружений, небольших загородных домов и хозяйственных построек, при условии достаточно стабильного, плотного грунта на участке. Подошва ленты располагается выше границы промерзания грунта, то есть обычно не опускается ниже 500 мм без учета цокольной части.
- Для зданий, возводимых из тяжелых материалов, а также на участках, где состояние грунта не отличается стабильностью, требуется лента глубокого заложения. Ее подошва уже опускается ниже уровня промерзания грунта, как минимум на 300÷400 мм, а при наличии в планах строительства еще и(подвала) – еще ниже.
Понятно, что высота фундаментной ленты в целом, в том числе и глубина ее залегания – отнюдь не произвольные величины, а параметры, которые получаются в результате тщательно проведенных расчетов. При проектировании учитывается целый массив исходных данных: тип грунтов на участке, степень их стабильности как в поверхностных слоях, так и изменение структуры по мере углубления; климатические особенности региона; наличие, расположение и другие особенности грунтовых водоносных горизонтов; сейсмические характеристики местности. Плюс к этому накладывается специфика планируемого к возведению здания – общая нагрузка, как статическая, создаваемая только массой конструкции (естественно, с учетом всех ее составляющих элементов), так и динамическая, вызываемая и эксплуатационными нагрузками, и всевозможными внешними воздействиями, в том числе ветровыми, снеговыми и другими.

Правильный расчет ленточного фундамента – вопрос слишком серьёзный, чтобы, не имея соответствующей подготовки, проводить его самостоятельно
Исходя из вышесказанного уместно будет сделать одно важное замечание. Принципиальная позиция автора этих строк заключается в том, что расчет базовых параметров фундаментной ленты – не терпит дилетантского подхода.
Несмотря на то что в интернете можно отыскать немало онлайн-приложений для проведения подобных расчетов, вопрос проектирования фундамента все же правильнее будет доверить специалистам. При этом нисколько не оспаривается корректность предлагаемых программ расчета – многие из них в полной мере соответствуют действующим СНиП и способны действительно выдать точные результаты. Проблема лежит в несколько иной плоскости.
Суть в том, что любая, даже самая совершенная программа расчета, требует внесения точных исходных данных. А вот в этом вопросе без специальной подготовки обойтись невозможно. Согласитесь, что правильно оценить геологические особенности участка под строительство, учесть все нагрузки, выпадающие на фундаментную ленту, причем – с разложением их по осям, предусмотреть все возможные динамические изменения – непрофессионалу просто не по силам. А ведь каждый исходный параметр имеет значение, и недооценка его вполне может затем «сыграть злую шутку».
Правда, если планируется возведение небольшого дачного домика или же хозяйственной постройки, то приглашение специалиста-проектировщика может показаться избыточной мерой. Что ж, на свой страх и риск хозяин может возвести малозаглубленный ленточный фундамент, воспользовавшись, например, примерными параметрами, которые приведены в таблице ниже. Для легких построек сильно заглубленная лента не требуется (большое заглубление может сыграть даже отрицательную роль, из-за приложения касательных сил при морозном вспучивании грунта). Как правило, в таких случаях ограничиваются максимальной глубиной расположения подошвы в 500 мм.
Арматурный каркас плиты перекрытия. Марка ПК
Итак, первая плита, изготавливаемая по опалубочной технологии без предварительно напрягаемой арматуры: плита серии 1.141-1.60, марка плиты ПК.
Максимальная длина - 4,2 м., что как раз и обусловлено отсутствием предварительного напряжения арматуры. Серийный выпуск 60 — плиты с круглыми пустотами, рабочие длины которых составляют: 4180, 3580, 2980, 2680 и 2380 мм., с шириной 1790, 1490, 1190 и 990 мм. Армирование произведено стальными стержнями класса А-III и Вр-I.
Технологический процесс опалубочного производства таких плит следующий:
1. Форма смазывается эмульсолом (предотвращение налипания бетона). 2. Устанавливаются арматурные сетки и каркасы согласно спецификаций по ГОСТ. 3. В формы помещаются пуансоны (формирователи пустоты) и накрываются дополнительно арматурными сетками. 4. Будущая плита бетонируется и вибрируется. 5. По истечении времени, отведенного на твердение - пуансоны вынимаются. 6. Производится затирка неровностей и бурение отверстий под петли. 7. Плита помещается в камеру пропаривания.
Рассмотрим вариант плиты шириной 1200 мм., - ПК 42.12-3Т
Первая рабочая арматурная сетка, работающая на растяжение состоит из 5-ти продольных стержней арматуры диаметром 8 мм., поперечные прутки - по 4 мм. Именно эта сетка (на рисунке - красный цвет) и воспринимает всю нагрузку на растяжение.
Верхняя сетка - идет как конструктивная (синий цвет), диаметр которой составляет всего 3 мм. (Класс прутков Вр-1).
Каркасы (зеленый цвет) располагаются в опорных зонах плиты и работают как поперечное усиление этих зон, между них встраиваются монтажные петли (выделены жёлтым).
Данную плиту резать поперек запрещено. При укорачивании плиты - с одного края удаляется каркас, в итоге получаем опорный узел без поперечного армирования, где существует очень высокая вероятность образования наклонных трещин.
Армирование ленточного фундамента. Как делать вязку арматуры под ленточный фундамент
Фундамент – это основа всего строения, гарант его долговечности и прочности. Армирование ленточного фундамента, чертежи и схемы должны быть подготовлены и рассчитаны заблаговременно.
Необходимость армирования
Фундамент представляет собой монолитную железобетонную конструкцию. Сам бетон – материал, который выдерживает значительные нагрузки только на сжатие. Чтобы увеличить прочность фундамента на растяжение и изгиб, необходимо изготовить металлический каркас. Причем показатели прочности увеличиваются только за счет обустройства рабочих продольных прутьев. Поэтому в качестве их используют толстые профилированные прутки диаметром 10÷14 мм. Поперечные элементы предназначены для создания пространственной геометрии фундамента, они не позволяют продольным пруткам смещаться при заливке бетонного раствора, и удерживают их в нужном месте. Для этих целей можно использовать гладкие или профилированные прутки диаметром 6÷9 мм.

Требования нормативных документов к материалам для армирования
Как правильно армировать ленточный фундамент, можно узнать, ознакомившись с нормативными документами. Требования, которые необходимо соблюдать при армировании монолитного ленточного железобетонного фундамента, изложены в СНиП 52-01-2003 .
Разновидности стальных прутьев, рекомендованных для армирования:
- горячекатаные гладкие или профилированные (Ø=3÷80 мм);
- термомеханически упрочненные профилированные (Ø=6÷40 мм);
- холоднокатаные профилированные или гладкие (Ø=3÷12 мм).

Важно! По сравнению с гладкими, профилированные прутья имеют лучшее сцепление с бетоном: это позволяет значительно увеличить надежность конструкции.
Требования к расположению прутьев в армокаркасе для ленточного фундамента:
- расстояние между продольными стержнями должно быть не более 0,4 м;
- шаг поперечных фиксирующих элементов должен составлять не более 0,5 м.
Минимальное относительное содержание рабочих продольных прутьев в железобетонном элементе должно составлять не менее 0,1 %.
Для вязки элементов железобетонной конструкции должна применяться только специальная стальная обожженная проволока (Ø=0,8÷1,2 мм).
Пример расчета армирования фундамента
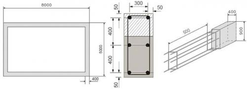
Попробуем рассчитать, сколько потребуется материалов для обустройства армирования конкретного ленточного фундамента с чертежами. Допустим, мы строим из строительных блоков (шириной 0,4 м) небольшой загородный дом с габаритными (внешними) размерами 5×8 м. Характер почвы на нашем участке позволяет сделать высоту полосы 0,9 м, ее ширину 0,4 м, что соответствует ширине строительного материала стен. В арматурном каркасе для ленточного фундамента будем использовать продольные рабочие прутья диаметром 12 мм и □-образные поперечные хомуты, изготовленные из прутков диаметром 8 мм.
Армирование мелкозаглубленного ленточного фундамента:

На фото видно, что расстояние между рабочими продольными прутьями (0,4 м) и шаг □-образных поперечных хомутов (0,5 м) выбраны в соответствии с требованиями нормативных документов.
Проверяем относительное содержание продольных рабочих прутков в нашей железобетонной конструкции. Для этого воспользуемся следующими терминами и обозначениями:
- h – высота фундамента (900 мм);
- w – ширина фундамента (400 мм);
- Sₒ – площадь поперечного сечения фундамента;
- Sₐ – суммарная площадь поперечных сечений продольных прутьев (6 штук);
- r – радиус продольного прутка (6 мм), который равен d/2, где d – диаметр прутка (в нашем случае d=12 мм);
- D – относительное содержание рабочих прутков в «теле» фундамента.
Sₒ = h∙w = 900∙400 = 360000 мм²
Sₐ = 6∙π∙r² = 6∙3,14∙6² = 678,24 мм²
D = (Sₐ∙100)/ Sₒ = (678,24∙100)/360000 = 0,1884 ≈ 0,19 % (что в 1,9 раза превышает минимально допустимое значение, то есть схема армирования ленточного фундамента выбрана нами правильно).
Расчет количества продольных прутьев
Для того чтобы определить сколько стандартных продольных прутьев (6 м) нам необходимо, воспользуемся следующими величинами:
- L – длина фундамента (8000 мм);
- W – ширина фундамента (5000 мм);
- P – периметр;
- N – количество продольных элементов (в нашем случае 6 штук);
- X – общая протяженность продольных прутьев.
P = (L+ W)∙2 = (8000 + 5000)∙2 = 26000 мм = 26 м
X = P∙N = 26∙6 = 156 м
К полученной величине необходимо добавить 20 % (материал для изготовления Г-образных или П-образных элементов для правильного армирования углов и обеспечения достаточного нахлеста при стыковке элементов).
Xдоп = X∙0,2 = 156∙0,2 = 31,2 м
Окончательная общая длина продольного арматурного прутка:
Xок = X + Xдоп = 156 + 31,2 = 187,2 м
Стандартная длина арматурного прутка составляет 6 м. Осталось посчитать, сколько таких прутков необходимо: Xок/6 = 187,2/6 = 31,2 ≈ 32 штуки.