Вязка арматуры углов ленточного фундамента. Материалы для армирования
- Вязка арматуры углов ленточного фундамента. Материалы для армирования
- Как правильно вязать арматуру на углах фундамента. Установка арматуры по всему периметру ленточного фундамента
- Армирование углов стеклопластиковой арматурой. Гнутые элементы из стеклопластиковой арматуры
- Армирование углов армопояса. Тонкости сооружения армопояса на газобетонных стенах
- Ленточный фундамент арматура.
- Армирование углов фундамента снип. Для чего нужно армировать фундамент
- Армирование ленточного фундамента. Пример расчета армирования фундамента
Вязка арматуры углов ленточного фундамента. Материалы для армирования
Наибольшие нагрузки испытывают продольные части армирующего каркаса ленточного фундамента , поэтому для их изготовления используются профильные прутки арматуры диаметром от 12 до 20 мм в зависимости от нагрузки (количества этажей будущего здания и материала, который будет использоваться для возведения стен). Для вертикальных и поперечных частей конструкции можно использовать гладкую арматуру диаметром от 8 до 12 мм (зависит от веса стен и высоты «ленты»). Для обвязки арматуры используется специальная мягкая вязальная проволока диаметром 0,8-1,2 мм.

Необходимые инструменты и приспособления:
- Специальный резак для арматуры (либо болгарка с дисками для резки металла).
- Приспособление (может быть изготовлено из обрезков металлических уголков, швеллера и труб подходящего диаметра) для угловых загибов арматуры и изготовления вертикальных прямоугольных хомутов; Г-образных и П-образных армирующих элементов. При желании данное приспособление в заводском исполнении можно приобрести в строительном магазине.
- Крючок, с помощью которого вяжут арматуру проволокой, или специальный вязальный аккумуляторный пистолет (можно взять на прокат – это значительно сэкономит время).

- Специальные «стульчики» или «лягушки» для поднятия армирующего пояса на 50 мм от нижнего края гидроизоляционного слоя (можно использовать куски кирпичей подходящих размеров).
- «Звездочки» для обеспечения зазора в 50 мм между опалубкой и армирующим каркасом.

- Шаблоны с отверстиями для продольных частей арматуры, которые служат для удобства обвязки частей будущего каркаса (легко изготовить из досок или толстой фанеры).
Как правильно вязать арматуру на углах фундамента. Установка арматуры по всему периметру ленточного фундамента
Опалубка готова, теперь можно переходить к самому ответственному процессу – армированию фундамента своими руками. Используют стальную и стеклопластиковую арматуру, мы остановимся на первом варианте, поскольку так будет намного дешевле. Нам потребуется приобрести следующие материалы:
- продольная арматуры толщиной 14-18 мм (среднее значение, ваш проект может быть другим);
- поперечные и вертикальные прутья диаметром 10-12 мм;
- вязальная стальная проволока;
- хорошие плоскогубцы или пассатижи для манипуляций с проволокой (или очень крепкие руки).
Важно: крепить арматуру необходимо именно вязальной стальной проволокой, поскольку она имеет низкий коэффициент растягивания и достаточно прочная. Это существенно упростит сбор конструкции, но на прочность фундамента проволока не влияет, она только фиксирует арматуру до заливки фундамента
ШАГ 1: делаем расчёты и закупаем материалы. Высчитать, сколько надо материалов, очень легко. Поперечные прутья кладутся на расстоянии около 30 сантиметров (небольшие погрешности не страшны), продольная парная арматура через каждые 40 сантиметров высоты (не забываем первый раздел), а вертикальная – через 60 см. Длину стены делим на количество поперечин и количество «ярусов» продольной арматуры. Рассмотрим на примере фундамента 10х10 метров и высотой 120 см:
- 1000 см: 30 см = 33 (количество поперечных прутьев на 1 ярусе);
- 33 х 3 = 99 (количество поперечных прутков на 1 сторону);
- 99 х 4 = 396 (все прутки на 4 стороны).
Теперь 396 умножаем на ширину фундамента (пусть он будет у нас 70 см): 396 х 70 = 27720 см. 277 метров прутков надо купить. Аналогичные расчёты проводим для продольной арматуры:
- 2 х 17 = 34 (штук на 1 сторону);
- 34 х 4 = 136 (штук на все основание);
- 136 х 120 см = 16320 см или 163 метра.
И, конечно же, вертикальные элементы. Их будем ставить с обеих сторон фундамента с частотой через одну поперечную перемычку, то есть, через 60 см:
Подставляем параметры вашего строения в пример и получаем правильный расчет элементов для армирования ленточного фундамента дома. Не забудьте 5-8% на «всякий пожарный».
ШАГ 2: У вас на дне траншеи уже есть 5-6 см бетона для выравнивания? Пропускайте этот шаг. Если же нет, засыпаем 15 см песка, затем 5 см бетона, выравниваем все, не забываем о коммуникациях и месте под них. Если нет желания возиться, можно просто на дно положить плотную ПВХ пленку. Основная задача этого шага – выровнять землю и задержать немного воду, которая появится после заливки бетона.
ШАГ 3: вязка арматуры для ленточного фундамента. Делать ее можно в траншее или рядом, если там неудобно разворачиваться либо сама траншея слишком узкая по проекту. При «удаленной» сборке сразу необходимо будет продумать способы опускания металла вниз, чтобы не повредить структуру. Рассмотрим, как сделать армирование фундамента своими руками:
- Начинаем с нижних поперечин. Выкладываем их с шагом 30 см, сверху на них кладем 2 продольные арматуры, на «перекрестках» вяжем их между собой проволокой.
- Переходим на вертикальные перемычки. Вертикальный элемент ставим через 1 поперечный, связываем.
- Крепим еще 2 яруса, отступая 40 см вверх.
Примеры неправильной вязки арматуры
Важно: оставляйте по 20 см после каждого соединения, поскольку арматура может немного двигаться при заливке фундамента под его нагрузкой. Не обязательно намертво зажимать вязальную проволоку, можно оставить ее, чтобы немного «играла», так будет правильнее. . 4
Каркас опускаем в траншею (если сборка была не в ней), отступив по 5 сантиметров от опалубки, фиксируем его любым удобным способом
4. Каркас опускаем в траншею (если сборка была не в ней), отступив по 5 сантиметров от опалубки, фиксируем его любым удобным способом.
Правильная схема армирования фундамента и примеры вязки арматуры
У вас получится 4 «блока», которые будут на длину и ширину одной стороны минус 5 см со всех сторон. Далее рассмотрим, как правильно их крепить между собой и армировать углы, на которые припадает большая часть всей нагрузки.
Армирование углов стеклопластиковой арматурой. Гнутые элементы из стеклопластиковой арматуры
Так как пластиковую арматуру поставляют в рулонах (50 или 100 м), то нет необходимости производить связку продольных несущих прутков: можно просто отрезать кусок необходимой длины. При обустройстве арматурного каркаса для ленточного фундамента часто используют □-образные вертикальные хомуты в качестве поперечных армирующих элементов, а для усиления углов и примыканий необходимы Г- и П-образные дополнительные элементы. Самостоятельно изготовить такие гнутые элементы из прямых стеклопластиковых прутков невозможно (арматура или сломается, или примет прежнее состояние после снятия усилия на изгиб). Придать любую форму стеклопластиковому прутку можно только на этапе его изготовления в заводских условиях. Поэтому необходимо, в соответствии с эскизом, приобрести нужное количество готовых гнутых элементов. Вязку дополнительных крепежных элементов арматурного каркаса можно произвести с помощью вязальной проволоки и обычного крючка или пластиковых хомутов.
На заметку! Если вы не найдете в продаже гнутых стеклопластиковых элементов необходимых размеров или форм, то можно изготовить их самостоятельно из обычной стальной арматуры (придется приобрести небольшое ее количество).
Разнообразие крепежных элементов, которые применяют для вязки стеклопластиковой арматуры, позволяет выбрать тот способ, который будет удобен именно вам (как в технологическом, так и в материальном смысле).
Армирование углов армопояса. Тонкости сооружения армопояса на газобетонных стенах
Для обустройства функционального сейсмпояса при строительстве дома из газобетона стоит обратить внимание на ряд моментов.
Армирование

Армопояс выполняется из прутьев толщиной в 10-12 мм с выраженной ребристой поверхностью. Так бетон лучше сцепится с поверхностью арматуры и меньше деформируется при нагрузках. Отдельные прутья соединяются в каркас вязальной проволокой с шагом около 0,5 м. Если предполагается сильная нагрузка на стены, рекомендуется усилить конструкцию поперечными прутьями. Сварка не применяется, т.к. перегрев негативно сказывается на характеристиках металла.
Важно! Из-за значительного веса каркас вяжется непосредственно в опалубке, блоке или между доборными блоками после застывания клея.
Прутья должны располагаться в толще бетона армопояса на несколько сантиметров вглубь от поверхности, иначе будут подвержены ржавчине и потеряют в прочности. Снизу каркас приподнимается на кусках кирпича, камнях, плитках. Высота проверяется по уровню.

Заливка
Так как сделать армопояс по газобетону нужно монолитным, рекомендуется залить его за один прием. Если такой вариант невозможен – используются отсечки. Чтобы упрочнить место соединения рекомендуется сделать швы по диагонали. Перед заливкой новой порции бетона шов обильно смачивается водой.
Важно! Арматурный каркас не должен прерываться. Стоит потратить время и закрепить отсечки между готовыми прутьями, иначе сейсмопояс не сможет равномерно распределить нагрузки, а в месте швов на стенах образуются трещины.
После заливки бетон уплотняется вибромолотом. Лишний воздух можно выпустить, покалывая свежий бетон прутом в нескольких местах. Затем поверхность выравнивается. Для заливки армопояса используется бетон М-200 и выше. Чтобы изготовить смесь самостоятельно, нужно соединить 1 часть цемента, 2 части песка и 3,5 части щебня. Получится бетон М-250. Для максимально прочной строительной смеси нужно по 1 части цемента и песка соединить с 2,5 части щебня.

Ленточный фундамент арматура.
представляет собой сплошную бетонную опору, размещенную под всеми несущими стенами дома.
Конструкция подобных оснований достаточно проста.
Степень прочности, устойчивости к возникающим нагрузкам и несущая способность образуют оптимальное сочетание, позволяющее использовать ленточный тип фундамента в большинстве построек.
С некоторыми дополнениями этот вид способен служить на разных видах грунта и в относительно неблагоприятных геологических условиях.
Основным элементом конструкции является арматурный каркас, обеспечивающий прочность ленты и устойчивость к напряжениям.
Бетон является специфическим материалом. Он способен без видимых последствий выдерживать значительное давление, но разнонаправленные, растягивающие нагрузки переносит с большим трудом.
Бетонный блок, являющийся монолитной отливкой без дополнительных усиливающих элементов, способен выдерживать только равномерную сдавливающую нагрузку.
Если усилие будет приложено в центральной части, а края блока окажутся зафиксированы, он переломится при относительно небольшой нагрузке. Использовать его в таком виде в качестве основания для строительного объекта невозможно.
Проблема решается с помощью армирующего каркаса, помещаемого внутрь блока перед отливкой.
Армирование ленточных оснований является необходимым и обязательным условием, предписываемым требованиями СНиП 52-01-2003. Регламентируются все рабочие моменты создания железобетонных конструкций — состав бетона, размеры и материал арматуры, тип конструкции каркаса, способ сборки и прочие вопросы.
Соблюдение норм СНиП обязательно для всех строителей, поскольку только таким образом можно обеспечить надежность постройки и безопасность людей.

Как работает арматура
Арматурные стержни способны переносить растягивающие нагрузки примерно в 10 раз больше, чем бетон. Будучи установленными внутрь отливки, они принимают на себя растягивающие нагрузки, не позволяя появиться трещинам, усиливая и укрепляя бетонную ленту.
Арматурный каркас представляет собой пространственную решетку, состоящую из несущих и вспомогательных стержней. Если сама лента в сечении представляет собой прямоугольник, то каркас в сечении образует подобную фигуру, но несколько уменьшенную.
Если на ленту воздействует изгибающая нагрузка, то начинают работать те стержни, которые расположены со стороны, противоположной точке приложения усилия. Они не позволяют ленте изменить форму, принимая на себя внешние воздействия.
ОБРАТИТЕ ВНИМАНИЕ!
Для особо ответственных конструкций используют напрягаемые стержни, которые перед заливкой бетона натягиваются, а после затвердения массива освобождаются. Такие основания способны работать в сложных условиях, но для частного домостроения не используются.
Основными элементами являются горизонтальные стержни — несущие, или рабочие. Вертикальные элементы служат для поддержки рабочей арматуры и в большинстве нужны лишь до момента заливки. После нее рабочие функции выполняют только угловые элементы, испытывающие дополнительные напряжения и эксплуатационные нагрузки.
Вспомогательная арматура делается из более тонких прутков и нужна для исключения смещения основных элементов при заливке и затвердении.

Как выбрать бетон
Требования СНиП к бетону достаточно жесткие .
Регламентируются все рабочие параметры материала:
- Степень прочности на сжатие и осевое растяжение.
- Морозостойкость.
- Водонепроницаемость.
Для жилых домов малоэтажной кирпичной или подобной застройки оптимальный вариант —М300. При использовании легких ячеистых или пористых материалов (пенобетон, керамзитобетон) допускается применение менее прочного и плотного бетона — марок М200 и даже М150.
Более прочные сорта используются для ответственных или многоэтажных объектов. Например, бетон М400 допускается применять для отливки фундамента по жилые здания высотой до 20 этажей.

Виды арматуры
Существует два вида арматуры :
- Металлическая.
- Композитная.
Первый вид — всем знакомые стальные горячекатаные прутки с насечкой, позволяющей получить надежное сцепление с бетоном. Существуют стержни разного диаметра, от 6 до 80 мм, предназначенные для эксплуатации в соответствующих условиях.
Для вспомогательной арматуры могут быть использованы как рифленые, так и гладкие стержни меньшего диаметра.
Композитная— это целая группа, которая изготавливается из углепластика, базальтопластика и стеклопластика. Последний является наиболее распространенным и доступным вариантом. Он выгоднее металлического аналога с точки зрения стоимости, не поддается коррозии, не реагирует на электрохимические воздействия.
Однако, неспособность сгибаться усложняет сборку каркасов на изгибах или примыканиях, что уменьшает надежность этих узлов и повышает трудоемкость сборки. Диаметры стержней находятся в диапазоне от 3,5 до 48 мм.
ВАЖНО!
Армирование углов фундамента снип. Для чего нужно армировать фундамент
Фундамент чаще всего деформируется из-за неравномерной нагрузки или пучения грунта под воздействием низких температур. Если конструкция состоит из бетона, то следует учитывать его характеристики: высокие показатели прочности на сжатие и низкую прочность на разрыв. Для компенсации последнего качества используется схема каркаса, которая монтируется из металлических прутьев для армирования. Сталь обладает более высокой устойчивостью к растяжению, что помогает фундаменту выдерживать повышенные нагрузки.
Верхняя часть конструкции фундамента под весом здания сжимается, нижняя растягивается при замерзании грунта, вследствие чего в области растяжения могут появиться трещины. Поэтому арматура укладывается в нижней и верхней части фундамента. В армированном бетоне цементный раствор сопротивляется сжатию, металл — процессу растяжения. Укладывать прутья посередине нет смысла, так как там повышенной нагрузки не наблюдается.
При возведении фундамента особое внимание необходимо уделить тем частям конструкции, которые выделяются на пристройки и эркеры. Для армирования бетона в этих областях используются согнутые под определенным углом прутья на примыкающие стены. Металл не должен выступать за опалубку или уходить в грунт, расстояние между прутьями не должно превышать 5 см. Для соединения можно использовать только проволоку (но не сварку). Форма каркаса из арматурных прутьев должна быть квадратной (прямоугольной).
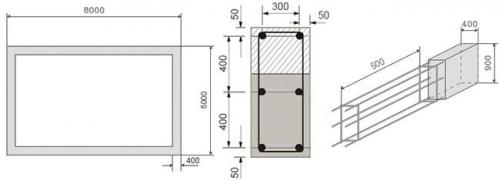
Армирование ленточного фундамента. Пример расчета армирования фундамента
Попробуем рассчитать, сколько потребуется материалов для обустройства армирования конкретного ленточного фундамента с чертежами. Допустим, мы строим из строительных блоков (шириной 0,4 м) небольшой загородный дом с габаритными (внешними) размерами 5×8 м. Характер почвы на нашем участке позволяет сделать высоту полосы 0,9 м, ее ширину 0,4 м, что соответствует ширине строительного материала стен. В арматурном каркасе для ленточного фундамента будем использовать продольные рабочие прутья диаметром 12 мм и □-образные поперечные хомуты, изготовленные из прутков диаметром 8 мм.
Армирование мелкозаглубленного ленточного фундамента:

На фото видно, что расстояние между рабочими продольными прутьями (0,4 м) и шаг □-образных поперечных хомутов (0,5 м) выбраны в соответствии с требованиями нормативных документов.
Проверяем относительное содержание продольных рабочих прутков в нашей железобетонной конструкции. Для этого воспользуемся следующими терминами и обозначениями:
- h – высота фундамента (900 мм);
- w – ширина фундамента (400 мм);
- Sₒ – площадь поперечного сечения фундамента;
- Sₐ – суммарная площадь поперечных сечений продольных прутьев (6 штук);
- r – радиус продольного прутка (6 мм), который равен d/2, где d – диаметр прутка (в нашем случае d=12 мм);
- D – относительное содержание рабочих прутков в «теле» фундамента.
Sₒ = h∙w = 900∙400 = 360000 мм²
Sₐ = 6∙π∙r² = 6∙3,14∙6² = 678,24 мм²
D = (Sₐ∙100)/ Sₒ = (678,24∙100)/360000 = 0,1884 ≈ 0,19 % (что в 1,9 раза превышает минимально допустимое значение, то есть схема армирования ленточного фундамента выбрана нами правильно).
Расчет количества продольных прутьев
Для того чтобы определить сколько стандартных продольных прутьев (6 м) нам необходимо, воспользуемся следующими величинами:
- L – длина фундамента (8000 мм);
- W – ширина фундамента (5000 мм);
- P – периметр;
- N – количество продольных элементов (в нашем случае 6 штук);
- X – общая протяженность продольных прутьев.
P = (L+ W)∙2 = (8000 + 5000)∙2 = 26000 мм = 26 м
X = P∙N = 26∙6 = 156 м
К полученной величине необходимо добавить 20 % (материал для изготовления Г-образных или П-образных элементов для правильного армирования углов и обеспечения достаточного нахлеста при стыковке элементов).
Xдоп = X∙0,2 = 156∙0,2 = 31,2 м
Окончательная общая длина продольного арматурного прутка:
Xок = X + Xдоп = 156 + 31,2 = 187,2 м
Стандартная длина арматурного прутка составляет 6 м. Осталось посчитать, сколько таких прутков необходимо: Xок/6 = 187,2/6 = 31,2 ≈ 32 штуки.
