Правила проведения армирование ленточного фундамента. Правила армирования
- Правила проведения армирование ленточного фундамента. Правила армирования
- Правильное армирование ленточного фундамента СНиП. Правила монтажа армокаркаса по СНиП
- Армирование фундамента чертеж.
- Минимальное армирование ленточного фундамента. Как делать вязку арматуры под ленточный фундамент
- Армирование подушки фундамента. Устройство подушки своими руками
Правила проведения армирование ленточного фундамента. Правила армирования
При выполнении армирования учитываются определенные общие правила:
- Укладка поперечных прутьев производится примерно через каждые отмеренные автором основания 30 сантиметров, продольные прутья укладываются с учетом промежутка в 40 сантиметров. Вертикальная арматура устанавливается с применением промежутка 60 сантиметров. Это предписывают строительные нормы и технология армирования ленточного фундамента.
- Уложенные прутья заливаются бетоном, который далее, нужно армировать. Для выравнивания и задержки воды на дно траншеи укладывается слой песка, в некоторых случаях на дно укладывается ПВХ пленка.
- Рассматривая, как армировать ленточный фундамент своими руками в траншее, нужно уложить с шагом 30 сантиметров нижние поперечины и выложить на них две продольные арматуры. На пересечениях прутья связываются железной проволокой.
- Далее, через один поперечный устанавливаются вертикальные арматуры, позволяющие сделать армирование максимально надежным. Обязательно ли связывать сечения, а не сваривать их. Желательно, это повышает прочность и делает конструкцию максимально надежной.
- Далее, схемы армирования ленточного фундамента рекомендуют выполнить еще два яруса. Правила армирования ленточного фундамента рекомендуют отступать вверх 40 сантиметров.
- В случае, когда армирование проводилось не в траншее, например, траншея слишком узкая, строительные нормы предполагают установку каркаса с отступом порядка 5 сантиметров от опалубки, что позволит легкое размещение армирующей конструкции.
Правильное армирование ленточного фундамента СНиП. Правила монтажа армокаркаса по СНиП
Количество необходимой для закладываемой конструкции арматуры и расстояние между арматурными прутьями напрямую зависят от размеров фундамента.
Согласно СНиП 52-01-2003 расстояние между прутьями рассчитывается, исходя из:
- диаметра прута;
- размера бетонного заполнителя;
- направления бетонирования;
- технологии укладки;
- вида бетонного уплотнителя.
Технологически правильное армирование подразумевает, что расстояние между прутьями продольной арматуры должно находиться в пределах от 25 до 40 см. Прутья же поперечной арматуры должны быть не более чем в 30 см друг от друга.
Все самое важное об армировании ленточного фундамента найдете впубликации.
Требования к бетону
Бетон для ленточного фундамента должен отвечать определённым физико-техническим требованиям. Среди них:
- прочность;
- морозостойкость;
- водонепроницаемость.
Прочность — это способность выдерживать нагрузки на сжатие, выраженная в килограммах на квадратный сантиметр.
Морозостойкость обозначается буквой “F” и числовым эквивалентом . Число — это количество циклов полного замораживания и оттаивания опытного образца бетона без изменений своих характеристик.
Водонепроницаемость обозначается буквой “W” и также числовым эквивалентом. Число, в данном случае, — это максимальное давление, измеряемое в мегаПаскалях, при котором образец бетона не пропускает через себя влагу.
Марки бетона , рекомендуемые для сооружения ленточного фундамента:
Соотношение типа сооружения, грунта и марки бетона для ленточного фундамента:
| Тип сооружения | Слабопучинистые грунты | Пучинистые грунты |
| Лёгкие деревянные или каркасные дома | М-200 | М-250 |
| Дома из бруса, бревенчатые срубы | М-250 | М-300 |
| Дома из арболитовых блоков и подобных им материалов | М-300 | М-350 |
| Дома из кирпича, камня, железобетона | М-350 | М-400 |
Требования к арматуре
Для армирования ленточного фундамента используется стальная или композитная арматура . Поверхность её профилирована, что приводит к передаче максимальной нагрузки от прогибающегося бетона к арматурным прутьям.
Для продольного армирования обычно используются металлические прутья, диаметр которых находится в пределах от 10 до 16 мм.
Для поперечного армирования применяются металлические прутья, диаметр которых находится в пределах от 6 до 8 мм.
В соответствии со, при возведении ленточного фундамента могут использоваться следующие виды арматуры:
- горячекатанная;
- термомеханически упрочнённая;
- механически упрочнённая в холодном состоянии;
- неметаллическая композитная.
О том, какую арматуру используют для армирования ленточного фундамента, расскажетстатья.
Армирование фундамента чертеж.
представляет собой сплошную бетонную опору, размещенную под всеми несущими стенами дома.
Конструкция подобных оснований достаточно проста.
Степень прочности, устойчивости к возникающим нагрузкам и несущая способность образуют оптимальное сочетание, позволяющее использовать ленточный тип фундамента в большинстве построек.
С некоторыми дополнениями этот вид способен служить на разных видах грунта и в относительно неблагоприятных геологических условиях.
Основным элементом конструкции является арматурный каркас, обеспечивающий прочность ленты и устойчивость к напряжениям.
Бетон является специфическим материалом. Он способен без видимых последствий выдерживать значительное давление, но разнонаправленные, растягивающие нагрузки переносит с большим трудом.
Бетонный блок, являющийся монолитной отливкой без дополнительных усиливающих элементов, способен выдерживать только равномерную сдавливающую нагрузку.
Если усилие будет приложено в центральной части, а края блока окажутся зафиксированы, он переломится при относительно небольшой нагрузке. Использовать его в таком виде в качестве основания для строительного объекта невозможно.
Проблема решается с помощью армирующего каркаса, помещаемого внутрь блока перед отливкой.
Армирование ленточных оснований является необходимым и обязательным условием, предписываемым требованиями СНиП 52-01-2003. Регламентируются все рабочие моменты создания железобетонных конструкций — состав бетона, размеры и материал арматуры, тип конструкции каркаса, способ сборки и прочие вопросы.
Соблюдение норм СНиП обязательно для всех строителей, поскольку только таким образом можно обеспечить надежность постройки и безопасность людей.

Как работает арматура
Арматурные стержни способны переносить растягивающие нагрузки примерно в 10 раз больше, чем бетон. Будучи установленными внутрь отливки, они принимают на себя растягивающие нагрузки, не позволяя появиться трещинам, усиливая и укрепляя бетонную ленту.
Арматурный каркас представляет собой пространственную решетку, состоящую из несущих и вспомогательных стержней. Если сама лента в сечении представляет собой прямоугольник, то каркас в сечении образует подобную фигуру, но несколько уменьшенную.
Если на ленту воздействует изгибающая нагрузка, то начинают работать те стержни, которые расположены со стороны, противоположной точке приложения усилия. Они не позволяют ленте изменить форму, принимая на себя внешние воздействия.
ОБРАТИТЕ ВНИМАНИЕ!
Для особо ответственных конструкций используют напрягаемые стержни, которые перед заливкой бетона натягиваются, а после затвердения массива освобождаются. Такие основания способны работать в сложных условиях, но для частного домостроения не используются.
Основными элементами являются горизонтальные стержни — несущие, или рабочие. Вертикальные элементы служат для поддержки рабочей арматуры и в большинстве нужны лишь до момента заливки. После нее рабочие функции выполняют только угловые элементы, испытывающие дополнительные напряжения и эксплуатационные нагрузки.
Вспомогательная арматура делается из более тонких прутков и нужна для исключения смещения основных элементов при заливке и затвердении.

Как выбрать бетон
Требования СНиП к бетону достаточно жесткие .
Регламентируются все рабочие параметры материала:
- Степень прочности на сжатие и осевое растяжение.
- Морозостойкость.
- Водонепроницаемость.
Для жилых домов малоэтажной кирпичной или подобной застройки оптимальный вариант —М300. При использовании легких ячеистых или пористых материалов (пенобетон, керамзитобетон) допускается применение менее прочного и плотного бетона — марок М200 и даже М150.
Более прочные сорта используются для ответственных или многоэтажных объектов. Например, бетон М400 допускается применять для отливки фундамента по жилые здания высотой до 20 этажей.

Виды арматуры
Существует два вида арматуры :
- Металлическая.
- Композитная.
Первый вид — всем знакомые стальные горячекатаные прутки с насечкой, позволяющей получить надежное сцепление с бетоном. Существуют стержни разного диаметра, от 6 до 80 мм, предназначенные для эксплуатации в соответствующих условиях.
Для вспомогательной арматуры могут быть использованы как рифленые, так и гладкие стержни меньшего диаметра.
Композитная— это целая группа, которая изготавливается из углепластика, базальтопластика и стеклопластика. Последний является наиболее распространенным и доступным вариантом. Он выгоднее металлического аналога с точки зрения стоимости, не поддается коррозии, не реагирует на электрохимические воздействия.
Однако, неспособность сгибаться усложняет сборку каркасов на изгибах или примыканиях, что уменьшает надежность этих узлов и повышает трудоемкость сборки. Диаметры стержней находятся в диапазоне от 3,5 до 48 мм.
ВАЖНО!
Минимальное армирование ленточного фундамента. Как делать вязку арматуры под ленточный фундамент
Фундамент – это основа всего строения, гарант его долговечности и прочности. Армирование ленточного фундамента, чертежи и схемы должны быть подготовлены и рассчитаны заблаговременно.
Необходимость армирования
Фундамент представляет собой монолитную железобетонную конструкцию. Сам бетон – материал, который выдерживает значительные нагрузки только на сжатие. Чтобы увеличить прочность фундамента на растяжение и изгиб, необходимо изготовить металлический каркас. Причем показатели прочности увеличиваются только за счет обустройства рабочих продольных прутьев. Поэтому в качестве их используют толстые профилированные прутки диаметром 10÷14 мм. Поперечные элементы предназначены для создания пространственной геометрии фундамента, они не позволяют продольным пруткам смещаться при заливке бетонного раствора, и удерживают их в нужном месте. Для этих целей можно использовать гладкие или профилированные прутки диаметром 6÷9 мм.

Требования нормативных документов к материалам для армирования
Как правильно армировать ленточный фундамент, можно узнать, ознакомившись с нормативными документами. Требования, которые необходимо соблюдать при армировании монолитного ленточного железобетонного фундамента, изложены в СНиП 52-01-2003 .
Разновидности стальных прутьев, рекомендованных для армирования:
- горячекатаные гладкие или профилированные (Ø=3÷80 мм);
- термомеханически упрочненные профилированные (Ø=6÷40 мм);
- холоднокатаные профилированные или гладкие (Ø=3÷12 мм).

Важно! По сравнению с гладкими, профилированные прутья имеют лучшее сцепление с бетоном: это позволяет значительно увеличить надежность конструкции.
Требования к расположению прутьев в армокаркасе для ленточного фундамента:
- расстояние между продольными стержнями должно быть не более 0,4 м;
- шаг поперечных фиксирующих элементов должен составлять не более 0,5 м.
Минимальное относительное содержание рабочих продольных прутьев в железобетонном элементе должно составлять не менее 0,1 %.
Для вязки элементов железобетонной конструкции должна применяться только специальная стальная обожженная проволока (Ø=0,8÷1,2 мм).
Пример расчета армирования фундамента
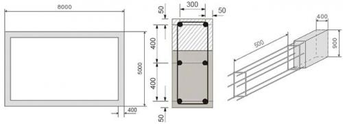
Попробуем рассчитать, сколько потребуется материалов для обустройства армирования конкретного ленточного фундамента с чертежами. Допустим, мы строим из строительных блоков (шириной 0,4 м) небольшой загородный дом с габаритными (внешними) размерами 5×8 м. Характер почвы на нашем участке позволяет сделать высоту полосы 0,9 м, ее ширину 0,4 м, что соответствует ширине строительного материала стен. В арматурном каркасе для ленточного фундамента будем использовать продольные рабочие прутья диаметром 12 мм и □-образные поперечные хомуты, изготовленные из прутков диаметром 8 мм.
Армирование мелкозаглубленного ленточного фундамента:

На фото видно, что расстояние между рабочими продольными прутьями (0,4 м) и шаг □-образных поперечных хомутов (0,5 м) выбраны в соответствии с требованиями нормативных документов.
Проверяем относительное содержание продольных рабочих прутков в нашей железобетонной конструкции. Для этого воспользуемся следующими терминами и обозначениями:
- h – высота фундамента (900 мм);
- w – ширина фундамента (400 мм);
- Sₒ – площадь поперечного сечения фундамента;
- Sₐ – суммарная площадь поперечных сечений продольных прутьев (6 штук);
- r – радиус продольного прутка (6 мм), который равен d/2, где d – диаметр прутка (в нашем случае d=12 мм);
- D – относительное содержание рабочих прутков в «теле» фундамента.
Sₒ = h∙w = 900∙400 = 360000 мм²
Sₐ = 6∙π∙r² = 6∙3,14∙6² = 678,24 мм²
D = (Sₐ∙100)/ Sₒ = (678,24∙100)/360000 = 0,1884 ≈ 0,19 % (что в 1,9 раза превышает минимально допустимое значение, то есть схема армирования ленточного фундамента выбрана нами правильно).
Расчет количества продольных прутьев
Для того чтобы определить сколько стандартных продольных прутьев (6 м) нам необходимо, воспользуемся следующими величинами:
- L – длина фундамента (8000 мм);
- W – ширина фундамента (5000 мм);
- P – периметр;
- N – количество продольных элементов (в нашем случае 6 штук);
- X – общая протяженность продольных прутьев.
P = (L+ W)∙2 = (8000 + 5000)∙2 = 26000 мм = 26 м
X = P∙N = 26∙6 = 156 м
К полученной величине необходимо добавить 20 % (материал для изготовления Г-образных или П-образных элементов для правильного армирования углов и обеспечения достаточного нахлеста при стыковке элементов).
Xдоп = X∙0,2 = 156∙0,2 = 31,2 м
Окончательная общая длина продольного арматурного прутка:
Xок = X + Xдоп = 156 + 31,2 = 187,2 м
Стандартная длина арматурного прутка составляет 6 м. Осталось посчитать, сколько таких прутков необходимо: Xок/6 = 187,2/6 = 31,2 ≈ 32 штуки.
Армирование подушки фундамента. Устройство подушки своими руками
До того, как сделать подушку для фундамента, необходимо тщательно продумать все этапы работ, определиться с материалом. Подушка может быть выполнена из песка, гравия, смеси этих двух материалов, а также монолитного/сборного бетона.
Для выравнивания дна котлована/траншеи засыпают песок или гравий слоем в 10 сантиметров. Бетонирование актуально там, где есть необходимость расширения основы либо армирования пояса под укладку ФСБ блоков. Самостоятельно выполнить все работы несложно, нужно лишь помнить о некоторых нюансах.
Как делать подушку под фундамент:
- Насыпь песчаной подложки должна быть ниже фундамента, ширина – превосходить в 2 раза аналогичный параметр основания. Для выравнивания подсыпка щебеночная выполняется слоем 30 сантиметров таким образом: треть песка и 2/3 гравия.
- После выравнивания дна ямы делают подушку – сначала укладывают слой песка, проливают водой, тщательно и долго трамбуют. Так же кладут гравий.
- Если выполняется бетонная подушка под фундамент, работы проводятся так: на ровную площадку засыпают щебень слоем до 10 сантиметров, трамбуют. Потом сооружают опалубку по нужным параметрам конструкции, усиляют армированием (горизонтальным и вертикальным, которое связывает фундамент со стенами), заливают бетонный раствор.
- Для щебневой подушки дно котлована или траншеи засыпают таким образом, чтобы готовое основание доходило до уровня в проекте.
Самым прочным, надежным и долговечным вариантом считается монолитная бетонная подушка под ленточный фундамент. Несмотря на некоторые сложности и длительность процесса, залить все самостоятельно вполне реально.
Толщина подушки в таком случае должна быть больше на 30 сантиметров, чем основание, и шире тоже на 30 сантиметров (с обеих сторон по 15 сантиметров).