Шаг армирования ленточных фундаментов. Ленточный фундамент: тонкости армирования
- Шаг армирования ленточных фундаментов. Ленточный фундамент: тонкости армирования
- Армирование ленточного фундамента гост. Технические условия
- Армирование фундамента чертеж. Особенности чертежа ленточного фундамента
- Расстояние между арматурой в ленточном фундаменте. Шаг установки
- Шаг поперечной арматуры в ленточном фундаменте. Расчеты
- Армирование углов ленточного фундамента. Как правильно сделать армирование
- Шаг хомутов в ленточном фундаменте. Пример расчета армирования фундамента
- Армирование ленточного фундамента снип. Схема армирования и технология строительства основания
Шаг армирования ленточных фундаментов. Ленточный фундамент: тонкости армирования
Монолитный ленточный фундамент армируют не только по стенам конструкции. В основание фундамента на песчаную подушку укладывают армирующую сетку, а затем – опалубку, камни, гравий, битый кирпич, а затем заливают все эту смесь бетоном.

Армированный монолитный фундамент очень сильно противостоит пучению почвы. Если такой армированный фундамент заложить ниже точки замерзания, то можно ожидать постройки прочного и долговечного фундамента.Если стенки фундамента выше 50 сантиметров, тогда они будут испытывать мощную одностороннюю боковую нагрузку грунта и потому такие фундаменты обязательно устраиваются с армированием.
Когда ленточный фундамент содержит полный каркас армирования, то арматуру нельзя прямо присоединять к открытому грунту и элементами опалубки. Это может спровоцировать появление ржавчины, что небезопасно для стальных конструкций арматуры, которая может вследствие этого прогнить и рассыпаться. Безопасный слой для защиты каркаса должен составлять не менее 45-75 сантиметров.

Углы армирования фундамента – это особое внимание строителей. Именно угловые конструкции испытывают усиленное напряжение. Для создания угловых изгибов необходимо на месте создания каркаса гнуть проволочные углы.Если армирование будет проводиться простым схватыванием проволокой прямых арматурных стальных прутков, тогда прочность конструкции будет на порядки ниже, и она не сможет стать монолитным каркасом. Фактически в таком случае можно получить, рассматривая ситуацию с инженерной точки зрения, несколько отдельных балок, а не общую монолитную армированную массу. Это резко снижает возможность сопротивления конструкции фундамента не только сжатию, но и самому опасному напряжению для бетонных сооружений - растяжению, боковым усилиям.
Если армирование проводится для тупого угла фундамента, тогда конструкция каркаса арматуры усиливается дополнительным сцеплением с внешней армирующей конструкцией, а также установкой хомутов в поперечном изготовлении.
Армирование ленточного фундамента гост. Технические условия
Издание официальное
Москва Российский институт стандартизации 2022
Предисловие
Цели, основные принципы и общие правила проведения работ по межгосударственной стандартизации установлены ГОСТ 1.0 «Межгосударственная система стандартизации. Основные положения» и ГОСТ 1.2 «Межгосударственная система стандартизации. Стандарты межгосударственные, правила и рекомендации по межгосударственной стандартизации. Правила разработки, принятия, обновления и отмены»
Сведения о стандарте
1 РАЗРАБОТАН Научно-исследовательским, проектно-конструкторским и технологическим институтом бетона и железобетона им. А. А. Гвоздева (НИИЖБ им. А. А. Гвоздева) — структурным подразделением Акционерного общества «Научно-исследовательский центр «Строительство» (АО «НИЦ « Строител ьство»)
2 ВНЕСЕН Техническим комитетом по стандартизации ТК465 «Строительство»
3 ПРИНЯТ Межгосударственным советом по стандартизации, метрологии и сертификации (протокол от 9 декабря 2021 г. № 60)
Краткое наименование страны по МК (ИСО 3166) 004—97 | Код страны по МК (ИСО 3166) 004—97 | Сокращенное наименование национального органа по стандартизации |
Армения | АМ | ЗАО «Национальный орган по стандартизации и метрологии» Республики Армения |
Киргизия | KG | Кыргызстандарт |
Россия | RU | Госстандарт |
Узбекистан | UZ | Узстандарт |
4 Приказом Федерального агентства по техническому регулированию и метрологии от 16 декабря 2021 г. № 1794-ст межгосударственный стандарт ГОСТ 13580—2021 введен в действие в качестве национального стандарта Российской Федерации с 1 сентября 2022 г.
5 ВЗАМЕН ГОСТ 13580—85
Информация о введении в действие (прекращении действия) настоящего стандарта и изменений к нему на территории указанных выше государств публикуется в указателях национальных стандартов, издаваемых в этих государствах, а также в сети Интернет на сайтах соответствующих национальных органов по стандартизации.
В случае пересмотра, изменения или отмены настоящего стандарта соответствующая информация будет опубликована на официальном интернет-сайте Межгосударственного совета по стандартизации, метрологии и сертификации в каталоге «Межгосударственные стандарты».
В Российской Федерации настоящий стандарт не может быть полностью или частично воспроизведен, тиражирован и распространен в качестве официального издания без разрешения Федерального агентства по техническому регулированию и метрологии
1 Область применения
2 Нормативные ссылки
3 Термины и определения
4 Условные обозначения
5 Форма и основные размеры
6 Технические требования
7 Правила приемки
8 Методы контроля
9 Маркировка, транспортирование и хранение
МЕЖГОСУДАРСТВЕННЫЙ СТАНДАРТ
ПЛИТЫ ЖЕЛЕЗОБЕТОННЫЕ ЛЕНТОЧНЫХ ФУНДАМЕНТОВ
Технические условия
Reinforced concrete slabs for strip foundations. Specifications
1 Область применения
Настоящий стандарт распространяется на железобетонные сборные плиты из тяжелого бетона для ленточных фундаментов зданий и сооружений и устанавливает требования к их изготовлению.
Армирование фундамента чертеж. Особенности чертежа ленточного фундамента
Ленточное основание представляет собой бетонную ленту, которая проходит по всему периметру будущей постройки. Оно чаще всего используется в дачном строительстве, так как позволяет в короткий срок возвести фундамент на любом типе грунта. Такой тип фундамента является универсальным.
Ленточное основание может использоваться:
- для зданий из бетона кирпича и камня;
- для построек с тяжелым перекрытием (сборных железобетонных или монолитных, металлических);
- если участок состоит из разного типа грунта (например, одна часть — песок, а другая – пучинистые суглинки);
- если запланирован в здании цокольный этаж или подвальное помещение.
Ленточные фундаменты популярны среди частных домостроителей в силу своей технологической простоты исполнения
Ленточные фундаменты подразделяются на: сборные, монолитные, бутовые .
На этапе планирования необходимо правильно выбрать необходимые элементы для армировки и их количество. Поэтому рекомендуется составить подробный чертеж будущего фундамента с выбранной схемой . Если допустить ошибку на этапе проектирования (сэкономив строительный материал, неправильно спроектировав конструкцию, выполнив неточно чертеж), это может привести впоследствии к отрицательным последствиям.
Чаще всего сталкиваются с такими проблемами, возникающими из-за неправильно выполненного чертежа:
- перекос;
- недостаточное количество материала;
- деформации разного рода;
- неравномерные осадки;
- появление трещин и т.д.
Расчет количества элементов, правильно выполненный чертеж и следование ему на всех этапах позволит возвести прочную и долговечную конструкцию. Для того, чтобы выполнить расчет количества арматуры ленточного фундамента проще всего воспользоваться онлайн калькулятором или специальной программой.
Расстояние между арматурой в ленточном фундаменте. Шаг установки
Для всех этих параметров тоже есть методики и формулы. Но для небольших строений поступают проще. По рекомендациям стандарта расстояние между горизонтальными ветками не должно быть больше 40 см. На этот параметр и ориентируются.
Как определить на каком расстоянии укладывать арматуру? Чтобы сталь не подвергалась коррозии, она должна находится в толще бетона. Минимальное расстояние от края — 5 см. Исходя из этого, и рассчитывают расстояние между прутками: и по вертикали и по горизонтали оно на 10 см меньше габаритов ленты. Если ширина фундамента 45 см, получается, что между двумя нитками будет расстояние 35 см (45 см — 10 см = 35 см), что соответствует нормативу (меньше 40 см).

Шаг армирования ленточного фундамента — это расстояние между двумя продольными прутками
Если лента у нас 80*30 см, то продольная арматура находится одна от другой на расстоянии 20 см (30 см — 10 см). Так как для фундаментов среднего заложения (высотой до 80 см) требуется два пояса армирования, то один пояс от другого располагается на высоте 70 см (80 см — 10 см).
Теперь о том, как часто ставить перемычки. Этот норматив тоже есть в СНиПе: шаг установки вертикальных и горизонтальных перевязок должен быть не более 300 мм.
Все. Армирование ленточного фундамента своими руками рассчитали. Но учтите, что ни масса дома, ни геологические условия не учитывались. Мы основывались на том, что на этих параметрах основывались при определении размеров ленты.
Шаг поперечной арматуры в ленточном фундаменте. Расчеты
Определение количества свай и их длины производится по данным расчетной документации. Для участков с достаточно устойчивым грунтом достаточно опор длиной 2500 мм. При возведении объекта на неровном рельефе высота опоры учитывает перепады высоты почвы. При строительстве на сильно подвижных грунтах высота опоры должна быть такой, чтобы она достигала твердых слоев грунта плюс 15-20 см.
Рассчитать количество столбов можно, сложив все нагрузки, приходящиеся на фундамент. Для этого следует вычислить нагрузку (вес) 1 м3 стенового материала и умножить этот показатель на количество кубов всего помещения. Этот коэффициент суммируют с весом пола, перекрытий, окон и дверей, кровли, а также внутреннего оснащения (мебели, отделочных материалов, техники, коммуникаций).
Далее коэффициент нагрузок умножается на коэффициент надежности (это постоянная величина по СНиПу). Полученное число следует разделить на значение несущей способности одной опоры.


Расстояние между столбами выдерживается в пределах 100-250 см. Чем более тяжелым является объект, тем меньшее расстояние сохраняется между опорами. Увеличивать шаг более чем на 250 см не рекомендовано, поскольку в таком случае снижается прочность готовой постройки.
Для деревянных построек рекомендуется ставить столбы с шагом 3 м, в сооружениях из пенно- и газобетона – 2 м. Для кирпичных домов этот показатель равен 1,5-1,7 м. Иначе говоря, фундамент под дом из пеноблоков размерами 9х8 м в среднем требует как минимум 16 столбов, а деревянный аналог такого же размера – 12-14 опор.

Армирование углов ленточного фундамента. Как правильно сделать армирование
Чтобы армирование было сделано по всем правилам, необходимо выполнять следующие требования:
- Расстояние между продольными поясами арматуры не должно превышать 50 см. Количество поясов зависит от высоты фундамента.
- Вертикальные и поперечные прутки арматуры (то есть поперечные пояса) устанавливаются с шагом 30 см согласно рекомендациям СНиП-а, но на практике часто делают шаг 50 см. Иногда поперечный пояс выполняют в виде прямоугольного хомута.
- От каждого угла в обе стороны надо установить по 3-4 поперечных пояса с шагом 0,5 от основного.
- От места примыкания в каждую сторону также необходимо сделать по 3-4 поперечных пояса с шагом 0,5 от основного.
- Выбор диаметра основной продольной арматуры зависит от нагрузки на фундамент, то есть чем больше нагрузка, тем толще арматура.
- Для вязки каркаса применяется только специальная проволока.
- Для того чтобы после заливки раствора вокруг металлического каркаса с каждой стороны образовался защитный слой из бетона толщиной 50 мм, необходимо установить специальные приспособления: снизу каркаса «стульчики» или «лягушки», а с боков – «звездочки».
- Армировать углы каркаса необходимо, только применяя специальные усиливающие конструкцию схемы, а не простым вязанием внахлест перпендикулярных прутьев арматуры.
- Прямые участки каркаса желательно выполнять цельными кусками арматуры (стандартная заводская длина 11,7 м).
- При стыковке продольных арматурных элементов необходимо строго соблюдать размеры нахлеста одного прутка на другой (для бетона марки М200 – 50 диаметров арматуры, для М250 – 40 диаметров, для М300 – 35 диаметров).
- Недопустима стыковка продольных прутков арматуры в одном и том же месте по вертикали (разнос должен составлять не менее 60 см или 1,5 длины нахлеста).
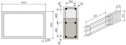
Шаг хомутов в ленточном фундаменте. Пример расчета армирования фундамента
Попробуем рассчитать, сколько потребуется материалов для обустройства армирования конкретного ленточного фундамента с чертежами. Допустим, мы строим из строительных блоков (шириной 0,4 м) небольшой загородный дом с габаритными (внешними) размерами 5×8 м. Характер почвы на нашем участке позволяет сделать высоту полосы 0,9 м, ее ширину 0,4 м, что соответствует ширине строительного материала стен. В арматурном каркасе для ленточного фундамента будем использовать продольные рабочие прутья диаметром 12 мм и □-образные поперечные хомуты, изготовленные из прутков диаметром 8 мм.
Армирование мелкозаглубленного ленточного фундамента:

На фото видно, что расстояние между рабочими продольными прутьями (0,4 м) и шаг □-образных поперечных хомутов (0,5 м) выбраны в соответствии с требованиями нормативных документов.
Проверяем относительное содержание продольных рабочих прутков в нашей железобетонной конструкции. Для этого воспользуемся следующими терминами и обозначениями:
- h – высота фундамента (900 мм);
- w – ширина фундамента (400 мм);
- Sₒ – площадь поперечного сечения фундамента;
- Sₐ – суммарная площадь поперечных сечений продольных прутьев (6 штук);
- r – радиус продольного прутка (6 мм), который равен d/2, где d – диаметр прутка (в нашем случае d=12 мм);
- D – относительное содержание рабочих прутков в «теле» фундамента.
Sₒ = h∙w = 900∙400 = 360000 мм²
Sₐ = 6∙π∙r² = 6∙3,14∙6² = 678,24 мм²
D = (Sₐ∙100)/ Sₒ = (678,24∙100)/360000 = 0,1884 ≈ 0,19 % (что в 1,9 раза превышает минимально допустимое значение, то есть схема армирования ленточного фундамента выбрана нами правильно).
Расчет количества продольных прутьев
Для того чтобы определить сколько стандартных продольных прутьев (6 м) нам необходимо, воспользуемся следующими величинами:
- L – длина фундамента (8000 мм);
- W – ширина фундамента (5000 мм);
- P – периметр;
- N – количество продольных элементов (в нашем случае 6 штук);
- X – общая протяженность продольных прутьев.
P = (L+ W)∙2 = (8000 + 5000)∙2 = 26000 мм = 26 м
X = P∙N = 26∙6 = 156 м
К полученной величине необходимо добавить 20 % (материал для изготовления Г-образных или П-образных элементов для правильного армирования углов и обеспечения достаточного нахлеста при стыковке элементов).
Xдоп = X∙0,2 = 156∙0,2 = 31,2 м
Окончательная общая длина продольного арматурного прутка:
Xок = X + Xдоп = 156 + 31,2 = 187,2 м
Стандартная длина арматурного прутка составляет 6 м. Осталось посчитать, сколько таких прутков необходимо: Xок/6 = 187,2/6 = 31,2 ≈ 32 штуки.

Армирование ленточного фундамента снип. Схема армирования и технология строительства основания
Армирование бетонной формы основания проводится в два яруса – верхним и нижним рядами арматуры с поперечным и продольным усилением дополнительными прутьями. Для формирования прочного, но гибкого армокаркаса применяют арматурные прутья категории А III – это стальной профиль круглого сечения Ø 10-16 мм, имеющий два продольных ребра жесткости и поперечные грани, отлитые по спирали.
При общей высоте основания ≥ 0,15 м в каркас необходимо встраивать вертикальные стержни арматуры, что делается методом связывания при помощи мягкой вязальной проволоки (СНиП 52-01-2003 и СП 52-101-2003).
Для вертикального усиления каркаса применяют арматуру класса А I – это гладкая арматура Ø 6-8 мм.
Чтобы компенсировать продольные нагрузки в теле бетонного ленточного фундамента, каркас усиливается поперечной арматурой, которая предотвращает образование микротрещин и скрепляет друг с другом продольные ярусы армирующего каркаса основания.Онлайн калькулятор для расчета арматурыСогласно указанным СНиП, вертикальная и поперечная арматура связывается в единую конструкцию стальными хомутами, расстояние между которыми соблюдается как 3/8 от высоты ленточного фундамента, и должно быть ≥ 0,25 м.
Также армирующий каркас в соответствии со снип фундаменты ленточные не должен собираться из поврежденных или ржавых стержней – арматура должна быть ровной и порезанной по расчетным размерам.
Отдельные арматурные прутья также соединяются между собой при помощи мягкой или отожженной вязальной проволоки и вязального крючка. Применять сварочное оборудование разрешено только для соединения прутьев с мариковкой «С».
Армирование ленточных оснований
Правила связывания армирующего каркаса должны соблюдаться неукоснительно, иначе не получится добиться требуемой жесткости каркаса. Связывание углов и присоединений каркаса предотвращает разрушающее воздействие локальных нагрузок на фундамент. Для угловых примыканий используются арматурные прутья класса А III.
Основные рекомендации при соединении углов армокаркаса:
- Прут необходимо согнуть в таким образом, чтобы один его конец входил в стену основания, второй конец входил в противоположную стену;
- Запускать стержень арматуры на противоположную стену следует на длину сорока диаметров прута;
- Не разрешается применять простое связывание пересечений арматуры без из усиления дополнительными вертикальными и поперечными отрезками арматуры;
- При длине прута, не позволяющей загнуть его на противоположную стену фундамента, арматура соединяется Г-образными металлическими профилями;
- Шаг между соединительными хомутами выбирается в два раза короче, чем в ленте.