Схема связки углов арматуры ленточного фундамента. Как правильно сделать армирование
- Схема связки углов арматуры ленточного фундамента. Как правильно сделать армирование
- Армирование углов армопояса. Как сделать армирование армопояса дома без проблем?
- Шаг поперечной арматуры в ленточном фундаменте. Схема
- Армирование фундамента чертеж. Как делать вязку арматуры под ленточный фундамент
- Схема армирования ленточного фундамента.
- Армирование углов фундамента снип. Армирование углов ленточного фундамента
- Армирование ленточного фундамента гост. Технические условия
- Арматурный каркас для ленточного фундамента расчет. Какую арматуру выбрать?
Схема связки углов арматуры ленточного фундамента. Как правильно сделать армирование
Чтобы армирование было сделано по всем правилам, необходимо выполнять следующие требования:
- Расстояние между продольными поясами арматуры не должно превышать 50 см. Количество поясов зависит от высоты фундамента.
- Вертикальные и поперечные прутки арматуры (то есть поперечные пояса) устанавливаются с шагом 30 см согласно рекомендациям СНиП-а, но на практике часто делают шаг 50 см. Иногда поперечный пояс выполняют в виде прямоугольного хомута.
- От каждого угла в обе стороны надо установить по 3-4 поперечных пояса с шагом 0,5 от основного.
- От места примыкания в каждую сторону также необходимо сделать по 3-4 поперечных пояса с шагом 0,5 от основного.
- Выбор диаметра основной продольной арматуры зависит от нагрузки на фундамент, то есть чем больше нагрузка, тем толще арматура.
- Для вязки каркаса применяется только специальная проволока.
- Для того чтобы после заливки раствора вокруг металлического каркаса с каждой стороны образовался защитный слой из бетона толщиной 50 мм, необходимо установить специальные приспособления: снизу каркаса «стульчики» или «лягушки», а с боков – «звездочки».
- Армировать углы каркаса необходимо, только применяя специальные усиливающие конструкцию схемы, а не простым вязанием внахлест перпендикулярных прутьев арматуры.
- Прямые участки каркаса желательно выполнять цельными кусками арматуры (стандартная заводская длина 11,7 м).
- При стыковке продольных арматурных элементов необходимо строго соблюдать размеры нахлеста одного прутка на другой (для бетона марки М200 – 50 диаметров арматуры, для М250 – 40 диаметров, для М300 – 35 диаметров).
- Недопустима стыковка продольных прутков арматуры в одном и том же месте по вертикали (разнос должен составлять не менее 60 см или 1,5 длины нахлеста).
Армирование углов армопояса. Как сделать армирование армопояса дома без проблем?
Армированный пояс — строительная железобетонная конструкция, которая устанавливается по периметру несущих стен для укрепления.
Прочность армопояса повышается за счет установки в опалубку армокаркаса и заливкой его бетоном марки М 200/М 250.
Как доказывает практика эксплуатации таких стеновых конструкций, благодаря армопоясу они становятся очень прочными и не подвергаются разрушению даже в процессе движения или проседания грунта.
Из-за таких прочностных характеристик эту конструкцию еще называют сейсмопоясом и разгрузочным поясом.
Для того чтобы армированный пояс получился качественным, а дом надежным, застройщик должен правильно подобрать арматуру и закладные детали, соблюсти схему вязки каркаса и выполнить профессионально его укладку в опалубку.
выполняют в обязательном порядке для домовладений, возведенных из блоков, созданных на базе легких бетонов . В таком случае он способен принять на себя неравномерное распределение нагрузок, таким образом, сохраняя стеновые конструкции от разрывов.
Это объясняется тем, что бетон в усиливающем поясе на порядок устойчивее к сжимающим нагрузкам, чем легкие блоки.
А интегрированная в его тело арматура дополнительно противодействует разрушению , которое может возникать при растягивающей нагрузке.
Вследствие функционирования тандема из этих 2-х материалов, армопояс на блочных стенах способен удержать намного большие напряжения, чем нормативные.
Сейсмопояс образует нужное ребро жесткости в газосиликатной стене и тем самым препятствует ее разрушению.
Армопояс в обязательном порядке устанавливают перед укладкой плит перекрытий и мауэрлата. В последнем случае стена защищена от точечных перенапряжений в стеновых блоках, возникающих при строительстве стропильной системы кровли, которые способствуют образованию трещин и сколов.
Это также возможно, если анкера мауэрлата будут напрямую подсоединены к внешней стенке. При устройстве системы висячих стропил, защитный пояс также выступает в качестве распорной конструкции , распределяющей кровельную нагрузку на все здание.
Основным требованием, которое предъявляется к устройству армированной защитной полосы ее неразрывность по контуру, что обеспечивается созданием железобетонной конструкции с использованием сплошной опалубки и армированного каркаса и одномоментной заливкой бетонного раствора.
Какую арматуру использовать?
Армирование железобетонного защитного пояса происходит с помощью железных прутков Д=8-12 мм. Они имеют ребристую поверхность, что усиливает их сцепление со строительным бетоном и, соответственно, повышает прочность защитной конструкции на растяжение.
Прутки без насечек используются только для поперечных компоновок.
Арматуру связывают в каркас вязальной проволокой, с нахлестом на прямолинейных участках не меньше 300 мм, а по углам — 500 мм.
Толщина вязальной проволоки не влияет на прочность каркаса, а очень толстая просто затрудняет выполнение работ.
При установке каркаса нужно позаботиться о том, чтобы он располагался с промежутком минимум на 30-50 мм, для этого используют специализированные подставки или подкладывают кусочки кирпича.
Для армирования самыми популярными исходными материалами являются :
- Арматура A-III, A-400 с ребристой формой для продольной/ поперечной установки.
- Арматура А500С по современному обозначению — S500. Это горячекатаная модифицированная арматура производится на замену класса A400, упрочненная термомеханически, соответствует ГОСТ Р 52544, изданного 2006 г. Обладает высочайшими показателями по прочности и гибкости, выпускается с диаметрами Д= 4 — 40 мм.
- А240 или по современному обозначению — S240. Это горячекатаная арматура с гладкой поверхностью, производится из стали Ст3кп/3пс/3сп, с диаметром Д= 6 — 40 мм. При диаметрах до 12 мм такая арматура упаковывается в мотки, при больших диаметрах — выпускается только в прутках.
- Хомуты в качестве поперечной конструкции монтируются в ленту шириной 150 мм. Служат для предотвращения развития процесса трещинообразования в бетоне и фиксации продольных элементов согласно проекту, удерживая их от бокового выпучивания при влиянии сдавливающих нагрузок. Хомуты монтируют с шагом до 15Д от продольных прутков, но не выше 500 мм.
- Стеклопластиковая модификация арматуры АСП — производится из стекловолокна и термореактивных смоловых компонентов. Первый компонент обеспечивает высочайшие прочностные характеристики, а второй является связующим элементом. В результате предел разрушающего воздействия выше чем у стальной арматуры в 2.5 раза.
- Базальтопластиковая модификации АБП — выпускается из базальтовых волокон и смоляных компонентов. В результате базальтовая арматура имеет не только отличные прочностные характеристики, но и высокую антикоррозионную стойкость в агрессивных средах.
- Фибра для стяжек. Выполняется из большого числа нитей разнообразной длины, и материала: базальт, металл, стекло и полипропилен.
Шаг поперечной арматуры в ленточном фундаменте. Схема
Схема армирования ленточного фундамента – это точное расположение в пространстве продольных, вертикальных и поперечных стержней, собранных в одну конструкцию. Чтобы было понятно, рассмотрим классическую схему, как самую простую. Вот она показана на фото ниже.В СНиПе под номером 52 — 01 — 2003 четко оговаривается, как проводят укладку арматуры в ленточный фундамент, с каким шагом в поперечном и продольном направлении.
Вот несколько позиций из этого документа.
- Шаг укладки стержней зависит от диаметра арматуры для ленточного фундамента, размеров гранул щебня, способа укладки бетонного раствора и его уплотнения.
- Шаг рабочего армирования – это расстояние, равное двум высотам сечения армирующей ленты, но не более 400 мм.
- Поперечное армирование – это расстояние между прутками не более половины ширины сечения, но не более 300 мм.
Еще раз обратите внимание на фотографию. Размеры самой конструкции – это не размеры фундаментной ленты. Все дело в том, что каркас должен располагаться внутри тела фундамента, поэтому тем же СНиП четко оговорено, что расстояние от краев плоскостей фундаментной ленты до арматуры не должно быть меньше 5 см.
Именно этот размерный показатель берется за основу , когда рассчитываются размеры сечения каркасной системы. К примеру, если ширина фундамента равна 50 см, то длина поперечных элементов каркаса будет равна 40 см. Если глубина заложения равна 1 м, то вертикальные прутки подрезаются в длину по 90 см. Это максимальные показатели длин, они могут быть меньше.
По чертежам армирования ленточного фундамента легко можно обозначить габаритные размеры конструкции. Но надо правильно расположить каркас внутри траншеи и опалубки. С боков будет видно, как располагать, на каком расстоянии от поверхностей опалубки. Сложнее с дном траншеи. Поэтому на дно устанавливаются подпорки высотою 5 — 10 см, на которые армокаркас и укладывается.
Армирование углов ленточного фундамента – это отдельная тема, ведь углы нагружаются больше всего. Поэтому здесь проводится усиление конструкции разными способами. К примеру, дополнительно укладываются в горизонтальной плоскости хомуты из арматуры, скрепляемые с каркасом проволокой.
Второй вариант – сделать выпуск стержней каждой конструкции, расположенной в отдельных смежных траншеях, и согнуть их под прямым углом, чтобы завести в соседние траншеи для скрепления с соседним арматурным каркасом. Есть и другие способы.
Армирование фундамента чертеж. Как делать вязку арматуры под ленточный фундамент
Фундамент – это основа всего строения, гарант его долговечности и прочности. Армирование ленточного фундамента, чертежи и схемы должны быть подготовлены и рассчитаны заблаговременно.
Необходимость армирования
Фундамент представляет собой монолитную железобетонную конструкцию. Сам бетон – материал, который выдерживает значительные нагрузки только на сжатие. Чтобы увеличить прочность фундамента на растяжение и изгиб, необходимо изготовить металлический каркас. Причем показатели прочности увеличиваются только за счет обустройства рабочих продольных прутьев. Поэтому в качестве их используют толстые профилированные прутки диаметром 10÷14 мм. Поперечные элементы предназначены для создания пространственной геометрии фундамента, они не позволяют продольным пруткам смещаться при заливке бетонного раствора, и удерживают их в нужном месте. Для этих целей можно использовать гладкие или профилированные прутки диаметром 6÷9 мм.

Требования нормативных документов к материалам для армирования
Как правильно армировать ленточный фундамент, можно узнать, ознакомившись с нормативными документами. Требования, которые необходимо соблюдать при армировании монолитного ленточного железобетонного фундамента, изложены в СНиП 52-01-2003 .
Разновидности стальных прутьев, рекомендованных для армирования:
- горячекатаные гладкие или профилированные (Ø=3÷80 мм);
- термомеханически упрочненные профилированные (Ø=6÷40 мм);
- холоднокатаные профилированные или гладкие (Ø=3÷12 мм).

Важно! По сравнению с гладкими, профилированные прутья имеют лучшее сцепление с бетоном: это позволяет значительно увеличить надежность конструкции.
Требования к расположению прутьев в армокаркасе для ленточного фундамента:
- расстояние между продольными стержнями должно быть не более 0,4 м;
- шаг поперечных фиксирующих элементов должен составлять не более 0,5 м.
Минимальное относительное содержание рабочих продольных прутьев в железобетонном элементе должно составлять не менее 0,1 %.
Для вязки элементов железобетонной конструкции должна применяться только специальная стальная обожженная проволока (Ø=0,8÷1,2 мм).
Пример расчета армирования фундамента
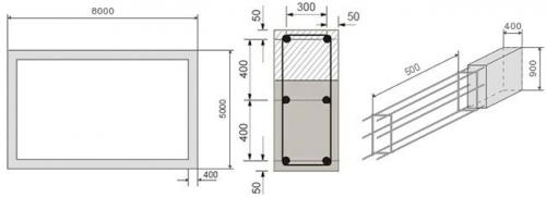
Попробуем рассчитать, сколько потребуется материалов для обустройства армирования конкретного ленточного фундамента с чертежами. Допустим, мы строим из строительных блоков (шириной 0,4 м) небольшой загородный дом с габаритными (внешними) размерами 5×8 м. Характер почвы на нашем участке позволяет сделать высоту полосы 0,9 м, ее ширину 0,4 м, что соответствует ширине строительного материала стен. В арматурном каркасе для ленточного фундамента будем использовать продольные рабочие прутья диаметром 12 мм и □-образные поперечные хомуты, изготовленные из прутков диаметром 8 мм.
Армирование мелкозаглубленного ленточного фундамента:

На фото видно, что расстояние между рабочими продольными прутьями (0,4 м) и шаг □-образных поперечных хомутов (0,5 м) выбраны в соответствии с требованиями нормативных документов.
Проверяем относительное содержание продольных рабочих прутков в нашей железобетонной конструкции. Для этого воспользуемся следующими терминами и обозначениями:
- h – высота фундамента (900 мм);
- w – ширина фундамента (400 мм);
- Sₒ – площадь поперечного сечения фундамента;
- Sₐ – суммарная площадь поперечных сечений продольных прутьев (6 штук);
- r – радиус продольного прутка (6 мм), который равен d/2, где d – диаметр прутка (в нашем случае d=12 мм);
- D – относительное содержание рабочих прутков в «теле» фундамента.
Sₒ = h∙w = 900∙400 = 360000 мм²
Sₐ = 6∙π∙r² = 6∙3,14∙6² = 678,24 мм²
D = (Sₐ∙100)/ Sₒ = (678,24∙100)/360000 = 0,1884 ≈ 0,19 % (что в 1,9 раза превышает минимально допустимое значение, то есть схема армирования ленточного фундамента выбрана нами правильно).
Расчет количества продольных прутьев
Для того чтобы определить сколько стандартных продольных прутьев (6 м) нам необходимо, воспользуемся следующими величинами:
- L – длина фундамента (8000 мм);
- W – ширина фундамента (5000 мм);
- P – периметр;
- N – количество продольных элементов (в нашем случае 6 штук);
- X – общая протяженность продольных прутьев.
P = (L+ W)∙2 = (8000 + 5000)∙2 = 26000 мм = 26 м
X = P∙N = 26∙6 = 156 м
К полученной величине необходимо добавить 20 % (материал для изготовления Г-образных или П-образных элементов для правильного армирования углов и обеспечения достаточного нахлеста при стыковке элементов).
Xдоп = X∙0,2 = 156∙0,2 = 31,2 м
Окончательная общая длина продольного арматурного прутка:
Xок = X + Xдоп = 156 + 31,2 = 187,2 м
Стандартная длина арматурного прутка составляет 6 м. Осталось посчитать, сколько таких прутков необходимо: Xок/6 = 187,2/6 = 31,2 ≈ 32 штуки.

Схема армирования ленточного фундамента.
представляет собой сплошную бетонную опору, размещенную под всеми несущими стенами дома.
Конструкция подобных оснований достаточно проста.
Степень прочности, устойчивости к возникающим нагрузкам и несущая способность образуют оптимальное сочетание, позволяющее использовать ленточный тип фундамента в большинстве построек.
С некоторыми дополнениями этот вид способен служить на разных видах грунта и в относительно неблагоприятных геологических условиях.
Основным элементом конструкции является арматурный каркас, обеспечивающий прочность ленты и устойчивость к напряжениям.
Бетон является специфическим материалом. Он способен без видимых последствий выдерживать значительное давление, но разнонаправленные, растягивающие нагрузки переносит с большим трудом.
Бетонный блок, являющийся монолитной отливкой без дополнительных усиливающих элементов, способен выдерживать только равномерную сдавливающую нагрузку.
Если усилие будет приложено в центральной части, а края блока окажутся зафиксированы, он переломится при относительно небольшой нагрузке. Использовать его в таком виде в качестве основания для строительного объекта невозможно.
Проблема решается с помощью армирующего каркаса, помещаемого внутрь блока перед отливкой.
Армирование ленточных оснований является необходимым и обязательным условием, предписываемым требованиями СНиП 52-01-2003. Регламентируются все рабочие моменты создания железобетонных конструкций — состав бетона, размеры и материал арматуры, тип конструкции каркаса, способ сборки и прочие вопросы.
Соблюдение норм СНиП обязательно для всех строителей, поскольку только таким образом можно обеспечить надежность постройки и безопасность людей.

Как работает арматура
Арматурные стержни способны переносить растягивающие нагрузки примерно в 10 раз больше, чем бетон. Будучи установленными внутрь отливки, они принимают на себя растягивающие нагрузки, не позволяя появиться трещинам, усиливая и укрепляя бетонную ленту.
Арматурный каркас представляет собой пространственную решетку, состоящую из несущих и вспомогательных стержней. Если сама лента в сечении представляет собой прямоугольник, то каркас в сечении образует подобную фигуру, но несколько уменьшенную.
Если на ленту воздействует изгибающая нагрузка, то начинают работать те стержни, которые расположены со стороны, противоположной точке приложения усилия. Они не позволяют ленте изменить форму, принимая на себя внешние воздействия.
ОБРАТИТЕ ВНИМАНИЕ!
Для особо ответственных конструкций используют напрягаемые стержни, которые перед заливкой бетона натягиваются, а после затвердения массива освобождаются. Такие основания способны работать в сложных условиях, но для частного домостроения не используются.
Основными элементами являются горизонтальные стержни — несущие, или рабочие. Вертикальные элементы служат для поддержки рабочей арматуры и в большинстве нужны лишь до момента заливки. После нее рабочие функции выполняют только угловые элементы, испытывающие дополнительные напряжения и эксплуатационные нагрузки.
Вспомогательная арматура делается из более тонких прутков и нужна для исключения смещения основных элементов при заливке и затвердении.

Как выбрать бетон
Требования СНиП к бетону достаточно жесткие .
Регламентируются все рабочие параметры материала:
- Степень прочности на сжатие и осевое растяжение.
- Морозостойкость.
- Водонепроницаемость.
Для жилых домов малоэтажной кирпичной или подобной застройки оптимальный вариант —М300. При использовании легких ячеистых или пористых материалов (пенобетон, керамзитобетон) допускается применение менее прочного и плотного бетона — марок М200 и даже М150.
Более прочные сорта используются для ответственных или многоэтажных объектов. Например, бетон М400 допускается применять для отливки фундамента по жилые здания высотой до 20 этажей.

Виды арматуры
Существует два вида арматуры :
- Металлическая.
- Композитная.
Первый вид — всем знакомые стальные горячекатаные прутки с насечкой, позволяющей получить надежное сцепление с бетоном. Существуют стержни разного диаметра, от 6 до 80 мм, предназначенные для эксплуатации в соответствующих условиях.
Для вспомогательной арматуры могут быть использованы как рифленые, так и гладкие стержни меньшего диаметра.
Композитная— это целая группа, которая изготавливается из углепластика, базальтопластика и стеклопластика. Последний является наиболее распространенным и доступным вариантом. Он выгоднее металлического аналога с точки зрения стоимости, не поддается коррозии, не реагирует на электрохимические воздействия.
Однако, неспособность сгибаться усложняет сборку каркасов на изгибах или примыканиях, что уменьшает надежность этих узлов и повышает трудоемкость сборки. Диаметры стержней находятся в диапазоне от 3,5 до 48 мм.
ВАЖНО!
Армирование углов фундамента снип. Армирование углов ленточного фундамента
Углы любого здания — места, где соединяются разные вектора нагрузок. Потому так важно выполнить армирование углов правильно. Простое соединение двух прутков тут недопустимо: оно не в состоянии передать и распределить нагрузки. Этот участок требует особого подхода и специальных схем укладки арматуры.
Для правильного их укрепления необходимо использовать гнутые элементы. Желательно чтобы они были продолжением продольных прутков, и «заходили» за угол на 60-70 см (смотрите схему слева).

Правильное армирование углов требует использование гнутых элементов. Простое связывание не даст требуемой прочности
Если длины не хватает, используют отдельные гнутые в виде буквы «Г» элементы — хомуты. Их стороны должны быть не менее 50 диаметров прутков (если используете 12 мм, то стороны должны быть не менее 12 мм* 50 = 600 мм, для 14 мм прутка — 700 мм). Как укладывают арматуру в этом случае, показано на правой схеме.
Обратите внимание, что в углах вертикальные и поперечные пояса нужно ставить в два раза чаще: шаг армирования тут вполовину меньше.
Не меньшего внимания требует и усиление мест, где от основного периметра отходят ленты под внутренние перегородки. Места прилегания этих стен также требуют использования гнутых элементов по тем же правилам. На схеме армирования слева показано, как укладывать прутки при наличии запаса длины, на схеме справа — с использованием отдельного Г-образного хомута.

Места примыкания стен требуют не меньшего внимания
Теперь вы знаете, как правильно уложить арматуру по углам. Следуя этим правилам и реализуя схемы, вы создадите прочное основание, которое выдержит и статическую нагрузку от самого здания, и от сил пучения. И ваше здание никогда не даст трещин по углам, с которыми бороться очень непросто.
Армирование ленточного фундамента гост. Технические условия
Издание официальное
Москва Российский институт стандартизации 2022
Предисловие
Цели, основные принципы и общие правила проведения работ по межгосударственной стандартизации установлены ГОСТ 1.0 «Межгосударственная система стандартизации. Основные положения» и ГОСТ 1.2 «Межгосударственная система стандартизации. Стандарты межгосударственные, правила и рекомендации по межгосударственной стандартизации. Правила разработки, принятия, обновления и отмены»
Сведения о стандарте
1 РАЗРАБОТАН Научно-исследовательским, проектно-конструкторским и технологическим институтом бетона и железобетона им. А. А. Гвоздева (НИИЖБ им. А. А. Гвоздева) — структурным подразделением Акционерного общества «Научно-исследовательский центр «Строительство» (АО «НИЦ « Строител ьство»)
2 ВНЕСЕН Техническим комитетом по стандартизации ТК465 «Строительство»
3 ПРИНЯТ Межгосударственным советом по стандартизации, метрологии и сертификации (протокол от 9 декабря 2021 г. № 60)
Краткое наименование страны по МК (ИСО 3166) 004—97 | Код страны по МК (ИСО 3166) 004—97 | Сокращенное наименование национального органа по стандартизации |
Армения | АМ | ЗАО «Национальный орган по стандартизации и метрологии» Республики Армения |
Киргизия | KG | Кыргызстандарт |
Россия | RU | Госстандарт |
Узбекистан | UZ | Узстандарт |
4 Приказом Федерального агентства по техническому регулированию и метрологии от 16 декабря 2021 г. № 1794-ст межгосударственный стандарт ГОСТ 13580—2021 введен в действие в качестве национального стандарта Российской Федерации с 1 сентября 2022 г.
5 ВЗАМЕН ГОСТ 13580—85
Информация о введении в действие (прекращении действия) настоящего стандарта и изменений к нему на территории указанных выше государств публикуется в указателях национальных стандартов, издаваемых в этих государствах, а также в сети Интернет на сайтах соответствующих национальных органов по стандартизации.
В случае пересмотра, изменения или отмены настоящего стандарта соответствующая информация будет опубликована на официальном интернет-сайте Межгосударственного совета по стандартизации, метрологии и сертификации в каталоге «Межгосударственные стандарты».
В Российской Федерации настоящий стандарт не может быть полностью или частично воспроизведен, тиражирован и распространен в качестве официального издания без разрешения Федерального агентства по техническому регулированию и метрологии
1 Область применения
2 Нормативные ссылки
3 Термины и определения
4 Условные обозначения
5 Форма и основные размеры
6 Технические требования
7 Правила приемки
8 Методы контроля
9 Маркировка, транспортирование и хранение
МЕЖГОСУДАРСТВЕННЫЙ СТАНДАРТ
ПЛИТЫ ЖЕЛЕЗОБЕТОННЫЕ ЛЕНТОЧНЫХ ФУНДАМЕНТОВ
Технические условия
Reinforced concrete slabs for strip foundations. Specifications
1 Область применения
Настоящий стандарт распространяется на железобетонные сборные плиты из тяжелого бетона для ленточных фундаментов зданий и сооружений и устанавливает требования к их изготовлению.
Арматурный каркас для ленточного фундамента расчет. Какую арматуру выбрать?
Для армирования ленточного фундамента применяют рифленую арматуру класса А3 (А400) и А500С , в качестве основных рабочих стержней. Для изготовления конструктивных элементов чаще всего используют гладкую арматуру А1 (А240) , но можно применять и рифленую других классов, главное, чтобы соблюдалось требование по диаметру стержней.

1 -рабочие стержни; 2 – конструктивные элемент.
Сразу отметим, что мы не рекомендуем выполнять армирование ленточного фундамента на расчетах, выполненных самостоятельно. Для точного результата необходимо знать немало данных связанных с возводимым строением, а также математических формул для расчетов диаметра арматуры.
Если же вы, решили самостоятельно подобрать сечение арматуры для армирования фундамента, следует обратить внимание на тот факт, что при использовании слишком тонких прутов, вы можете снизить прочность и несущую способность всего фундамента. Отдавая предпочтение слишком толстым есть вероятность переплаты значительной сумму при закупке строительных материалов.
Поэтому следует придерживаться следующих минимальных рекомендаций по толщине арматуры для ленточного фундамента:
- 10 миллиметров для продольного армирования при длине стороны менее 3 метров.
- 12 миллиметров для продольного армирования при длине стороны свыше 3 метров.
- 6 миллиметров или больше для изготовления конструктивных элементов – «эсок» и хомутов из арматуры .
Приведенные выше параметры являются усредненными. Но в большинстве случаев при строительстве сравнительно небольших построек (гаражи, одно- и двухэтажные деревянные и каркасные дома, бани) прутья такого диаметра прекрасно справляются с нагрузками, обеспечивая надежность и значительный срок службы всей постройки.