Данные об армокаркасе для моего ленточного фундамента. 2 Технология выполнения работ
- Данные об армокаркасе для моего ленточного фундамента. 2 Технология выполнения работ
- Армирование фундамента. Способ укладки
- Армирование заглубленного ленточного фундамента. Правила армирования ленточного фундамента: от выбора арматуры до армирования углов
- Шаг арматуры. Особенности сборки арматурного каркаса
- Армирование ленты фундамента. Правила монтажа армокаркаса по СНиП
- Правила армирования. Все, что нужно знать об армировании бетона
- Шаг хомутов в ленточном фундаменте. Пример расчета армирования фундамента
Данные об армокаркасе для моего ленточного фундамента. 2 Технология выполнения работ
После того, как количество арматуры определено должна быть выбрана схема армирования ленточного фундамента, согласно которой будет собираться армокаркас. Прямые участки конструкции выполняются из цельных прутьев, тогда как на угловых местах необходимо дополнительное усиление выгнутой в П либо Г-образную форму арматурой. Использование перпендикулярного перехлеста отдельных стержней арматуры на местах углов и примыканий не допускается.
Правильное армирование углов ленточного фундамента представлено на схеме:
Армирование углов фундамента
Схема армирования ленточного фундамента в местах примыканий:
Армирование примыканий
Армирование ленточного фундамента своими руками предполагает сборку каркаса в удобном месте и его последующего размещения внутри опалубки. Технология требует гибки арматуры в прямоугольные хомуты, что в домашних условиях легко выполнить с помощью самодельного приспособления.
На 20-ом швеллере нужно вырезать болгаркой канавки, в которые впоследствии вставляется арматура, и на пруток одевается отрезок стальной трубы, использующийся в качестве рычага. Готовые кольца надо скрепить сваркой либо связать проволокой. Для прутков диаметром 10-15 мм используется проволока 1.2-1.5 мм.
Длина прутков на продольном поясе должна равняться длине стороны дома. Стержни продеваются внутрь кольца и фиксируются вязальной проволокой по углам хомута и в его центральной части. Шаг между хомутами — 30 см. На выходе вы должны иметь 4 составляющих части каркаса — 2 равные длине и 2 меньшие, равные ширине дома. Далее выполняется укладка каркасов в траншею и их соединение выгнутыми под углом прутками арматуры в соответствии с представленной выше схемой.
Гибка хомутов из арматуры
При установке каркаса внутрь траншеи надо соблюдать следующие правила:
- каркас необходимо поднять над дном траншеи с помощью подставок на 5 см — требования СНиП не позволяют использовать в этих целях обломки кирпичей;
- укладка должна выполнятся строго по горизонтальному уровню;
- каркас необходимо зафиксировать относительно боковых стенок траншеи с помощью забитых в ее стенки штырей, чтобы арматуры не сдвинулась при бетонировании.
Армирование ленточного фундамента по технологии исполнения идентично для оснований мелкозаглубленного и заглубленного типа. После установки армокаркаса начинается этап бетонирования — для заливки используется бетон марки М200. Определить требуемое количество бетона можно исходя из объемов фундамента — нужно перемножить длину, ширину и периметр ленты.
Армирование фундамента. Способ укладки
Стержни большего диаметра располагаются продольно по всему периметру ленты: по 2-4 прутка в каждом поясе (нижнем и верхнем). Элементы поперечные и вертикальные меньшего диаметра устанавливаются с шагом 50 см, и на 5 см не доходят до верхней точки фундамента (на уровне земли). Размеры разных элементов рассчитываются с учетом параметра фундамента и используемых при строительстве материалов.
Особое внимание при монтаже армирующей конструкции необходимо уделять укреплению углов. Именно на эту часть фундамента приходится наибольшие нагрузки. Качественное армирование углов предотвратит образование трещин или растяжений конструкции. Прутки в углах обязательно загибаются. Очень важно, чтобы присутствовал нахлест. Радиусными элементами соединяются все стержни. Параметры перекрытия стержней в угловой зоне не должны превышать 25 см.
Чтобы укрепить разные участки фундамента ленточного типа, необходимо выполнить правильный расчет количества стальной арматуры.
Расчет количества арматуры
Сначала определяется периметр будущей конструкции дома, и учитывается количество продольных рядов прутьев. В качестве примера можно взять здание размером 8 на 12 м, фундамент ленточного типа шириной 40 см и высотой — 100 см (грунт на участке — пучинистый). Общая длина несущей стены по периметру составляет 40 м (8+8+12+12).
- При создании основания ленточного типа обязательно монтируются две арматурные сетки, из которых нижняя предупреждает разрыв бетона при просадках грунта, верхняя — при его пучении.
- Оптимальный шаг сетки составляет 0,2 м. Для ленточного основания потребуется по 2 продольных прутка, которые располагаются в каждом слое арматурного каркаса.
- Диаметр стержня выбирается в зависимости от стенового материала, который создает нагрузки на основание. Коробка деревянного дома не тяжелая по сравнению с кирпичной, поэтому вполне подойдут прутки диаметром 12 мм. Всего для армирования фундамента двух длинных сторон здания потребуется 96 метров стержней (2*12*2*2). На короткие стороны придется потратить 64 м (2*8*2*2). Также следует учитывать стыки, где выполняется запуск арматуры. Как правило, к общему метражу достаточно добавить 10-15%. Получится цифра — 160*10%=16 метров. Всего на продольные элементы расчетная длина составляет 176 метров (96+64+16).
- Поперечные связующие элементы диаметром 10 мм располагается друг от друга на расстоянии 50 см. Их количество составляет 80 штук — периметр фундамента следует разделить на шаг укладки (40/0,5). Длина стержней равна ширине ленты 40 см. Общее количество по длине составляет 32 метра (80*0,4).
- Вертикальные связи выполняются из прутка диаметром 10 мм. Высота армирования такое же, как у ленты — 100 см. Определяется количество стальных стержней по числу пересечений: 80 поперечных элементов умножается на 4 продольных элементов, в результате получается 288 шт. При длине каждого отрезка 1 м общая длина составляет 288 метров.
Подведя итоги всех подсчетов, получается, что для создания армированного каркаса под дом размерами 8х12 потребуется приобрести:
- 176 метров стальных элементов класса A-III диаметром 12 мм.
- 320 метров стержней класса А-I диаметром 10 мм (32+288).
Масса арматуры для ленточного фундамента определяется согласно ГОСТ 2590. Погонный метр прутка 12 мм весит 0,888 кг, 6 мм – 0,222 кг. Общая масса составляет: 176*0,888=156,29 кг, 320*0,222=71,04 кг. Всего арматура весит 227,33 кг.
Соединяются поперечные и продольные элементы с помощью вязальной проволоки. Метод вязки выполняется следующим образом: на стыке проволока затягивается, а выступающие концы скручиваются плоскогубцами, специальным крюком, шуруповертом. Специалисты применяют специальные пистолеты, с помощью которых значительно ускоряется процесс.
Армирование заглубленного ленточного фундамента. Правила армирования ленточного фундамента: от выбора арматуры до армирования углов
Очень полезен будет СНиП 52-01-2003, в нем приведены правила армирования ленточного фундамента.
Небольшая выдержка оттуда ниже:
При выборе расстояния между стержнями отдельных компонентов каркаса нужно принять в расчет следующие факторы: сечение арматуры, ее расположение по отношению к направлению заливания бетона, в зависимости от способа, которым бетон будет укладываться и уплотняться. Стержни арматуры должны отстоять друг от друга на расстоянии, не превышающем их диаметр – 25 мм.
Определяя расстояние, на котором должны отстоять друг от друга продольные элементы каркаса необходимо взять в расчет факторы: тип железобетонного элемента, а также его ширину и высоту. Продольную рабочую арматуру следует располагать друг от друга на расстоянии, не превышающем 400 мм.
Поперечное армирование выполняется с определенным шагом, который не должен быть больше 300 мм или половины высоты сечения стержня.
Особое внимание следует уделить армированию углов ленточного фундамента. В этой части несущей конструкции задействуют арматуру с большим сечением, ее класс должен быть не ниже третьего – АIII. Обычным перекрытием углы не армируются, она должна гнуться.
Итак, вот схемы уже доказавшие свое право существования на практике:
- анкеровка Г-образными элементами;
- анкеровка П-образными хомутами;
- Г-образными хомутами;
Всю арматуру следует закреплять дополнительно, иными словами, анкеровать, задействовав отогнутые элементы. Поперечную арматуру следует ставить в 2 раза чаще в зоне угловой анкеровки, однако, не следует забывать о том, что расстояние не должно быть больше 25 см.
Данный способ актуален для армирования монолитного и сборного ленточного фундамента.
Шаг арматуры. Особенности сборки арматурного каркаса
Схему армирования ленточного фундамента рассчитывают в ходе построения проекта. По требованиям СНиПов, расстояние между горизонтальными поясами не делают больше 400 мм. Шаг установки конструкционных перемычек должен быть равен или меньше 300 мм. Еще один важный момент — расстояние от края детали до начала прутка. Арматуру полностью утапливают в бетон. Если где-то она выйдет на поверхность, неизбежна коррозия металла. Поэтому минимальное расстояние от края бетонной плиты до стального прута — 5 см.
С учетом выстроенной схемы арматуру собирают в единую конструкцию. Разберем особенности этого процесса.
Свободное движение (или люфт) арматурной сетки внутри конструкции вызовет напряжение, которое скажется на прочности здания. Чтобы этого не произошло, прутки прочно соединяют между собой. Для этого используют три методики.
Первая —
Соединять металлические детали можно
Вязка арматуры под ленточный фундамент
Мастера также вяжут проволочные соединения клещами илисо вставленным крючком. Есть еще одно приспособление — вязальный пистолет. Он надежно связывает детали буквально за секунду, что важно, ведь объемы работ очень большие. При этом пистолет громоздкий, поэтому работать им можно не на всех участках. А самое главное, для него требуется специальная проволока, и стоит он дорого. Но если есть возможность взять пистолет напрокат, лучше всего так и поступить. Это значительно ускорит работу.
Самыми слабыми и уязвимыми участками фундамента-ленты считаются места примыкания стен и углы. Здесь соединяются нагрузки, идущие от разных стен. Чтобы их грамотно перераспределить, используют специальные приемы. Простое соединение стальных стержней не решит задачу, поскольку не перераспределит нагрузку. В результате через некоторое время под воздействием перегрузок железобетон начнет трескаться и крошиться.
Поэтому
Армирование ленты фундамента. Правила монтажа армокаркаса по СНиП
Количество необходимой для закладываемой конструкции арматуры и расстояние между арматурными прутьями напрямую зависят от размеров фундамента.
Согласно СНиП 52-01-2003 расстояние между прутьями рассчитывается, исходя из:
- диаметра прута;
- размера бетонного заполнителя;
- направления бетонирования;
- технологии укладки;
- вида бетонного уплотнителя.
Технологически правильное армирование подразумевает, что расстояние между прутьями продольной арматуры должно находиться в пределах от 25 до 40 см. Прутья же поперечной арматуры должны быть не более чем в 30 см друг от друга.
Все самое важное об армировании ленточного фундамента найдете впубликации.
Требования к бетону
Бетон для ленточного фундамента должен отвечать определённым физико-техническим требованиям. Среди них:
- прочность;
- морозостойкость;
- водонепроницаемость.
Прочность — это способность выдерживать нагрузки на сжатие, выраженная в килограммах на квадратный сантиметр.
Морозостойкость обозначается буквой “F” и числовым эквивалентом . Число — это количество циклов полного замораживания и оттаивания опытного образца бетона без изменений своих характеристик.
Водонепроницаемость обозначается буквой “W” и также числовым эквивалентом. Число, в данном случае, — это максимальное давление, измеряемое в мегаПаскалях, при котором образец бетона не пропускает через себя влагу.
Марки бетона , рекомендуемые для сооружения ленточного фундамента:
Соотношение типа сооружения, грунта и марки бетона для ленточного фундамента:
| Тип сооружения | Слабопучинистые грунты | Пучинистые грунты |
| Лёгкие деревянные или каркасные дома | М-200 | М-250 |
| Дома из бруса, бревенчатые срубы | М-250 | М-300 |
| Дома из арболитовых блоков и подобных им материалов | М-300 | М-350 |
| Дома из кирпича, камня, железобетона | М-350 | М-400 |
Требования к арматуре
Для армирования ленточного фундамента используется стальная или композитная арматура . Поверхность её профилирована, что приводит к передаче максимальной нагрузки от прогибающегося бетона к арматурным прутьям.
Для продольного армирования обычно используются металлические прутья, диаметр которых находится в пределах от 10 до 16 мм.
Для поперечного армирования применяются металлические прутья, диаметр которых находится в пределах от 6 до 8 мм.
В соответствии со, при возведении ленточного фундамента могут использоваться следующие виды арматуры:
- горячекатанная;
- термомеханически упрочнённая;
- механически упрочнённая в холодном состоянии;
- неметаллическая композитная.
О том, какую арматуру используют для армирования ленточного фундамента, расскажетстатья.
Правила армирования. Все, что нужно знать об армировании бетона

Бетон представляет собой один из наиболее популярных материалов для строительства, что может применяться практически на всех этапах постройки зданий. Но, несмотря на то что он отличается высокой прочностью, возможна его деформация под влиянием природных и антропогенных факторов. Известно, что бетон отлично выдерживает такой вид воздействия, как усадка, и очень плохо – растяжение.
Если нагрузка неравномерна, то области растяжения создают в бетоне трещины, из-за чего начинается разрушение постройки. Поэтому для увеличения прочности этого материала применяется армирование бетона. Попробуем разобраться, какие бывают его виды, что это за технология, и как правильно ее воплотить в жизнь.
Что это такое и зачем нужно?
По своей сути, армирование представляет собой усиление бетона металлическим каркасом, который обычно создается из арматуры. Основной задачей такой процедуры будет компенсирование недостатка бетона в пластичности. Кроме того, армированный материал отличается большей способностью к растяжению и излому. Прочность арматурного соединения с бетоном довольно большая. Она не будет деформироваться даже при довольно серьезных перепадах температур по причине того, что коэффициенты их теплорасширения являются практически одинаковыми. Укрепление бетона позволяет перераспределить нагрузку в области растягивания балок из-за того, что сталь имеет большую упругость. А бетон помогает уберечь сталь от перегревания и коррозии.
Для максимальной надежности соединения бетона и арматуры ее поверхность делают рельефной. Она бывает различной:
Последние 2 типа позволяют получить максимально качественный результат сцепления. Чтобы возводимая постройка была прочной, потребуется придерживаться нормы расходования стали и заливки бетона. Но следует сказать, все будет индивидуально. Например, для фундамента ленточного типа потребуется где-то 150-200 килограммов на 1 кубометр. А для перекрытий из бетона несущего формата – около 200 килограммов. Добавим, что ранее для армировки бетона применялась лишь металлическая решетка, сделанная из стали. Сегодня же используются еще и высокопрочные соединения из стекла, базальта и углерода.
Очень часто применяется бетон, что был армирован стеклопластиком. Такое сочетание не только имеет отличные показатели стойкости к износу, но и позволяет существенно облегчить этот материал.
Виды
Теперь следует сказать несколько слов о том, какие бывают виды армирования. Конструкционно армирование бетона подразделяют на такие категории:
- монолитное;
- дисперсное;
- выполненное с применением сетки.
Теперь расскажем о каждом несколько подробнее. Армирование монолитного типа обычно используется в создании железобетонных блоков в промышленных условиях. Такая методика заключается в монтаже каркасного типа прутьев в один либо несколько слоев. Но они должны быть соединены при помощи проволоки, как поперек, так и вертикально. Должны получиться крупные ячейки, имеющие размер до 20 сантиметров.


Армирование дисперсного характера представляет собой добавление в бетонный раствор, что еще не успел полностью застыть, мелкодисперсных компонентов. Речь обычно идет о фибре. Обычно она делается на основе базальта, полипропилена или стали, стекловолокна. Но наиболее активно тогда используется бетонное армирование частицами стекловолокна.
В третьем случае применение сетки объясняется в первую очередь тем, что ее монтаж очень прост. Она может быть: композитной, из железа или полимеров. Сетки, выполненные из стали, продаются уже готовые к применению с габаритами 50 на 200 сантиметров или 150 на 200 сантиметров. Диаметр их ячеек может колебаться от 150 до 200 миллиметров.
Более надежными являются полимерный и композитный варианты. Причина – они почти не подвержены коррозионному воздействию.
Варианты для разных конструкций
Армирование конструкций из бетона нередко бывает дополнительным, хотя чаще это обязательный шаг повышения прочности бетона. Часто как арматура могут использоваться разные решения: проволока из стали, стальные прутки разного диаметра, арматура из пластика, арматура композитно-полимерного типа. Кроме того, существует 2 типа соединения различного рода армирующих частей в одну конструкцию: связывание при помощи мягкой вязальной проволоки и скрепление элементов при помощи сварки электродугового типа. И многих интересует вопрос, как же лучше соединить элементы.
Конечно, в промышленных условиях обычно применяют сварку. Из-за того что этот процесс очень ответственный, им обычно занимаются только специалисты, что имеют высокую квалификацию и большой опыт. А дома, конечно, будет лучше применить проволоку 2-3-миллиметрового диаметра. Иногда есть даже смысл вязать ее в 2 слоя. Одновременно сварено либо связано должно быть не менее 50% мест пересечения отдельных конструкционных частей и соединений. Далее более подробно рассмотрим разные варианты для различных конструкций.
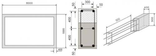
Шаг хомутов в ленточном фундаменте. Пример расчета армирования фундамента
Попробуем рассчитать, сколько потребуется материалов для обустройства армирования конкретного ленточного фундамента с чертежами. Допустим, мы строим из строительных блоков (шириной 0,4 м) небольшой загородный дом с габаритными (внешними) размерами 5×8 м. Характер почвы на нашем участке позволяет сделать высоту полосы 0,9 м, ее ширину 0,4 м, что соответствует ширине строительного материала стен. В арматурном каркасе для ленточного фундамента будем использовать продольные рабочие прутья диаметром 12 мм и □-образные поперечные хомуты, изготовленные из прутков диаметром 8 мм.
Армирование мелкозаглубленного ленточного фундамента:

На фото видно, что расстояние между рабочими продольными прутьями (0,4 м) и шаг □-образных поперечных хомутов (0,5 м) выбраны в соответствии с требованиями нормативных документов.
Проверяем относительное содержание продольных рабочих прутков в нашей железобетонной конструкции. Для этого воспользуемся следующими терминами и обозначениями:
- h – высота фундамента (900 мм);
- w – ширина фундамента (400 мм);
- Sₒ – площадь поперечного сечения фундамента;
- Sₐ – суммарная площадь поперечных сечений продольных прутьев (6 штук);
- r – радиус продольного прутка (6 мм), который равен d/2, где d – диаметр прутка (в нашем случае d=12 мм);
- D – относительное содержание рабочих прутков в «теле» фундамента.
Sₒ = h∙w = 900∙400 = 360000 мм²
Sₐ = 6∙π∙r² = 6∙3,14∙6² = 678,24 мм²
D = (Sₐ∙100)/ Sₒ = (678,24∙100)/360000 = 0,1884 ≈ 0,19 % (что в 1,9 раза превышает минимально допустимое значение, то есть схема армирования ленточного фундамента выбрана нами правильно).
Расчет количества продольных прутьев
Для того чтобы определить сколько стандартных продольных прутьев (6 м) нам необходимо, воспользуемся следующими величинами:
- L – длина фундамента (8000 мм);
- W – ширина фундамента (5000 мм);
- P – периметр;
- N – количество продольных элементов (в нашем случае 6 штук);
- X – общая протяженность продольных прутьев.
P = (L+ W)∙2 = (8000 + 5000)∙2 = 26000 мм = 26 м
X = P∙N = 26∙6 = 156 м
К полученной величине необходимо добавить 20 % (материал для изготовления Г-образных или П-образных элементов для правильного армирования углов и обеспечения достаточного нахлеста при стыковке элементов).
Xдоп = X∙0,2 = 156∙0,2 = 31,2 м
Окончательная общая длина продольного арматурного прутка:
Xок = X + Xдоп = 156 + 31,2 = 187,2 м
Стандартная длина арматурного прутка составляет 6 м. Осталось посчитать, сколько таких прутков необходимо: Xок/6 = 187,2/6 = 31,2 ≈ 32 штуки.