Армирование ленточного фундамента своими руками.. Сколько нужно арматуры?
- Армирование ленточного фундамента своими руками.. Сколько нужно арматуры?
- Армирование фундамента чертеж. Как делать вязку арматуры под ленточный фундамент
- Армирование фундамента калькулятор. Калькулятор расчёта ленточного фундамента
- Как работает арматура в ленточном фундаменте. Роль арматуры в фундаменте и способы её монтажа
- Арматурный каркас для ленточного фундамента расчет. Как выполнить расчет количества арматуры для ленточного фундамента при помощи онлайн-калькулятора + вычисления параметров опалубки и сечения
- Армирование ленточного фундамента СНиП. Схема армирования и технология строительства основания
- Армирование ленточного фундамента гост. Требования СНиП к монтажу арматуры
- Армирование мелкозаглубленного фундамента. Что это за конструкция?
Армирование ленточного фундамента своими руками.. Сколько нужно арматуры?
Прежде чем отправиться в магазин для покупки материала, нужно узнать, сколько его понадобится для армирования ленточного фундамента. Для этого следует заранее подумать, какая схема армирования ленточного фундамента станет лучшим выбором и провести расчеты для конкретного объекта.

Пример армирования каркаса для фундамента
При строительстве небольших домов, гаражей и бань обычно используется следующая конфигурация каркаса:
- 2 пояса: верхний и нижний;
- каждый пояс состоит из 3-4 прутов арматуры;
- оптимальное расстояние между стержнями – 10 сантиметров. Учтите, что расстояние от арматуры до краев будущего фундамента должно составлять не менее 5 сантиметров;
- соединение поясов выполняется при помощи хомутов или отрезков арматуры при шаге 5-30 сантиметров, в зависимости от участка армирования.
Такая схема оптимальна. Теперь, зная размеры будущей постройки, совсем не сложно провести соответствующие расчеты.
Допустим, вы хотите построить просторную каркасную или деревянную дачу площадью 150 квадратных метров с внешними стенами периметром 50 метров. Проведем расчеты, исходя из этого. Используем при армировании ленточного фундамента СНиП соответствующий и описанные выше характеристики.
Имеем два пояса по три прута в каждом. Итого – 6 умножаем на 50 = 300 метров основной арматуры. Учитываем количество перемычек, которые укладываются с шагом 30 сантиметров. Для этого 50 метров делим на 0,3. Получаем 167 штук. Поперечные перемычки в данном основании будут иметь длину 30 сантиметров, а вертикальные – 60 сантиметров. На вертикальные перемычки понадобится 167х0,6х2=200,4 метра. На горизонтальные – 167х0,3х2=100,2 метра. Итого, потребуется 300 метров толстой рифленой арматуры и 300,6 метра более тонкой, гладкой арматуры. Получив эти числа, можно смело отправляться в магазин за материалом – ленточный фундамент без армирования долго не протянет. Некоторые специалисты рекомендуют брать арматуру с запасом в 10-15%. Ведь какое-то количество материала понадобится, чтобы усилить угловые части ленточного фундамента и уйдет на стыковку.
Армирование фундамента чертеж. Как делать вязку арматуры под ленточный фундамент
Фундамент – это основа всего строения, гарант его долговечности и прочности. Армирование ленточного фундамента, чертежи и схемы должны быть подготовлены и рассчитаны заблаговременно.
Необходимость армирования
Фундамент представляет собой монолитную железобетонную конструкцию. Сам бетон – материал, который выдерживает значительные нагрузки только на сжатие. Чтобы увеличить прочность фундамента на растяжение и изгиб, необходимо изготовить металлический каркас. Причем показатели прочности увеличиваются только за счет обустройства рабочих продольных прутьев. Поэтому в качестве их используют толстые профилированные прутки диаметром 10÷14 мм. Поперечные элементы предназначены для создания пространственной геометрии фундамента, они не позволяют продольным пруткам смещаться при заливке бетонного раствора, и удерживают их в нужном месте. Для этих целей можно использовать гладкие или профилированные прутки диаметром 6÷9 мм.

Требования нормативных документов к материалам для армирования
Как правильно армировать ленточный фундамент, можно узнать, ознакомившись с нормативными документами. Требования, которые необходимо соблюдать при армировании монолитного ленточного железобетонного фундамента, изложены в СНиП 52-01-2003 .
Разновидности стальных прутьев, рекомендованных для армирования:
- горячекатаные гладкие или профилированные (Ø=3÷80 мм);
- термомеханически упрочненные профилированные (Ø=6÷40 мм);
- холоднокатаные профилированные или гладкие (Ø=3÷12 мм).

Важно! По сравнению с гладкими, профилированные прутья имеют лучшее сцепление с бетоном: это позволяет значительно увеличить надежность конструкции.
Требования к расположению прутьев в армокаркасе для ленточного фундамента:
- расстояние между продольными стержнями должно быть не более 0,4 м;
- шаг поперечных фиксирующих элементов должен составлять не более 0,5 м.
Минимальное относительное содержание рабочих продольных прутьев в железобетонном элементе должно составлять не менее 0,1 %.
Для вязки элементов железобетонной конструкции должна применяться только специальная стальная обожженная проволока (Ø=0,8÷1,2 мм).
Пример расчета армирования фундамента
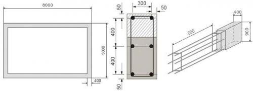
Попробуем рассчитать, сколько потребуется материалов для обустройства армирования конкретного ленточного фундамента с чертежами. Допустим, мы строим из строительных блоков (шириной 0,4 м) небольшой загородный дом с габаритными (внешними) размерами 5×8 м. Характер почвы на нашем участке позволяет сделать высоту полосы 0,9 м, ее ширину 0,4 м, что соответствует ширине строительного материала стен. В арматурном каркасе для ленточного фундамента будем использовать продольные рабочие прутья диаметром 12 мм и □-образные поперечные хомуты, изготовленные из прутков диаметром 8 мм.
Армирование мелкозаглубленного ленточного фундамента:

На фото видно, что расстояние между рабочими продольными прутьями (0,4 м) и шаг □-образных поперечных хомутов (0,5 м) выбраны в соответствии с требованиями нормативных документов.
Проверяем относительное содержание продольных рабочих прутков в нашей железобетонной конструкции. Для этого воспользуемся следующими терминами и обозначениями:
- h – высота фундамента (900 мм);
- w – ширина фундамента (400 мм);
- Sₒ – площадь поперечного сечения фундамента;
- Sₐ – суммарная площадь поперечных сечений продольных прутьев (6 штук);
- r – радиус продольного прутка (6 мм), который равен d/2, где d – диаметр прутка (в нашем случае d=12 мм);
- D – относительное содержание рабочих прутков в «теле» фундамента.
Sₒ = h∙w = 900∙400 = 360000 мм²
Sₐ = 6∙π∙r² = 6∙3,14∙6² = 678,24 мм²
D = (Sₐ∙100)/ Sₒ = (678,24∙100)/360000 = 0,1884 ≈ 0,19 % (что в 1,9 раза превышает минимально допустимое значение, то есть схема армирования ленточного фундамента выбрана нами правильно).
Расчет количества продольных прутьев
Для того чтобы определить сколько стандартных продольных прутьев (6 м) нам необходимо, воспользуемся следующими величинами:
- L – длина фундамента (8000 мм);
- W – ширина фундамента (5000 мм);
- P – периметр;
- N – количество продольных элементов (в нашем случае 6 штук);
- X – общая протяженность продольных прутьев.
P = (L+ W)∙2 = (8000 + 5000)∙2 = 26000 мм = 26 м
X = P∙N = 26∙6 = 156 м
К полученной величине необходимо добавить 20 % (материал для изготовления Г-образных или П-образных элементов для правильного армирования углов и обеспечения достаточного нахлеста при стыковке элементов).
Xдоп = X∙0,2 = 156∙0,2 = 31,2 м
Окончательная общая длина продольного арматурного прутка:
Xок = X + Xдоп = 156 + 31,2 = 187,2 м
Стандартная длина арматурного прутка составляет 6 м. Осталось посчитать, сколько таких прутков необходимо: Xок/6 = 187,2/6 = 31,2 ≈ 32 штуки.
Армирование фундамента калькулятор. Калькулятор расчёта ленточного фундамента

Основные параметры ленточного фундамента (глубина заложения, высота и ширина ленты) подбираются согласно расчетам и с учетом характеристик грунта площадки и требований норм СП 22.13330.2011 «Основания зданий и сооружений» и СП 63.13330.2012 «Бетонные и железобетонные конструкции». Чтобы частично облегчить ваш труд, предлагаем воспользоваться онлайн-калькулятором расчёта ленточного фундамента, составленного с учетом указаний нормативных документов.
Расчёт диаметра арматуры и объёма бетонной смеси
Необходимые пояснения к расчетам арматуры
- Под основным подразумевается фундамент под наружные стены.
- Высота фундамента — расстояние от подошвы до верхнего обреза.
- Расчет по минимальному диаметру выполняется из условия наименьшего допустимого процента армирования сечения с учетом конструктивных требований.
- Минимальное число стержней продольной арматуры — 4.
- Необходимо увеличить расчетное значение длины арматуры, если предполагается крепление стержней по длине внахлест.
- Хомуты устанавливаются для сохранения продольной арматуры в проектном положении при заливке бетона.
- Шаг хомутов зависит от высоты сечения и принимается не более 300 мм (согласно СП 63.13330.2012).
Расчёт состава бетонной смеси
После расчёта диаметра арматуры и требуемого объёма бетонной смеси предлагаем воспользоваться калькулятором расчёта состава бетона для ленточного фундамента . Более подробную информацию по выбору цемента и заполнителей вы сможете найти тут .
Объем бетона вследствие уплотнения может отличаться от расчетного ориентировочно до 10%.
Как работает арматура в ленточном фундаменте. Роль арматуры в фундаменте и способы её монтажа

Виктор, Волгоград задаёт вопрос:

Здравствуйте! Мне предстоит построить дом. Он будет стоять на ленточном фундаменте.
Оценив состояние семейного бюджета, я уже подумываю заливать основание под строение без его армирования. Мои знакомые утверждают, что хороший бетон и без арматуры выдержит тяжелые стены, и зданию не грозят ни просадки, ни трещины. По их мнению, фундамент будет заключен в ров, который защитит конструкцию от смещения.
Они советуют забутить основание и забыть об армировании, говоря, что крупные камни лучше справятся с его укреплением, чем стальные стержни. И все-таки я боюсь, что без арматуры в фундаменте появятся трещины. Подскажите, пожалуйста, как работает арматура в фундаменте.

Для чего она нужна? Можно ли в строительстве обойтись без нее? Спасибо.
Здравствуйте! Ваши знакомые правы лишь отчасти. Или им неизвестно, как работает арматура в фундаменте, или они не знают, что в подавляющем большинстве случаев в умеренных широтах грунты являются пучинистыми.
Фундамент без армирования имел бы смысл, если бы располагался на монолите, а его функция сводилась только к выравниванию площадки под возведение стен. Конечно, бетон #8211; очень прочный материал, выдерживающий огромные нагрузки на сжатие. Однако на фундамент воздействуют не только усилия, вызванные весом строения, на него влияют силы, направленные и по другим векторам.

Бетон прекрасно выдерживает усилия, прикладываемые к нему в перпендикулярном направлении, но нагрузки на излом, когда одна из граней фундамента растягивается, а другая сжимается, ему противопоказаны. При этом материал больше боится именно воздействия на разрыв. А подобные ситуации возникают довольно часто:
из-за неравномерной плотности грунта, вызванной его составом или уровнем влажности;морозного пучения грунта (в этом случае нагрузки направлены в обратную сторону, т.
е. вверх);цикличности воздействия этих факторов;подвижности верхних слоев грунта;изменений температуры и т. п.

Все действующие на излом усилия в конечном счете приведут к образованию трещин в фундаменте, а в худшем случае #8211; к проседанию не только самого фундамента, но и опирающегося на него строения.
От таких недостатков избавлен армированный железобетон. Заключенные в него стержни служат надежными компенсаторами сжатий и расширений строительного материала, улучшая характеристики бетонного изделия.
Стоит сказать, что многие самодеятельные строители совершают ошибку, считая, что для придания фундаменту необходимой прочности достаточно проармировать только одну из его сторон (нижнюю, верхнюю или боковую часть). Они не учитывают направленности воздействия нагрузок, из-за которых незащищенной остается неармированная сторона ленты.

Арматура не способна обеспечить одинаковую прочность фундамента на всем его протяжении, так как стержни имеют определенную длину и их приходится соединять. В местах сопряжения прутьев железобетонная конструкция будет более уязвима. Наращивание арматуры сваркой встык не улучшает ее характеристик, поэтому стержни должны соединяться внахлест.
Длина нахлеста составляет 30-40 сечений арматуры. Чтобы не ослаблять бетон, соединение прутьев не следует делать в углах фундамента. Кроме того, стыковать арматуру в соседних поясах следует с максимальным разбросом.
Арматурины соединяются двумя способами:

Вязальной проволокой пользуются в тех случаях, когда возможно проседание грунта под лентой. Сварка применяется, когда такая возможность исключена.
На то, как будет работать арматура в фундаменте, влияют:
- характеристики металла;состояние прутьев;толщина стержней;количество поясов армирования и перемычек между ними.
Сегодня в строительстве применяются прутья класса А-III с пределом текучести 390 Н/мм².

Для возведения небольших строений используется арматура сечением от 12 до 16 мм. Лучшее сцепление с бетоном обеспечивают профилированные прутья. К тому же они должны быть очищены от жира и грязи, препятствующих контакту материалов.
Нельзя забывать об установке поперечных прутьев, обеспечивающих дополнительную жесткость конструкции. Перемычки по горизонтали и вертикали устанавливают с шагом не реже 25 см. Нужно добавить, что арматура должна быть утоплена в толщу бетона на глубину не менее 5 см.
© Copyright –, moifundament.ru

- работы с фундаментомАрмированиеЗащитаИнструментыМонтажОтделкаРастворРасчетРемонтУстройство
- Виды фундаментаЛенточныйСвайныйСтолбчатыйПлитный
- ДругоеО сайтеВопросы экспертуРедакцияКонтакты
- Работы с фундаментом Армирование фундаментаЗащита фундаментаИнструменты для фундаментаМонтаж фундаментаОтделка фундаментаРаствор для фундаментаРасчет фундаментаРемонт фундаментаУстройство фундаментаВиды фундамента Ленточный фундаментСвайный фундаментСтолбчатый фундаментПлитный фундамент
Как работает арматура в ленточном фундаменте
Виктор, Волгоград задаёт вопрос:
Здравствуйте! Мне предстоит построить дом. Он будет стоять на ленточном фундаменте.

Арматурный каркас для ленточного фундамента расчет. Как выполнить расчет количества арматуры для ленточного фундамента при помощи онлайн-калькулятора + вычисления параметров опалубки и сечения
занимает основное место среди всех опорных конструкций для зданий и сооружений.
Он способен эффективно работать на самых сложных грунтах, имеет оптимальный набор эксплуатационных качеств.
Монолитные конструкции ленты не теряют своих рабочих качеств до 150 лет, что превышает срок службы стен дома.
Такие высокие возможности возникли из-за высокой жесткости и прочности ленты, которые обеспечивает совместная работаи металлической арматуры.
Каждый из них выполняет свою функцию, в сумме обеспечивая надежность и высокую несущую способность ленточного основания.
Арматурный каркас необходим для компенсации осевых противонаправленных (растягивающих) нагрузок, возникающих в ленте при появлении деформирующих воздействий — изгибающих или скручивающих усилий .
Особенность бетона состоит в способности принимать гигантские давления без каких-либо последствий.
При этом, он практически беззащитен перед разнонаправленными усилиями, быстро покрывается трещинами и разрушается .
Поэтому для ленты крайне опасны любые усилия, приложенные в одной точке — например, боковые или вертикальные нагрузки пучения. Арматурные стержни предназначены для приема этих усилий на себя.
Существует горизонтальная (рабочая) и вертикальная арматура . Основные нагрузки принимают горизонтальные стержни.
Они имеют больший диаметр и рифленую поверхность, обладающую хорошим сцеплением с бетоном.
Вертикальные стержни выполняют две функции :
- Фиксация рабочей арматуры в необходимом положении до момента заливки бетоном.
- Частичная компенсация скручивающих усилий.
Первая задача основная, а вторая — дополнительная, поскольку наличие таких специфических нагрузок наблюдается довольно редко .
В большинстве случаев вертикальная (гладкая) арматура служит лишь опорной конструкцией, удерживающей рабочие стержни в необходимом положении до момента заливки.
Они довольно толстые, так как — процесс с достаточно интенсивными воздействиями на каркас, сосредоточенными в одной точке (место падения тяжелого материала в опалубку), а также распределенными по всей длине (штыкование, обработка виброплитой) .

Онлайн калькулятор
Как рассчитать ленточный фундамент дома? В этой вам может специально разработанный сервис —ленточного фундамента.

Инструкция по работе с калькулятором
В сети интернет имеется немало онлайн-калькуляторов, помогающих рассчитать параметры ленточных фундаментов по всем важным позициям . Расчет арматуры с их помощью занимает буквально пару минут.
Например, нанеобходимо лишь внести собственные данные в соответствующие окошечки программы и нажать кнопку «рассчитать».
Дается схема армирования, в которой надо указать основные параметры — количество рабочих стержней в одном ряду, общее число рядов, расстояние между вертикальными прутками и т.п. В отдельном окне указывается стоимость арматуры за единицу.
В результате программа выдает количество арматуры и общую цену. Расчет производится просто и быстро, кроме арматуры ресурс выдает параметры всех элементов ленты — , количества бетона и т.д.
Недостатком данного калькулятора можно считать необходимость заранее знать схему армирования, диаметр стержней и рыночную стоимость материала.
Если требуется определить количество и сечение стержней, ресурс бесполезен. Он дает только количественную информацию, не касаясь качественных моментов, что иногда не совсем то,что нужно .
ВАЖНО!
Не все онлайн-калькуляторы работают по такому алгоритму. Имеются и другие, определяющие именно размеры и общие параметры арматурного каркаса, которые станут полезными для получения первичной информации . Стоимость материала следует узнавать непосредственно у продавцов, поскольку в этом вопросе имеется масса специфических факторов.
Порядок расчета
Рассмотрим, как рассчитать арматурный каркас ленты самостоятельно .
Прежде всего, необходимо определить количество рабочих стержней в одном ряду. Для этого понадобится использовать требование СП 52-101-2003, ограничивающее максимальное расстояние между соседними прутками в 40 см.
Учитывая, что погружения рабочей арматуры не должна превышать 2-5 см, получаем :
- Для лент толщиной менее 50 см — 2 рабочих стержня.
- Для лент шире 50 см — 3 стержня.
В случаях, когда можно использовать и 2, и 3 стержня в одном ряду, обычно стараются подстраховаться и принять большее значение, так как фундамент — ответственный и важный участок постройки.
Вторым этапом является определение диаметра рабочих стержней. Для этого понадобится рассчитать площадь сечения рабочей части ленты, умножив ширину на высоту.
Армирование ленточного фундамента СНиП. Схема армирования и технология строительства основания
Армирование бетонной формы основания проводится в два яруса – верхним и нижним рядами арматуры с поперечным и продольным усилением дополнительными прутьями. Для формирования прочного, но гибкого армокаркаса применяют арматурные прутья категории А III – это стальной профиль круглого сечения Ø 10-16 мм, имеющий два продольных ребра жесткости и поперечные грани, отлитые по спирали.
При общей высоте основания ≥ 0,15 м в каркас необходимо встраивать вертикальные стержни арматуры, что делается методом связывания при помощи мягкой вязальной проволоки (СНиП 52-01-2003 и СП 52-101-2003). Для вертикального усиления каркаса применяют арматуру класса А I – это гладкая арматура Ø 6-8 мм. Чтобы компенсировать продольные нагрузки в теле бетонного ленточного фундамента, каркас усиливается поперечной арматурой, которая предотвращает образование микротрещин и скрепляет друг с другом продольные ярусы армирующего каркаса основания.
Онлайн калькулятор для расчета арматуры
Согласно указанным СНиП, вертикальная и поперечная арматура связывается в единую конструкцию стальными хомутами, расстояние между которыми соблюдается как 3/8 от высоты ленточного фундамента, и должно быть ≥ 0,25 м.
Также армирующий каркас в соответствии со снип фундаменты ленточные не должен собираться из поврежденных или ржавых стержней – арматура должна быть ровной и порезанной по расчетным размерам. Отдельные арматурные прутья также соединяются между собой при помощи мягкой или отожженной вязальной проволоки и вязального крючка. Применять сварочное оборудование разрешено только для соединения прутьев с мариковкой «С».
Армирование ленточных оснований
Правила связывания армирующего каркаса должны соблюдаться неукоснительно, иначе не получится добиться требуемой жесткости каркаса. Связывание углов и присоединений каркаса предотвращает разрушающее воздействие локальных нагрузок на фундамент. Для угловых примыканий используются арматурные прутья класса А III. Основные рекомендации при соединении углов армокаркаса:
- Прут необходимо согнуть в таким образом, чтобы один его конец входил в стену основания, второй конец входил в противоположную стену;
- Запускать стержень арматуры на противоположную стену следует на длину сорока диаметров прута;
- Не разрешается применять простое связывание пересечений арматуры без из усиления дополнительными вертикальными и поперечными отрезками арматуры;
- При длине прута, не позволяющей загнуть его на противоположную стену фундамента, арматура соединяется Г-образными металлическими профилями;
- Шаг между соединительными хомутами выбирается в два раза короче, чем в ленте.
Армирование ленточного фундамента гост. Требования СНиП к монтажу арматуры
Общие схемы и требования к возведению конструкций с использованием бетона (железобетона) определены в СНиП 52−01−2003. Данный документ содержит правила расчета склонности железобетона к деформациям, его способности к образованию трещин, показателей прочности, требования к размерам и формам конструкции:
- при возведении фундаментов можно использовать только арматуру, соответствующую стандартам , с сертификатом качества, определенную в проектной документации;
- прутья сцепляются так, чтобы полностью исключить возможность их смещения во время заливки бетона;
- если для армирования ленточного фундамента используются сварные каркасы или сетки, то при их изготовлении разрешается применять такой способ сварки, который не допускает деформирования;
- радиус изгиба арматурных прутьев должен соответствовать затребованному в проекте;
- механические стыки арматуры по прочности не должны уступать прочности основного материала;
- расстояние между вертикальными стержнями зависит от их диаметра , вида заполнителя бетонной смеси, расположения в каркасе, метода заливки бетона, но не допускается шаг меньше, чем 25 см;
- расстояние между продольными прутьями не должно превышать 40 см;
- расстояние между прутьями, установленными поперечно, не должно превышать 30 см.
Для вертикального армирования используются прутья с диаметром 10−12 мм с ребристой поверхностью. Для продольного расположения диаметр арматуры не должен быть меньше, чем 10 мм и больше, чем 32 мм. Для поперечного размещения используется арматура с диаметром от 6 до 8 мм.
Армирование мелкозаглубленного фундамента. Что это за конструкция?
Мелкозаглубленный столбчатый фундамент — это конструкция несущего строительного основания, состоящая из опорных столбов округлой или прямоугольной формы.
Устанавливаются они в углах здания, в местах где сосредоточены наибольшие нагрузки:
- на пересечениях перегородок,
- под колоннами,
- под каминами.
В целях равномерного распределения нагрузки от строения на опоры, сверху на фундамент устанавливают ростверк. Столбы погружают в грунт на глубину до 40 см.
Для каких сооружений используется?
Такие основания широко применяются для сооружений, который не сильно нагружают грунт , весом не более 1 т/м3, не имеющие подвалов:
- каркасные домики,
- деревянные бани,
- времянки;
- беседки;
- садовые домики,
- хозпостройки.
Благодаря конструктивным особенностям, столбчатый фундамент с небольшим заглублением выбирают для строений из дерева.
Для какого типа грунта подходит?
Для лёгких конструкций есть смысл размещать мелкозаглубленный столбчатый фундамент на почвах со слабой пучинистостью. На скальной или крупнообломочной почве он выдержит и постройки посолиднее из брёвен и бруса.
Чтобы правильно соорудить конструкцию для пучинистых почв, делают специальные инженерные расчёты и под опорами сооружают армированную подушку.
На слишком рыхлых почвах, заболоченных местностях такой вид фундамента не эффективен. Нельзя использовать на грунтах, предрасположенных к горизонтальным сдвигам. Это приведёт к опрокидыванию строения.
Использование дорогостоящего и трудозатратного железобетонного ростверка сведёт экономический эффект к нулю.
Материалы
Традиционно мелкозаглубленное столбчатое основание делается из армированного бетона . Может быть выполнено из брёвен, блоков, кирпича, камня.
Из бревен
Под хозпостройки часто делают деревянные опоры из бруса, бревна диаметром 15-20 см. У них ограниченный срок эксплуатации около 10 лет и невысокая несущая способность.
Основное требование к такому материалу — его обязательная обработка антисептиком и нанесение сверху гудрона или другого гидроизолятора.
Из кирпича и бетонных блоков
Для каркасных строений часто используют кирпичные столбы. Это должен быть полнотелый керамический и силикатный кирпич, который не сильно впитывает воду.
В противном случае он быстро разрушится. Бетонные блоки должны быть хорошего качества, достаточной плотности .
Под кирпичные или блочные опоры устраивают подушку из щебня, пролитую цементным молочком. После установки столбов необходимо подождать, пока кладочный раствор наберёт прочность. Обычно это происходит в течение 12-20 дней.
Железобетонный монолит
Монолитные армированные железобетонные опоры обладают хорошей несущей способностью и надёжностью. Устанавливаются в ямы с щебневой подушкой и армирующим каркасом.
Опалубку делают из:
- обрезной доски,
- фанеры,
- листов железа.
Трубы
Трубы из асбеста, железа и пластика применяют в сочетании с армирующим каркасом как несъёмную опалубку для столбов из бетона.
Диаметры зависят от назначения:
- 100 мм хватит для террас, навесов и беседок;
- 250-300 мм выбирают для бревенчатых построек.
Для установки таких труб подготавливают скважины соответствующих габаритов.